This calculator provides a guide to the amount of residential stamp duty you may pay and does not guarantee this will be the actual cost. This calculation is based on the Stamp Duty Land Tax Rates for residential properties purchased from 23rd September 2022 and second homes from 31st October 2024. For more information on Stamp Duty Land Tax, click here.
4 bedroom Detached House for sale, Copse Road, Clevedon, North Somerset, BS21
Features and Description
- Just Yards From Clevedon's Sea Front
- Sold With No Onward Chain
- Four Bedroom Period Detached Property
- Two Separate Receptions Rooms
- Kitchen/Breakfast Room and cloakroom/wc
- Gas Central Heating
- Council Tax Band D and Awaiting EPC
Fantastic location, just a short walk to Clevedon's sea front and views over Pier Copse this period detached house offers a perfect blend of character and modern living.
Situated in a sought-after location, this four bedroom property has been refurbished by it's present owner and is chain free, allowing for a smooth and hassle free purchase process.
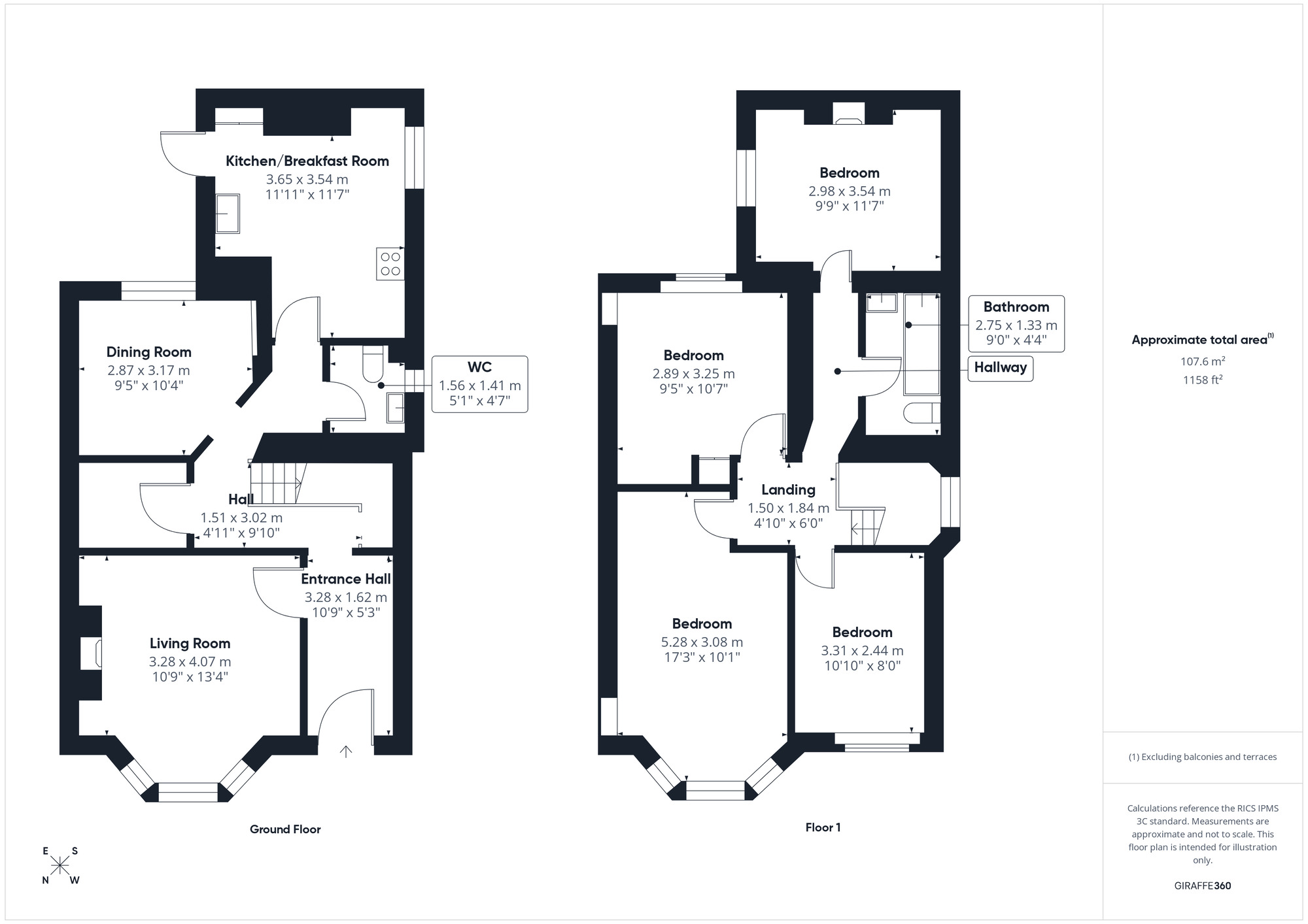
To the ground floor the home has an attractive entrance hall, bay fronted living room with feature fireplace, separate dining room, kitchen/breakfast room and cloakroom/wc. The first floor provides the best views over the Copse and sea front beyond and comprises of four bright bedrooms and family bathroom.
With its traditional features and contemporary amenities, this house presents a unique opportunity to own a piece of history while enjoying the comforts of modern living. Don't miss out on the chance to make this charming property your new home. Contact us today to arrange a viewing and discover all that this wonderful property has to offer.
Additional Information
Mains Electricity/Mains Drainage/Mains Water/Mains GasConstruction taken from EPC: Wall, Sandstone, as built, no insulation (assumed). Roof, Pitched, 100 mm loft insulation.Broadband - Full Fibre Broadband available with a download speed 1600 Mbps and upload speed 115 Mbps.This information is sourced via www.openreach.com/fibre-broadband, we advise you make your own enquires.Mobile Signal/CoverageThere is average coverage for mobile signal in this area, please check with your provider if this will be available to you. For an indication of coverage in the area, we recommend that you check the Ofcom checker. https://checker.ofcom.org.uk/en-gb/mobile-coverage
IMPORTANT NOTE TO POTENTIAL PURCHASERS:
We endeavour to make our particulars accurate and reliable, however, they do not constitute or form part of an offer or any contract and none is to be relied upon as statements of representation or fact. The services, systems and appliances listed in this specification have not been tested by us and no guarantee as to their operating ability or efficiency is given. All photographs and measurements have been taken as a guide only and are not precise. Floor plans where included are not to scale and accuracy is not guaranteed. If you require clarification or further information on any points, please contact us, especially if you are travelling some distance to view. Fixtures and fittings other than those mentioned are to be agreed with the seller.
Copse Road, Clevedon, North Somerset, BS21
Additional Information
-
Property refCLV240377
-
EPCD
-
TenureFreehold
-
Council TaxD
-
Local authorityNorth Somerset Council
Similar properties for sale by Reeds Rains Clevedon
The pin shows the exact address of the property
Energy Efficiency Rating
Very energy efficient - lower running costs
Not energy efficient - higher running costs
Current
60Potential
77CO2 Rating
Very energy efficient - lower running costs
Not energy efficient - higher running costs
