This calculator provides a guide to the amount of residential stamp duty you may pay and does not guarantee this will be the actual cost. This calculation is based on the Stamp Duty Land Tax Rates for residential properties purchased from 23rd September 2022 and second homes from 31st October 2024. For more information on Stamp Duty Land Tax, click here.
4 bedroom Detached House for sale, Crest Heights, Portishead, Bristol, BS20
Features and Description
- Modern Detached Townhouse
- Four Generous Size Bedrooms
- Two Luxurious Bathrooms
- Stylish Kitchen/Dining Room
- First Floor Living Room with Balcony
- Stunning Estuary Views
- Quiet Cul-De-Sac Location
- Sunny Low Maintenance Gardens
- Integral Garage & Driveway
- EPC Rating TBC
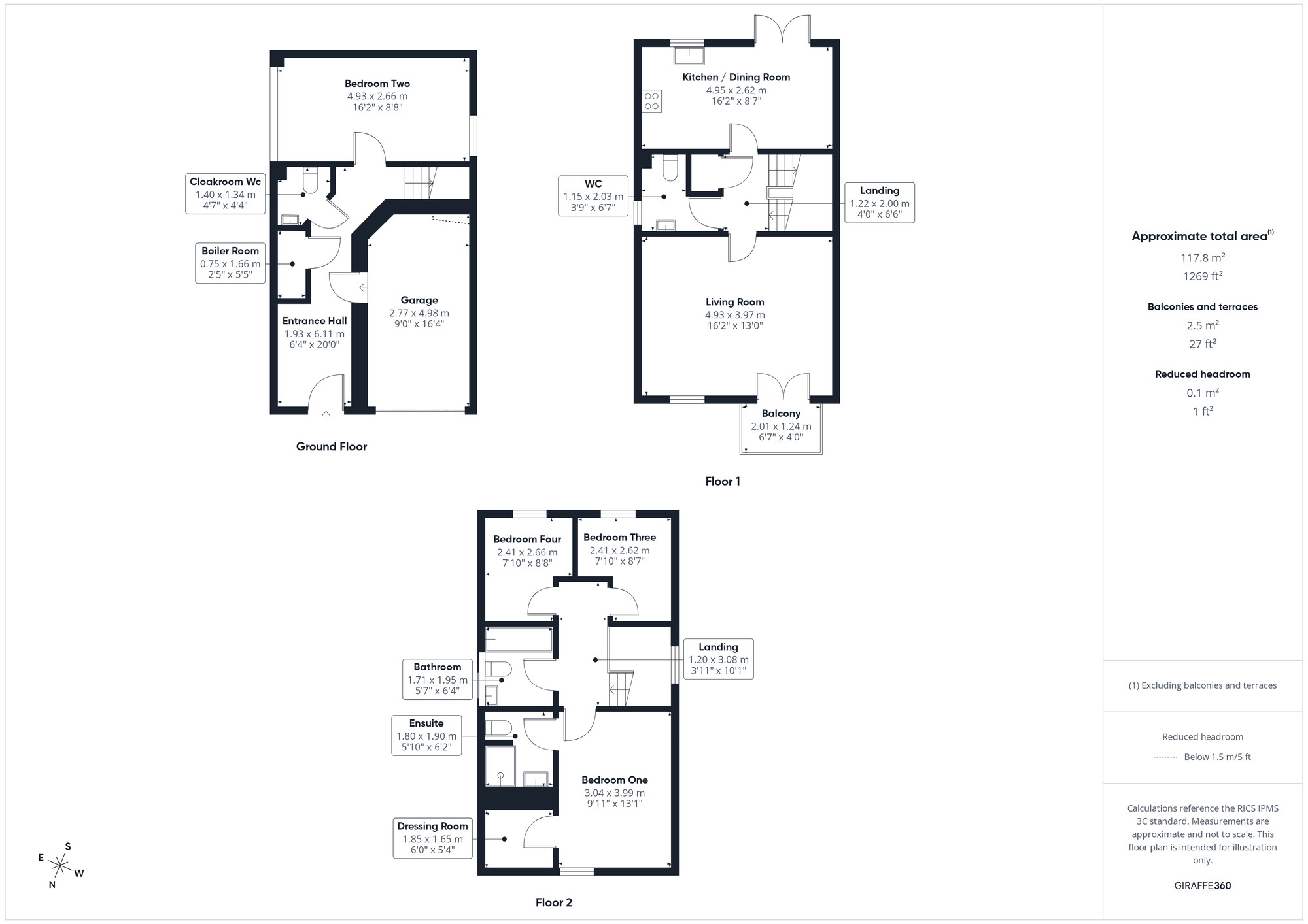
Situated in a private and sought-after cul-de-sac in Crest Heights, Portishead, this modern detached townhouse offers versatile and well-proportioned accommodation arranged over three floors - ideal for contemporary family living.
The ground floor welcomes you with an inviting entrance hall, leading to a convenient downstairs WC, integral garage access, and a flexible fourth bedroom that can easily serve as a home office or additional reception room.
On the first floor, the property truly comes into its own. A bright and spacious living room opens onto a private balcony, perfectly positioned to enjoy beautiful views towards the Bristol Channel - an ideal spot to unwind. To the rear, a stylish kitchen/dining room provides a sociable hub of the home, with direct access to the garden, making it perfect for entertaining and everyday family life.
The second floor hosts three further bedrooms and a family bathroom. The principal bedroom benefits from a walk-in wardrobe and a modern en-suite shower room, creating a comfortable and private retreat.
Externally, the property enjoys sunny gardens - ideal for outdoor dining and relaxation - along with a driveway providing off-road parking.
Crest Heights is situated within a desirable residential area on Portishead's hillside, offering a quiet setting while remaining conveniently close to local amenities. Portishead itself boasts a vibrant marina with a range of shops, cafés, and restaurants, as well as scenic coastal walks along the Bristol Channel. The area is popular with families due to its reputable schools and excellent transport links, including easy access to the M5 motorway, providing straightforward connections to Bristol and beyond.
Combining a quiet location with flexible living spaces and attractive outlooks, this home presents an excellent opportunity for families and professionals alike.
Additional Information
Service Charge - £810.00 PA
IMPORTANT NOTE TO POTENTIAL PURCHASERS:
We endeavour to make our particulars accurate and reliable, however, they do not constitute or form part of an offer or any contract and none is to be relied upon as statements of representation or fact. The services, systems and appliances listed in this specification have not been tested by us and no guarantee as to their operating ability or efficiency is given. All photographs and measurements have been taken as a guide only and are not precise. Floor plans where included are not to scale and accuracy is not guaranteed. If you require clarification or further information on any points, please contact us, especially if you are travelling some distance to view. Fixtures and fittings other than those mentioned are to be agreed with the seller.
Crest Heights, Portishead, Bristol, BS20
Additional Information
-
Property refCLV260164
-
TenureFreehold
-
Council TaxE
-
Local authorityNorth Somerset Council
Similar properties for sale by Reeds Rains Portishead
The pin shows the exact address of the property
Energy Efficiency Rating
Very energy efficient - lower running costs
Not energy efficient - higher running costs
Current
N/APotential
N/ACO2 Rating
Very energy efficient - lower running costs
Not energy efficient - higher running costs
