This calculator provides a guide to the amount of residential stamp duty you may pay and does not guarantee this will be the actual cost. This calculation is based on the Stamp Duty Land Tax Rates for residential properties purchased from 23rd September 2022 and second homes from 31st October 2024. For more information on Stamp Duty Land Tax, click here.
 
         
         
         
         
         
         
         
         
         
         
         
        3 bedroom Detached House for sale, Evesham, Worcestershire, WR11
Features and Description
- No Onward Chain
- Three Generous Bedrooms
- Detached Garage and Ample Parking
- Superb Central Location
- Beautiful Gardens
Offered to market with no onward chain, the accommodation comprises in brief of; spacious and bright entrance hall, with stairs leading to the first floor. Beyond is the most delightful living room with glazed doors overlooking the stunning rear garden, and opening to the dining room.
The kitchen is complete with a range of wall and base units with aspect to the rear garden. Continuing through, there is a most useful utility room, inner lobby and WC.
The first floor boasts three generous double bedrooms and recently modernised family bathroom.
The grounds to this home are a true joy, with the front of the property being approached by a large driveway, with mature front gardens hosting an abundance of mature ornamental planting.
To the rear, is a substantial detached garage, with up and over door, pedestrian door and mains electricity.
The garden, which is mostly laid to lawn, hosts a terrace area off the sliding doors to the living room, ideal for summertime entertainment and al-fresco dining. Stepping down you are greeted by an array of raised beds with a wealth ornamental and wildflower planting.
EPC Grade - D
Council Tax Band - E
Directions
From the agents office proceed south to Abbey Bridge and turn left onto Waterside. Continue along and turn right to Coopers Lane and first right into Mansion Gardens.
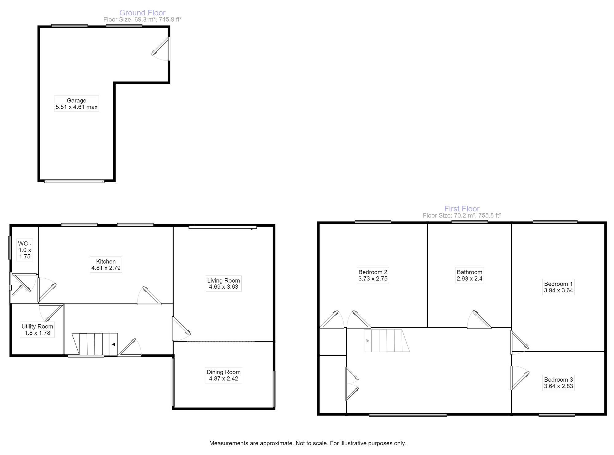
Living Room
4.69 x 3.63
Dining Room
4.87 x 2.42
Kitchen
4.81 x 2.79
Utility Room
1.78 x 1.8
Bedroom 1
3.94 x 3.64
Bedroom 2
3.73 x 2.75
Bedroom 3
3.64 x 2.83
Bathroom
2.93 x 2.41
Garage
5.51 x 4.61
Max
IMPORTANT NOTE TO POTENTIAL PURCHASERS:
We endeavour to make our particulars accurate and reliable, however, they do not constitute or form part of an offer or any contract and none is to be relied upon as statements of representation or fact. The services, systems and appliances listed in this specification have not been tested by us and no guarantee as to their operating ability or efficiency is given. All photographs and measurements have been taken as a guide only and are not precise. Floor plans where included are not to scale and accuracy is not guaranteed. If you require clarification or further information on any points, please contact us, especially if you are travelling some distance to view. Fixtures and fittings other than those mentioned are to be agreed with the seller.
Evesham, Worcestershire, WR11
 
        Additional Information
- 
                    Property refEVE240147
- 
                    EPCD
- 
                    TenureFreehold
- 
                    Council TaxE
 
        Similar properties for sale by Reeds Rains Evesham
 
         
         
         
         
         
         
         
         
         
         
         
        The pin shows the exact address of the property
Energy Efficiency Rating
Very energy efficient - lower running costs
Not energy efficient - higher running costs
Current
55Potential
73CO2 Rating
Very energy efficient - lower running costs
Not energy efficient - higher running costs

 
         
         
         
         
         
         
        