This calculator provides a guide to the amount of residential stamp duty you may pay and does not guarantee this will be the actual cost. This calculation is based on the Stamp Duty Land Tax Rates for residential properties purchased from 23rd September 2022 and second homes from 31st October 2024. For more information on Stamp Duty Land Tax, click here.
3 bedroom Detached House for sale, High Street, Portbury, Bristol, BS20
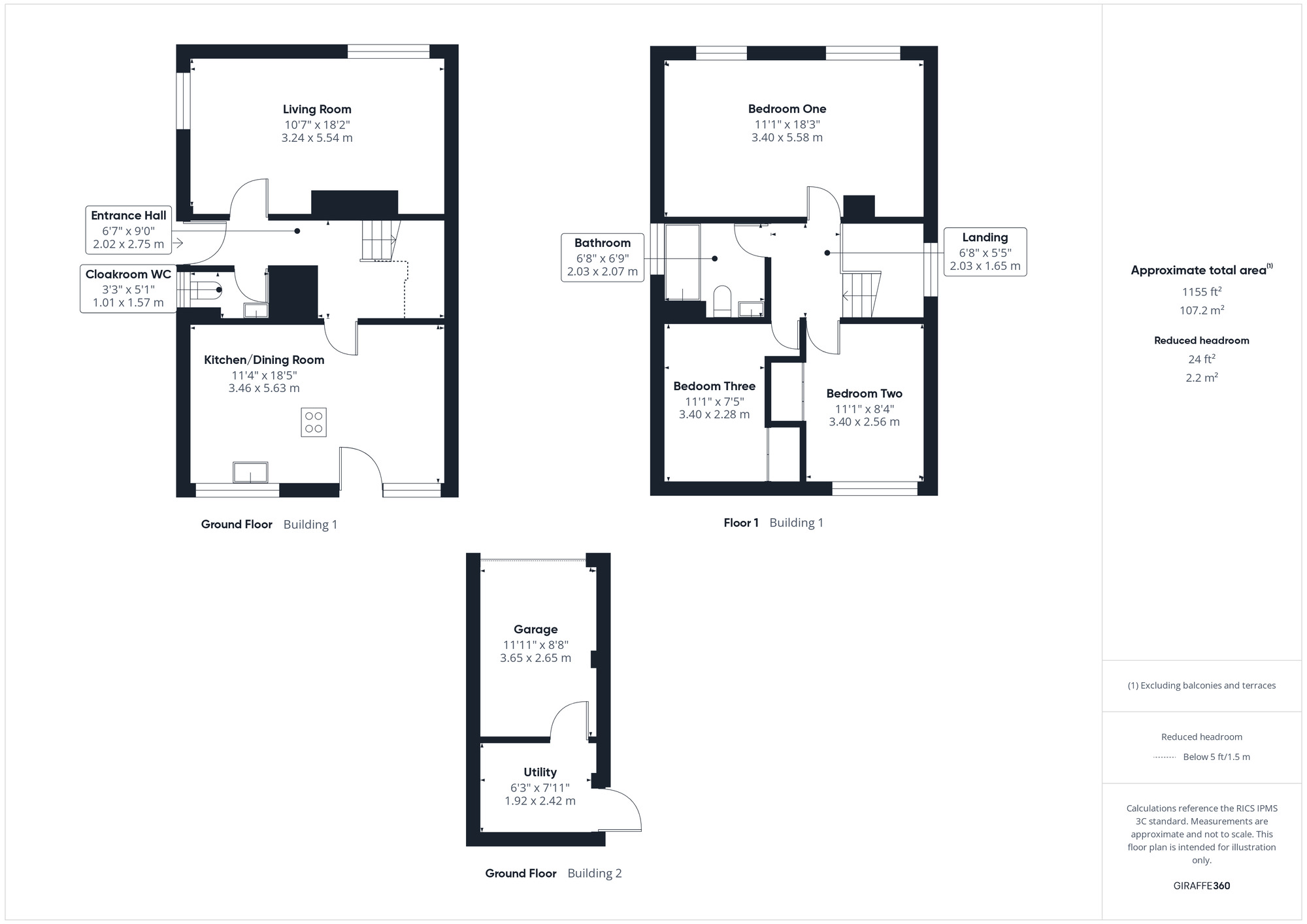
Features and Description
- Fantastic Detached Family Home
- Three Bedrooms
- Spacious Living Room
- Substantial Plot With An Abundance Of Potential
- Driveway & Garage/Utility
- Modern Fitted kitchen
- Newly Fitted Bathroom
- Large Rear Garden
- Located In The Charming Village Of Portbury
- Easy Access Links Into Bristol & To Motorway
- Tenure: Freehold
- Council Tax Band D & EPC Rating C
Reeds Rains are delighted present this fantastic detached family home with an abundance of potential. Accessed via a private lane and situated on a large plot, this home whilst being modern throughout can still go up many levels. Entering the home you are met with an entrance hall, spacious living room with fireplace, stunning kitchen/dining room with access out to the rear garden, making it a great space to entertain. The kitchen is also fitted with a range of integrated appliances. Upstairs, there are three good size bedrooms and a new fitted bathroom. Outside, the property benefits from a substantial rear garden which offers the home potential to extend STP. The garden also features, a patio seating area, large lawn and enclosed with trees and shrubs. There is also side access, a private lane and to the front of the home there is a garage with a separate utility, and a driveway for two vehicles. Portbury village offers both professional couples and family buyers the ideal city retreat. With its easy commuter links, rural walks, village school and traditional pub all within a short distance of the property.
Additional Information
Construction as per EPC: Wall Cavity wall, filled cavity AverageRoof Pitched, 100 mm loft insulation
IMPORTANT NOTE TO POTENTIAL PURCHASERS:
We endeavour to make our particulars accurate and reliable, however, they do not constitute or form part of an offer or any contract and none is to be relied upon as statements of representation or fact. The services, systems and appliances listed in this specification have not been tested by us and no guarantee as to their operating ability or efficiency is given. All photographs and measurements have been taken as a guide only and are not precise. Floor plans where included are not to scale and accuracy is not guaranteed. If you require clarification or further information on any points, please contact us, especially if you are travelling some distance to view. Fixtures and fittings other than those mentioned are to be agreed with the seller.
High Street, Portbury, Bristol, BS20

Additional Information
-
Property refPOR250173
-
EPCC
-
TenureFreehold
-
Council TaxD
-
Local authorityNorth Somerset Council

Similar properties for sale by Reeds Rains Portishead












The pin shows the exact address of the property
Energy Efficiency Rating
Very energy efficient - lower running costs
Not energy efficient - higher running costs
Current
69Potential
83CO2 Rating
Very energy efficient - lower running costs
Not energy efficient - higher running costs