This calculator provides a guide to the amount of residential stamp duty you may pay and does not guarantee this will be the actual cost. This calculation is based on the Stamp Duty Land Tax Rates for residential properties purchased from 23rd September 2022 and second homes from 31st October 2024. For more information on Stamp Duty Land Tax, click here.
4 bedroom Detached House for sale, Kingsgate Avenue, Broadstairs, Kent, CT10
Features and Description
- NO CHAIN
- 4 BEDROOMS
- 3 BATHROOMS
- DETACHED CHALET BUNGALOW
- PRIVATE EXCLUSIVE ROAD
- PARKING FOR MORE THAN 6 CARS
- EXTENDED AND REFURBISHED
- BOTANY BAY AT THE END OF THE ROAD
NO CHAIN - DETACHED CHALET BUNGALOW - EXTENDED AND COMPLETELY REFURBISHED - PRIVATE ROAD!
Located on one of the most exclusive Broadstairs private roads with the award winning Botany Bay beach at the end of the road. This no chain family home has been completely refurbished in the last few years plus had an extension to the rear and a loft conversion added making it ideal for multigenerational living. It has been rewired, replumbed and had a new boiler fitted, new windows and doors, new kitchen and bathrooms, new flooring, replastered and redecorated. Plus it has had an extension added to the rear and a loft conversion with a new roof. There really is nothing to do but move in and enjoy. It benefits on the ground floor from a lobby, spacious entrance hall, master bedroom with ensuite, a further double bedroom and family bathroom. fitted kitchen with integrated appliances, open plan L shaped lounge diner leading to a further living area which could easily be converted into another ground floor bedroom if required.. Upstairs there is a spacious large bedroom plus a further bedroom and another bathroom. Externally the front and south east facing rear garden have both been landscaped with the front providing off street parking for more than half a dozen cars making it ideal for a motorhome plus boat storage to the gated side of the property. This home really needs to be viewed to appreciate all it has to offer and would make an ideal family home or holiday home.
Entrance Lobby
Via a modern composite door, fitted mat, radiator, further wood and glass panelled door into the hall.
Entrance Hall
Spacious hall with Parque flooring radiator, downlights, smoke alarm, 2 storage cupboards plus a utility cupboard housing the washing machine and tumble dryer.
Master Bedroom
Double glazed window to the front with fitted shutters, carpeted, downlights, 2 double wardrobes, radiator, USB point, door to ensuite.
Ensuite
Double glazed obscured window to the rear, tiled floor, walk-in tiled shower cubicle, heated white towel rail, wash basin into gloss white drawered vanity with mirror over, close coupled WC, extractor.
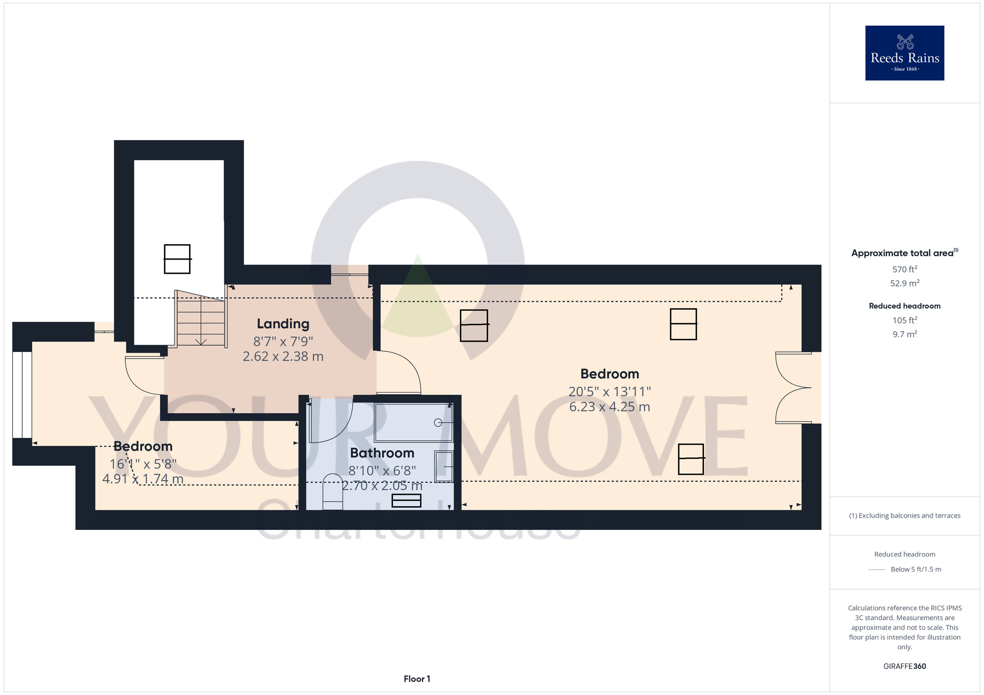
Bedroom
Double glazed bay window to the front with fitted shutters, carpeted, radiator, triple wardrobe, USB points, downlights.
Kitchen Area
Open plan to dining area with a double glazed window to the side with fitted blind. A range of matching wall and base units in a gloss white finish with 1.5 bowl sink and drainer with flexi tap, black work top and matching upstands.. Integrated dish washer, fridge, freezer, 2 eye level electric ovens, electric induction hob with extractor over. Matching LVT flooring running through. Three pendant lights over the breakfast bar plus down lights, smoke alarm, USB points.
Dining Area
Double glazed French doors to the rear garden with fitted blinds plus adjacent double glazed windows to the rear plus a further double glazed window to the side with a fitted blind, LVT flooring, down lights, radiator.
Lounge Area
Double glazed French doors to the rear garden with fitted blinds plus adjacent double glazed windows to the rear plus a further double glazed window to the side with a fitted blind, LVT flooring, down lights, radiator, TV point.
Living Area
Two double glazed windows to the side with fitted blinds, opening to lounge/dining area, radiator, parque flooring, wood and glass panelled door to hall. By erecting a stud wall this could be converted into another bedroom.
First Floor Landing
Via a carpeted balustrade staircase with double glazed Velux window with fitted blind, carpeted landing, eaves storage, smoke alarm
Bedroom
Double glazed Juliette balcony to the rear with fitted blinds, 3 Velux double glazed window with fitted blinds, eaves storage, carpeted, down lights, USB points, 2 radiators.
Bathroom
Double glazed obscured Velux window, tiled walk in shower cubicle, close coupled WC, wash basin into gloss white vanity drawer unit, white heated towel rail, down lights, extractor, tiled floor.
Bedroom
Double glazed window to the front with fitted shutter blind, carpeted, eaves storage, radiator, down lights.
Garage
This has been partially converted so now a storage space with electric roller door, meters and power plus the boiler and tap.
Rear Garden
South easterly enclosed landscaped garden with side returns one with double gates to the front and an ideal space to store a boat etc, shed, water butts, outside tap, lights and sockets. Paved patio area plus further paved seating area.
Entrance Lobby
Via a modern composite door, fitted mat, radiator, further wood and glass panelled door into the hall.
Entrance Hall
Spacious hall with Parque flooring radiator, downlights, smoke alarm, 2 storage cupboards plus a utility cupboard housing the washing machine and tumble dryer.
Master Bedroom
Double glazed window to the front with fitted shutters, carpeted, downlights, 2 double wardrobes, radiator, USB point, door to ensuite.
En-Suite
Double glazed obscured window to the rear, tiled floor, walk-in tiled shower cubicle, heated white towel rail, wash basin into gloss white drawered vanity with mirror over, close coupled WC, extractor.
Bedroom
Double glazed bay window to the front with fitted shutters, carpeted, radiator, triple wardrobe, USB points, downlights.
Kitchen Area
Open plan to dining area with a double glazed window to the side with fitted blind. A range of matching wall and base units in a gloss white finish with 1.5 bowl sink and drainer with flexi tap, black work top and matching upstands.. Integrated dish washer, fridge, freezer, 2 eye level electric ovens, electric induction hob with extractor over. Matching LVT flooring running through. Three pendant lights over the breakfast bar plus down lights, smoke alarm, USB points.
Dining Area
Double glazed French doors to the rear garden with fitted blinds plus adjacent double glazed windows to the rear plus a further double glazed window to the side with a fitted blind, LVT flooring, down lights, radiator.
Lounge Area
Double glazed French doors to the rear garden with fitted blinds plus adjacent double glazed windows to the rear plus a further double glazed window to the side with a fitted blind, LVT flooring, down lights, radiator, TV point.
Living Area
Two double glazed windows to the side with fitted blinds, opening to lounge/dining area, radiator, parque flooring, wood and glass panelled door to hall. By erecting a stud wall this could be converted into another bedroom.
First Floor Landing
Via a carpeted balustrade staircase with double glazed Velux window with fitted blind, carpeted landing, eaves storage, smoke alarm
Bedroom
Double glazed Juliette balcony to the rear with fitted blinds, 3 Velux double glazed window with fitted blinds, eaves storage, carpeted, down lights, USB points, 2 radiators.
Bathroom
Double glazed obscured Velux window, tiled walk in shower cubicle, close coupled WC, wash basin into gloss white vanity drawer unit, white heated towel rail, down lights, extractor, tiled floor.
Bedroom
Double glazed window to the front with fitted shutter blind, carpeted, eaves storage, radiator, down lights.
Garage
This has been partially converted so now a storage space with electric roller door, meters and power plus the boiler and tap.
Rear Garden
South easterly enclosed landscaped garden with side returns one with double gates to the front and an ideal space to store a boat etc, shed, water butts, outside tap, lights and sockets. Paved patio area plus further paved seating area.
IMPORTANT NOTE TO POTENTIAL PURCHASERS:
We endeavour to make our particulars accurate and reliable, however, they do not constitute or form part of an offer or any contract and none is to be relied upon as statements of representation or fact. The services, systems and appliances listed in this specification have not been tested by us and no guarantee as to their operating ability or efficiency is given. All photographs and measurements have been taken as a guide only and are not precise. Floor plans where included are not to scale and accuracy is not guaranteed. If you require clarification or further information on any points, please contact us, especially if you are travelling some distance to view. Fixtures and fittings other than those mentioned are to be agreed with the seller.
Kingsgate Avenue, Broadstairs, Kent, CT10
Additional Information
-
Property refRAS250039
-
EPCC
-
TenureFreehold
-
Council TaxE
-
Local authorityThanet District Council
The pin shows the exact address of the property
Energy Efficiency Rating
Very energy efficient - lower running costs
Not energy efficient - higher running costs
Current
77Potential
80CO2 Rating
Very energy efficient - lower running costs
Not energy efficient - higher running costs
