This calculator provides a guide to the amount of residential stamp duty you may pay and does not guarantee this will be the actual cost. This calculation is based on the Stamp Duty Land Tax Rates for residential properties purchased from 23rd September 2022 and second homes from 31st October 2024. For more information on Stamp Duty Land Tax, click here.
4 bedroom Detached House for sale, Sheppenhall Grove, Aston, Cheshire, CW5
Features and Description
- Peacefully positioned at the head of a cul-de-sac
- Stunning views across Cheshire farmland
- Beautifully modernised four-bedroom family residence
- Bespoke kitchen with quartz surfaces and appliances
- Elegant bathroom finished to a high specification
- Spacious living areas flowing to garden terrace
- Landscaped gardens with lawn, terraces, and planting
- Double driveway and garage providing ample parking
Tucked away at the head of a secluded cul-de-sac in Sheppenhall Grove, Aston, this beautifully appointed four bedroom home combines contemporary comfort with the timeless appeal of open Cheshire countryside. From its position, the property enjoys superb views to the rear across gently rolling farmland, creating a rare sense of privacy and space while remaining within easy reach of the village of Audlem and 13 minuets the to the market town of Nantwich and its sought-after schools, independent shops, and excellent commuter connections.
The house has been thoughtfully modernised with recent updates including a kitchen featuring integrated appliances and quartz surfaces, elegant bathroom finished to a high specification, and a series of energy-efficient improvements that enhance both comfort and economy. The ground floor flows effortlessly, from the entrance hall into a spacious living room with square bay window, versatile family dining Kitchen with aluminum bifold doors. Upstairs, four bedrooms, three of which are fitted with Hammond style wardrobes.
Outside, the garden makes the most of its rural backdrop, offering a perfect balance of lawn, and mature planting. The adjoining fields create an ever-changing outlook, ideal for those who appreciate a sense of tranquility without isolation. A double driveway and garage provide ample parking and storage.
Sheppenhall Grove is a select development in a highly desirable corner of South Cheshire, where country living meets convenience. This home offers a refined lifestyle in an exceptional setting, designed for those who value quality, space, and understated elegance.
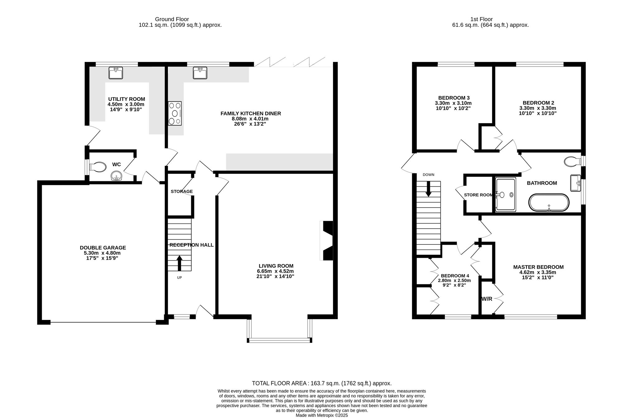
Entrance Hall
Double glazed composite front door, cloak cupboard good size with coat hooks and space for shoes and boots.
Lounge
6.65m x 4.52m Max
Beautifully presented, feature electric open fire effect fireplace with surround, square bay window to front.
Kitchen Family Room
26'6" x 13'2" (8.08m x 4.01m)
Fitted with an extensive range of contemporary wall and base units, the kitchen incorporates a fully integrated dishwasher and fridge freezer, built-in double eye-level ovens, and a five-ring induction hob with extractor above. Quartz worktops complement a full wall of larder units offering generous storage. A one-and-a-half bowl sink with mixer and hot tap sits beneath sleek surfaces, while LVT flooring and double-glazed aluminium bi-fold doors create a seamless connection to the garden. A door leads conveniently through to the utility room.
Utility Room
Exceptional size utility room fitted with a range of base and eye level units, one and a half bowl single drainer sink unit. Quartz work surfaces, LVT flooring. Three doors leading to W.C, Garden access and garage access.
Downstairs WC
Window, low level W.C. Vanity wash hand basin.
Landing
Double glazed door leads to flat roof of garage, good size airing cupboard.
Bedroom 1
4.62m x 3.35m max
Window to front, fitted with Hammond style wardrobes, two doubles and central wardrobe with drawers below.
Bedroom 2
3.3m x 3.3m Max
Window to rear, fitted Hammond style wardrobes.
Bedroom 3
3.3m x 3.1m Max
Window to rear.
Bedroom 4
2.74m x 2.5m max
Window to font fitted with Hammond style wardrobes and matching dressing table.
Garden
Good size front garden Lawn on two sides with a block paved driveway leading to double attached garage. Planted bushes to borders.
Garden
Good size rear garden enclosed with fencing and hedging, mainly laid to lawn overlooking beautiful country farmland views. Awaiting photo's
Heating system
Oil central heating system
Agents Note
Please be advised connected interest, the sellers are related to a Reeds Rains employee.
Buyers Notes
Estate agents are legally required to carry out Anti-Money Laundering (AML) checks on all purchasers of property. Reeds Rains charges a fee of £50.00 plus VAT per purchase transaction for this service. This fee is payable in advance and must be received prior to the issuance of a Memorandum of Sale for the property being purchased.
IMPORTANT NOTE TO POTENTIAL PURCHASERS:
We endeavour to make our particulars accurate and reliable, however, they do not constitute or form part of an offer or any contract and none is to be relied upon as statements of representation or fact. The services, systems and appliances listed in this specification have not been tested by us and no guarantee as to their operating ability or efficiency is given. All photographs and measurements have been taken as a guide only and are not precise. Floor plans where included are not to scale and accuracy is not guaranteed. If you require clarification or further information on any points, please contact us, especially if you are travelling some distance to view. Fixtures and fittings other than those mentioned are to be agreed with the seller.
Sheppenhall Grove, Aston, Cheshire, CW5
Additional Information
-
Property refNAN250263
-
EPCD
-
TenureFreehold
-
Council TaxE
-
Local authorityCheshire East County Council
Similar properties for sale by Reeds Rains Nantwich
Double glazed composite front door, cloak cupboard good size with coat hooks and space for shoes and boots.
Beautifully presented, feature electric open fire effect fireplace with surround, square bay window to front.
Exceptional size utility room fitted with a range of base and eye level units, one and a half bowl single drainer sink unit. Quartz work surfaces, LVT flooring. Three doors leading to W.C, Garden access and garage access.
Window to front, fitted with Hammond style wardrobes, two doubles and central wardrobe with drawers below.
Window to rear, fitted Hammond style wardrobes.
Window to rear.
Window to font fitted with Hammond style wardrobes and matching dressing table.
The pin shows the exact address of the property
Energy Efficiency Rating
Very energy efficient - lower running costs
Not energy efficient - higher running costs
Current
65Potential
76CO2 Rating
Very energy efficient - lower running costs
Not energy efficient - higher running costs
