This calculator provides a guide to the amount of residential stamp duty you may pay and does not guarantee this will be the actual cost. This calculation is based on the Stamp Duty Land Tax Rates for residential properties purchased from 23rd September 2022 and second homes from 31st October 2024. For more information on Stamp Duty Land Tax, click here.











3 bedroom Semi Detached House for sale, Soames Crescent, Stoke-on-Trent, Staffordshire, ST3
Features and Description
- Sought-after residential location
- Close to schools and transport
- Spacious open-plan kitchen
- Bright reception room
- Well-maintained private garden
- Three bedrooms, two doubles
- Modern bathroom with rain shower
- Heated towel rail and TV
- Single garage and ample parking
- Ideal for families or first-time buyers
I am pleased to present this charming semi-detached house for sale, genuinely a key opportunity for first-time buyers or families seeking a home that represents both comfort and convenience. This property being in good condition in a well-sought after area, benefits from its proximity to public transportation links, nearby schools, and local amenities, contributing significantly to its appeal for convenience-focused lifestyle choices.
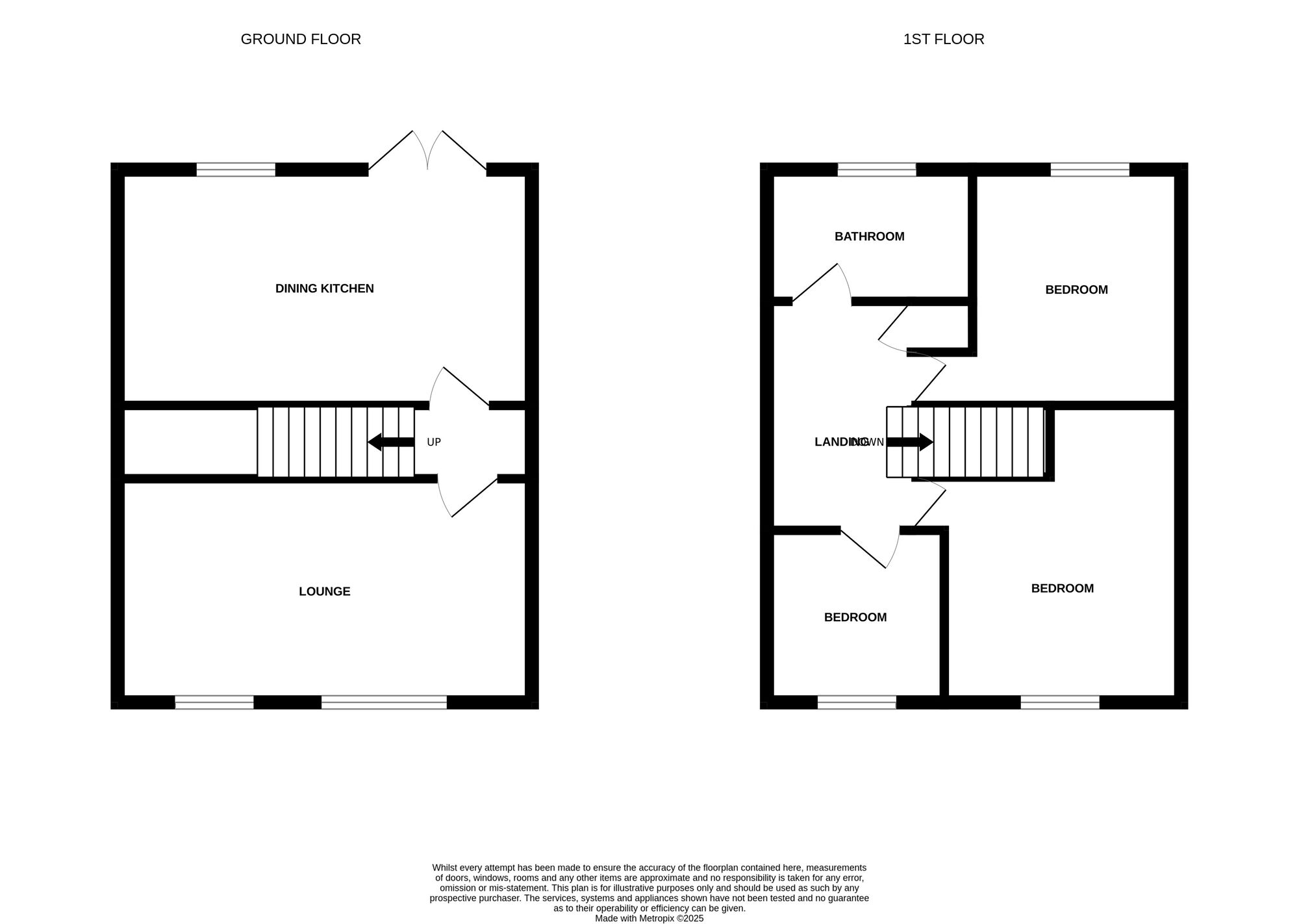
The ground-floor hosts a welcoming reception room, embellished with large windows offering plenty of natural light. It flows seamlessly into the open-plan kitchen, which caters perfectly to efficient contemporary culinary pursuits. The kitchen advances on its convenience with a great dining space and also provides direct access to a wonderfully kept garden. This opens the way for enjoyable al fresco dining or leisurely outdoor family activities.
The home casts further enchantment with three bedrooms on the upper floor. Two are generous double bedrooms, and a single bedroom, of course, ideal for families. Marrying comfort with style, the bathroom takes its place in modern expectations with a rain shower, a heated towel rail and a built-in TV for those who enjoy leisurely pamper sessions.
The property trove doesn't end inside. Its unique features include ample parking facilities, a single garage for that extra convenience, and an inviting garden that seeks playful frolicking or even green thumb pursuits.
Its Council Tax falls under Band "B", ensuring a budget-friendly experience. This property is a pivotal opportunity, presenting a blend of comfortable living with essential amenities smoothly within reach.
Lounge
15'9" x 10'11" (4.81m x 3.32m)
Dining Kitchen
15'9" x 10'10" (4.81m x 3.30m)
Bedroom 1
12'8" x 8'7" (3.86m x 2.62m)
Bedroom 2
11'2" x 8'8" (3.40m x 2.63m)
Bedroom 3
8'2" x 6'11" (2.48m x 2.11m)
Bathroom
6'11" x 7'11" (2.11m x 2.42m)
IMPORTANT NOTE TO POTENTIAL PURCHASERS:
We endeavour to make our particulars accurate and reliable, however, they do not constitute or form part of an offer or any contract and none is to be relied upon as statements of representation or fact. The services, systems and appliances listed in this specification have not been tested by us and no guarantee as to their operating ability or efficiency is given. All photographs and measurements have been taken as a guide only and are not precise. Floor plans where included are not to scale and accuracy is not guaranteed. If you require clarification or further information on any points, please contact us, especially if you are travelling some distance to view. Fixtures and fittings other than those mentioned are to be agreed with the seller.
Soames Crescent, Stoke-on-Trent, Staffordshire, ST3

Additional Information
-
Property refNLY250310
-
EPCC
-
TenureFreehold
-
Council TaxB
-
Local authorityStoke-On-Trent City Council

Similar properties for sale by Reeds Rains Newcastle-under-Lyme











The pin shows the exact address of the property
Energy Efficiency Rating
Very energy efficient - lower running costs
Not energy efficient - higher running costs
Current
71Potential
81CO2 Rating
Very energy efficient - lower running costs
Not energy efficient - higher running costs