This calculator provides a guide to the amount of residential stamp duty you may pay and does not guarantee this will be the actual cost. This calculation is based on the Stamp Duty Land Tax Rates for residential properties purchased from 23rd September 2022 and second homes from 31st October 2024. For more information on Stamp Duty Land Tax, click here.
4 bedroom Detached Property for sale, Chester Road, Oakmere, Cheshire, CW8
Features and Description
- Fully furnished – move-in ready!
- Private hot tub on spacious veranda
- Open-plan lounge/kitchen/diner with appliances
- Four bedrooms (two with en-suite shower rooms)
- Access to Wildshore for water-based activities
- Fantastic rental potential when not in use
This beautifully presented, fully furnished lodge offers the perfect blend of comfort, style, and relaxation, making it an ideal family getaway, a serene second home, or a smart investment opportunity. Step onto the spacious veranda complete with your own private hot tub, and let the lakeside setting wash your worries away.
Inside, the lodge boasts a bright and airy open-plan lounge, kitchen, and dining area – perfect for entertaining or simply enjoying cosy evenings with loved ones. The modern kitchen comes complete with integrated appliances, offering all the convenience of home. With four generous bedrooms, including two en-suites and a stylish main bathroom, there’s plenty of room for the whole family or for hosting guests in comfort.
When you're not using the lodge yourself, take advantage of the lucrative holiday rental potential – let it work for you and pay for itself.
Owners also enjoy access to Wildshore, right on site – an exciting hub for watersports and outdoor activities including paddleboarding, open-water swimming, and more, all set against the stunning backdrop of Delamere Forest.
Whether you're looking for peaceful weekend escapes, an active family base, or a property that offers great returns, this lodge has it all.
Location, Location, Location
Nestled in the heart of the Cheshire countryside, Delamere Lake Holiday Park offers a truly idyllic setting for your holiday home. Surrounded by tranquil woodland and overlooking a picturesque 120-acre lake, this exclusive park provides the perfect balance of peace, nature, and outdoor adventure. The park is located just moments from Delamere Forest, one of the North West’s most popular destinations for walking, cycling, and wildlife spotting. Despite its secluded feel, the park is well-connected, with excellent road links to Chester, Northwich, and Manchester. Local pubs, cafes, and attractions are just a short drive away, giving you the best of both countryside charm and convenience.
Brief Description
This beautifully presented, fully furnished lodge offers the perfect blend of comfort, style, and relaxation, making it an ideal family getaway, a serene second home, or a smart investment opportunity. Step onto the spacious veranda complete with your own private hot tub, and let the lakeside setting wash your worries away.Inside, the lodge boasts a bright and airy open-plan lounge, kitchen, and dining area – perfect for entertaining or simply enjoying cosy evenings with loved ones. The modern kitchen comes complete with integrated appliances, offering all the convenience of home. With four generous bedrooms, including two en-suites and a stylish main bathroom, there’s plenty of room for the whole family or for hosting guests in comfort. When you're not using the lodge yourself, take advantage of the lucrative holiday rental potential – let it work for you and pay for itself. Owners also enjoy access to Wildshore, right on site – an exciting hub for watersports and outdoor activities including paddleboarding, open-water swimming, and more, all set against the stunning backdrop of Delamere Forest.Whether you're looking for peaceful weekend escapes, an active family base, or a property that offers great returns, this lodge has it all.
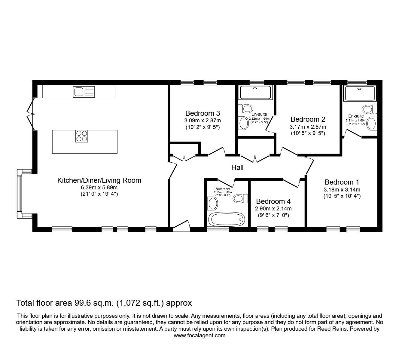
Open Plan Lounge Kitchen Diner
20'12" x 19'4" (6.40m x 5.90m)
Master Bedroom
10'5" x 10'4" (3.18m x 3.15m)
Bedroom 2
10'5" x 9'5" (3.18m x 2.87m)
Bedroom 3
10'2" x 9'5" (3.10m x 2.87m)
Bedroom 4
9'6" x 6'12" (2.90m x 2.13m)
Important Information
The Lodge is under lease to the 15th January 2044. Owners will have the option to renew the lease at the end of this term. Site fees: £+vat per annum as of 2025/26Rates approximately £+vat per annum as of 2025/26 . Gas and electric are provided on site and managed by Haulfryn Group.Haulfryn Group will retain 15% of the sale price in commission paid upon completion by the existing owner.
Agent Note
To be able to purchase a property in the United Kingdom all agents have a legal requirement to conduct Identity checks on all customers involved in the transaction to fulfil their obligations under Anti Money Laundering regulations. We outsource this check to a third party and a charge will apply. Ask the branch for further details.
IMPORTANT NOTE TO POTENTIAL PURCHASERS:
We endeavour to make our particulars accurate and reliable, however, they do not constitute or form part of an offer or any contract and none is to be relied upon as statements of representation or fact. The services, systems and appliances listed in this specification have not been tested by us and no guarantee as to their operating ability or efficiency is given. All photographs and measurements have been taken as a guide only and are not precise. Floor plans where included are not to scale and accuracy is not guaranteed. If you require clarification or further information on any points, please contact us, especially if you are travelling some distance to view. Fixtures and fittings other than those mentioned are to be agreed with the seller.
Chester Road, Oakmere, Cheshire, CW8

Additional Information
-
Property refNOR250159
-
TenureLeasehold
-
Ground RentContact the branch
-
Ground Rent ReviewContact the branch
-
Service ChargeContact the branch

Similar properties for sale by Reeds Rains Northwich























The pin shows the exact address of the property
Energy Efficiency Rating
Very energy efficient - lower running costs
Not energy efficient - higher running costs
Current
N/APotential
N/ACO2 Rating
Very energy efficient - lower running costs
Not energy efficient - higher running costs