This calculator provides a guide to the amount of residential stamp duty you may pay and does not guarantee this will be the actual cost. This calculation is based on the Stamp Duty Land Tax Rates for residential properties purchased from 23rd September 2022 and second homes from 31st October 2024. For more information on Stamp Duty Land Tax, click here.
3 bedroom End Terrace House for sale, Albert Street, Newcastle, Staffordshire, ST5
Features and Description
- Three spacious double bedrooms
- Open-plan living and kitchen
- Large windows with garden views
- Bifold doors to private garden
- Wood flooring and fireplace
- Modern bathroom with free-standing bath
- Parking and single garage
- Sought-after Newcastle location
- Close to schools and amenities
- Excellent transport links nearby
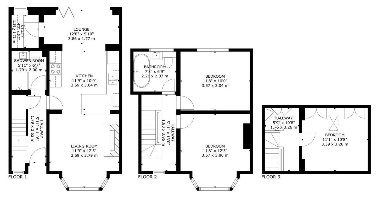
For sale is this immaculate three-bedroom semi-detached house situated on Albert Street, in a sought after location of Newcastle, ST5. The property presents an excellent opportunity for families and investors seeking a well-maintained home with a range of desirable features.
The accommodation comprises an open-plan reception room, offering large windows, wood flooring, and a fireplace, along with garden views and direct access to the garden. The kitchen is also open-plan, benefitting from wood countertops, integrated dining space, and bifold doors leading outside. There are three double bedrooms, including a master bedroom and a loft room, providing flexible living arrangements.
The main bathroom is fitted with a free-standing bath and a heated towel rail. Additional conveniences include parking, single garage, and an enclosed garden, enhancing the practicality of the property. The house is currently in EPC rating D and falls within council tax band B.
Albert Street enjoys proximity to a variety of local amenities, with retail options, cafes, and schools available within walking distance in central Newcastle. The area is served by strong public transport links: Newcastle-under-Lyme bus station is close by, offering connections to Stoke-on-Trent, Hanley, and the wider Staffordshire region. Stoke-on-Trent railway station is approximately ten minutes’ drive, providing regular services to Manchester, Birmingham, and London—journey times to London Euston are around 90 minutes.
Nearby, Queen’s Gardens and Brampton Park provide accessible green spaces, while local schools such as Newcastle Academy and St. Giles’ & St. George’s C of E Academy are within easy reach. This property is well-positioned to enjoy both urban convenience and local community amenities.
Lounge / Kitchen / Diner
28'6" x 11'6" (8.69m x 3.50m)
Utility Room
4'5" x 5'6" (1.35m x 1.68m)
Shower Room / WC
6'6" x 5'7" (1.98m x 1.70m)
Bedroom 1
11'7" x 12'5" (3.53m x 3.78m)
Bedroom 2
11'6" x 9'9" (3.50m x 2.97m)
Bathroom
7'2" x 6'7" (2.18m x 2.00m)
Loft Conversion
10'12" x 10'5" (3.35m x 3.18m)
IMPORTANT NOTE TO POTENTIAL PURCHASERS:
We endeavour to make our particulars accurate and reliable, however, they do not constitute or form part of an offer or any contract and none is to be relied upon as statements of representation or fact. The services, systems and appliances listed in this specification have not been tested by us and no guarantee as to their operating ability or efficiency is given. All photographs and measurements have been taken as a guide only and are not precise. Floor plans where included are not to scale and accuracy is not guaranteed. If you require clarification or further information on any points, please contact us, especially if you are travelling some distance to view. Fixtures and fittings other than those mentioned are to be agreed with the seller.
Albert Street, Newcastle, Staffordshire, ST5
Additional Information
-
Property refNLY250533
-
EPCD
-
Council TaxB
-
Local authorityNewcastle Under Lyme Borough Council
Similar properties for sale by Reeds Rains Newcastle-under-Lyme
The pin shows the exact address of the property
Energy Efficiency Rating
Very energy efficient - lower running costs
Not energy efficient - higher running costs
Current
55Potential
79CO2 Rating
Very energy efficient - lower running costs
Not energy efficient - higher running costs
