This calculator provides a guide to the amount of residential stamp duty you may pay and does not guarantee this will be the actual cost. This calculation is based on the Stamp Duty Land Tax Rates for residential properties purchased from 23rd September 2022 and second homes from 31st October 2024. For more information on Stamp Duty Land Tax, click here.
1 bedroom Flat for sale, Eastern Villas Road, Southsea, Hampshire, PO4
Features and Description
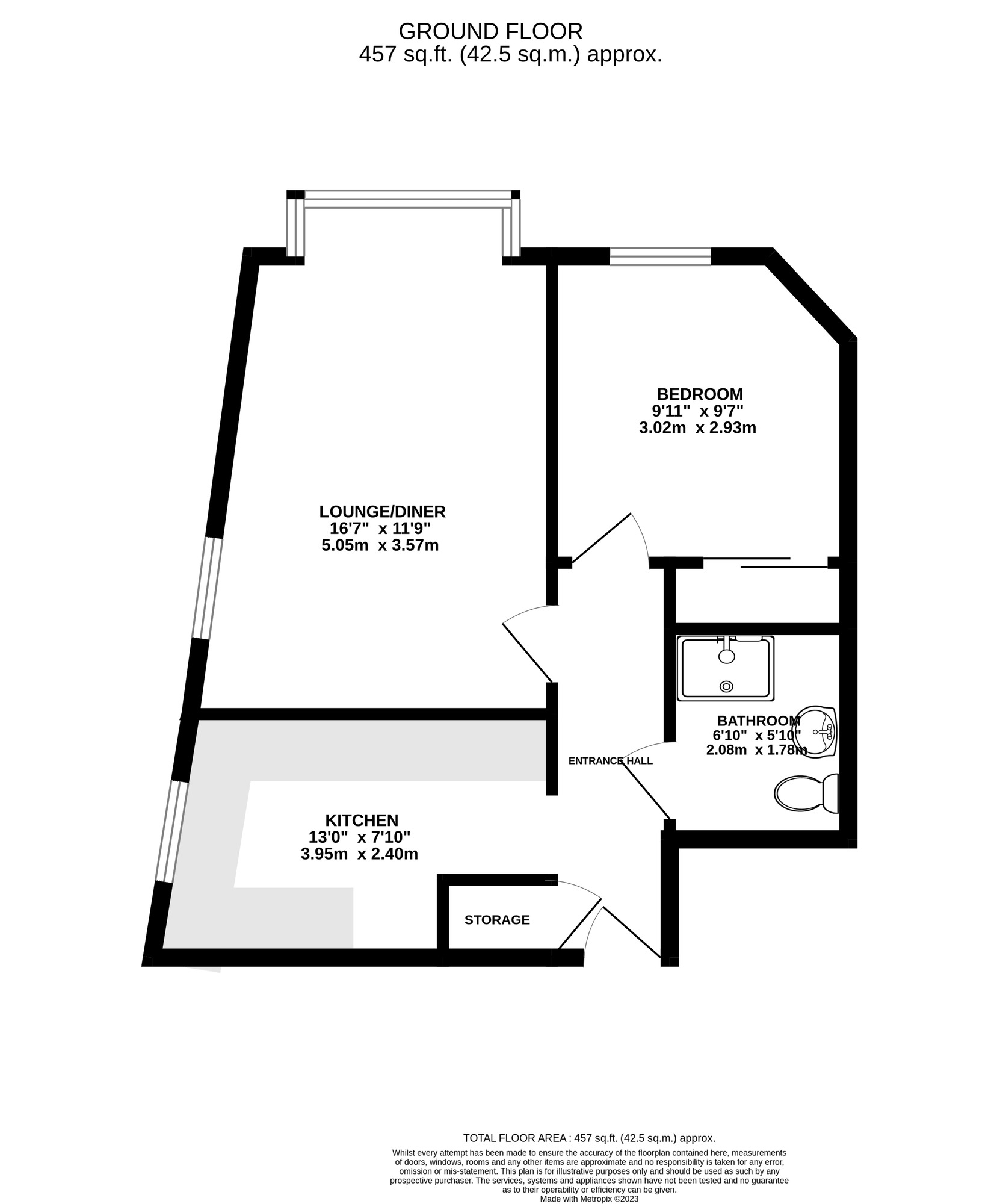
If you are lucky enough to be retired or approaching it (55 and over) then you will struggle to better this glorious ground floor apartment! Why I sense you ask? Well location location and location! Whoever first uttered those words surely had this apartment in mind! Yes stroll out of the well kept front gardens and you will find Southsea beach in front of you, with the pier to the left and the rock gardens to the right. The home is also well presented with generous accommodation including a good size separate kitchen, newly fitted wet room/bathroom, large sitting room and double bedroom. Another key feature is the bright spacious feel with its south and west facing aspect all creating a calming welcoming feel. To the rea of the building can be found residents parking. The home is well set up for the couple or retired person with out of hours careline and support/security afforded by the managing agents. Offered for sale with no forward chain we feel viewing is recommended to appreciate all that is on offer!
Full Description
If you are lucky enough to be retired or approaching it (55 and over) then you will struggle to better this glorious ground floor apartment! Why I sense you ask? Well location location and location! Whoever first uttered those words surely had this apartment in mind! Yes stroll out of the well kept front gardens and you will find Southsea beach in front of you, with the pier to the left and the rock gardens to the right. The home is also well presented with generous accommodation including a good size separate kitchen, newly fitted wet room/bathroom, large sitting room and double bedroom. Another key feature is the bright spacious feel with its south and west facing aspect all creating a calming welcoming feel. To the rea of the building can be found residents parking. The home is well set up for the couple or retired person with out of hours careline and support/security afforded by the managing agents. Offered for sale with no forward chain we feel viewing is recommended to appreciate all that is on offer!
Communal Entrance
With security intercom.
Entrance Hall
Useful space and doors off;
Sitting Room
A fine sunny room wit its dual aspect windows. Plenty of space for sofas and perhaps dining room table and chairs.
Bedroom
With window to rear elevation.
Kitchen
Its an appealing modern kitchen with a range of contemporary style base and eye level units under roll edge worksurfaces. Cooker point , single sink and window to side elevation.
Bathroom
Recently fitted as a wet room room with shower, low level W/C and wash hand basin.
Residents Parking
Parking to the rear for approximately 9 cars.
Gardens
Lovely communal gardens wrap around the home.
Lease Details
99 Years from 19th July 2013. Service charge for 2023 is £320.43 pcm.
IMPORTANT NOTE TO POTENTIAL PURCHASERS:
We endeavour to make our particulars accurate and reliable, however, they do not constitute or form part of an offer or any contract and none is to be relied upon as statements of representation or fact. The services, systems and appliances listed in this specification have not been tested by us and no guarantee as to their operating ability or efficiency is given. All photographs and measurements have been taken as a guide only and are not precise. Floor plans where included are not to scale and accuracy is not guaranteed. If you require clarification or further information on any points, please contact us, especially if you are travelling some distance to view. Fixtures and fittings other than those mentioned are to be agreed with the seller.
Eastern Villas Road, Southsea, Hampshire, PO4
Additional Information
-
Property refSOU230058
-
EPCD
-
TenureLeasehold
-
Lease length86 years
-
Council TaxB
-
Ground RentContact the branch
-
Ground Rent ReviewContact the branch
-
Service ChargeContact the branch
Similar properties for sale by Reeds Rains Southsea
The pin shows the exact address of the property
Energy Efficiency Rating
Very energy efficient - lower running costs
Not energy efficient - higher running costs
Current
67Potential
76CO2 Rating
Very energy efficient - lower running costs
Not energy efficient - higher running costs
