This calculator provides a guide to the amount of residential stamp duty you may pay and does not guarantee this will be the actual cost. This calculation is based on the Stamp Duty Land Tax Rates for residential properties purchased from 23rd September 2022 and second homes from 31st October 2024. For more information on Stamp Duty Land Tax, click here.
2 bedroom Flat for sale, Hawthorn Street, Wilmslow, Cheshire, SK9
Features and Description
- PERIOD CONVERTED BUILDING
- GROUND FLOOR POSITION
- CHAIN FREE SELLER
- TOWN CENTRE LOCATION
- SECURE GATED PARKING
- MODERN INTERIOR
*GROUND FLOOR APARTMENT/ SECURE GATED PARKING*
Pembroke House is a skilfully converted period building of just eight stylish apartments set within secure gated grounds. This fabulous ground floor apartment will appeal to a variety of buyers and investors looking for an elegantly presented apartment within a short stroll of Wilmslow town centre and train station. Pembroke House is set back off Hawthorn Street with gated access, and comprises in brief:- Remote fob operated gates leading to the car park and apartments. Communal entrance hall, private entrance hall with video entry system. Open plan living room and stylish fitted kitchen with many integrated appliances. The breakfast bar separates the kitchen area to the living area with high ceilings and dual aspect windows allowing ample natural light to flood in. There are two bedrooms and a wet room. The master bedroom offers ample space for a king size bed and wardrobes.
PUBLIC NOTICE Reeds Rains are now in receipt of an offer for the sum of £231,000 for 2 Pembroke House. Anyone wishing to place an offer on this property should contact reeds Rains, 32 Alderley Road, Wilmslow SK9 1JX 01625522293.
*PLEASE CALL TO ARRANGE YOUR ACCOMPANIED VIEWING*
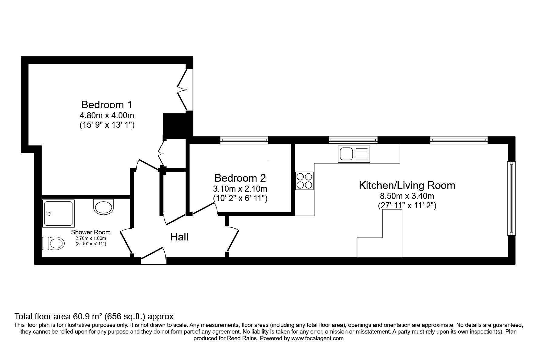
Entrance Hall
Tiled floor, radiator, intercom video and useful storage cupboard.
Living area
The breakfast bar separates the kitchen and living/dining area. With double glazed picture window and further double glazed window and contemporary radiator.
Open plan kitchen / living room
6.5 x 3.2
Fitted with a range of base and wall units with work surfaces over incorporating stainless steel sink unit and breakfast bar area with space for bar stools, four ring Bosch hob with extractor over, double oven, built in microwave, integrated coffee machine, integrated slimline wine cooler, three double glazed windows to two elevations allowing ample natural light to flood in, high ceilings, tiled floor and Worcester central heating boiler.
Bedroom 1
4.1 x 4.6
Laminate wood floor, space for king side bed and wardrobes, French doors to decked patio area, wall mounted contemporary radiator.
Bedroom 2
3.2 x 1.8
Double bedroom with double glazed window to side, radiator and built in wardrobes.
Bathroom
A stylish wet room with low level wc, wash hand basin, overhead shower and hand held attachment, attractive tiled walls, recessed ceiling spotlights.
General info
Service Charge £185.00 PCMUPRN 10007965226Floor Area 667 ft2/ 62 m2Plot Size 0.02 acresLocal Authority Cheshire EastConservation Area NoCouncil Tax Band Band DCouncil Tax Estimate £2,217Year Built 1996-2002Rivers & Seas No RiskSurface Water LowBroadband (estimated speeds)Standard 15 mbpsSuperfast 175 mbpsUltrafast 1000 mbps
IMPORTANT NOTE TO POTENTIAL PURCHASERS:
We endeavour to make our particulars accurate and reliable, however, they do not constitute or form part of an offer or any contract and none is to be relied upon as statements of representation or fact. The services, systems and appliances listed in this specification have not been tested by us and no guarantee as to their operating ability or efficiency is given. All photographs and measurements have been taken as a guide only and are not precise. Floor plans where included are not to scale and accuracy is not guaranteed. If you require clarification or further information on any points, please contact us, especially if you are travelling some distance to view. Fixtures and fittings other than those mentioned are to be agreed with the seller.
Hawthorn Street, Wilmslow, Cheshire, SK9
Additional Information
-
Property refWIL250291
-
EPCC
-
TenureLeasehold
-
Council TaxD
-
Ground RentContact the branch
-
Ground Rent ReviewContact the branch
-
Service ChargeContact the branch
Similar properties for sale by Reeds Rains Wilmslow
Laminate wood floor, space for king side bed and wardrobes, French doors to decked patio area, wall mounted contemporary radiator.
Double bedroom with double glazed window to side, radiator and built in wardrobes.
A stylish wet room with low level wc, wash hand basin, overhead shower and hand held attachment, attractive tiled walls, recessed ceiling spotlights.
The pin shows the exact address of the property
Energy Efficiency Rating
Very energy efficient - lower running costs
Not energy efficient - higher running costs
Current
71Potential
71CO2 Rating
Very energy efficient - lower running costs
Not energy efficient - higher running costs
