This calculator provides a guide to the amount of residential stamp duty you may pay and does not guarantee this will be the actual cost. This calculation is based on the Stamp Duty Land Tax Rates for residential properties purchased from 23rd September 2022 and second homes from 31st October 2024. For more information on Stamp Duty Land Tax, click here.
1 bedroom Flat for sale, Mortimer Street, Sheffield, South Yorkshire, S1
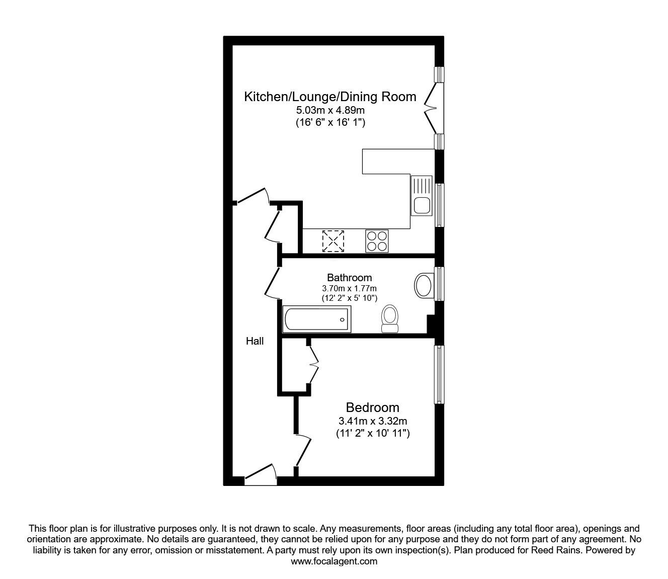
Features and Description
- GROUND FLOOR ONE-BEDROOM APARTMENT
- POPULAR LEADMILL COURT DEVELOPMENT
- OPEN-PLAN LIVING KITCHEN
- DOUBLE BEDROOM & MODERN BATHROOM
- CURRENTLY LET AT £XXX PCM – ROLLING TENANCY
- VACANT POSSESSION AVAILABLE IF REQUIRED
- PRIME SHEFFIELD CITY CENTRE LOCATION
- IDEAL INVESTMENT OR CITY HOME
One-Bedroom Ground Floor Apartment
Key Features:
Popular City Centre location
Ground floor apartment with secure access
Spacious open-plan living kitchen
Double bedroom & modern bathroom
Currently let on a rolling tenancy – income of £700 pcm
Opportunity for vacant possession if desired
Excellent local amenities & transport links
Close to Sheffield’s cultural quarter, bars, restaurants & green spaces
The Property
Situated in the sought-after Leadmill Court development, this well-presented one-bedroom ground floor apartment offers both convenience and comfort.
The property comprises an open-plan living kitchen, designed for modern living and ideal for relaxing or entertaining. The double bedroom is generously sized, while the bathroom is smartly fitted to provide a contemporary finish.
Although a parking space is not included in the sale, there are numerous nearby opportunities to secure a season pass with local car parks, making this a practical choice for city centre living.
Currently let on a rolling tenancy at £xxx pcm, the apartment provides strong rental appeal for investors. Alternatively, vacant possession can be obtained for those wishing to move in and enjoy the property as their own stylish city home.
Location
Leadmill Court enjoys a prime location in Sheffield City Centre, offering fantastic access to everything the city has to offer. Situated close to Sheffield Hallam University, Sheffield Railway Station, and the city’s cultural quarter, the property is perfectly positioned for students, professionals, and investors alike.
Residents benefit from an array of amenities on their doorstep:
A short walk to Sheffield’s Peace Gardens, Winter Garden, and Millennium Gallery
Excellent shopping at Fargate, The Moor, and Meadowhall (a short tram ride away)
Easy access to a wide choice of restaurants, bars, and cafés
Green spaces nearby, including Sheffield Botanical Gardens, Norfolk Heritage Park, and Weston Park
Superb transport connections via train, bus, and Supertram
Why Buy This Property?
Investment Potential – With current rental income of £700 pcm, this apartment offers an attractive yield and is located in a high-demand rental area.
City Centre Lifestyle – Perfect for those seeking a vibrant, well-connected home close to culture, nightlife, and green spaces.
Flexibility – Available with tenant in situ for instant investment returns, or with vacant possession for owner-occupiers.
Strong Location – Sheffield continues to grow as a thriving student, professional, and cultural hub, making property here a solid long-term investment.
Summary
Leadmill Court presents a fantastic opportunity to secure a one-bedroom ground floor apartment in one of Sheffield’s most popular city centre locations. Whether you’re an investor looking for reliable rental income or a buyer seeking a stylish city home, this property ticks all the boxes.
IMPORTANT NOTE TO POTENTIAL PURCHASERS:
We endeavour to make our particulars accurate and reliable, however, they do not constitute or form part of an offer or any contract and none is to be relied upon as statements of representation or fact. The services, systems and appliances listed in this specification have not been tested by us and no guarantee as to their operating ability or efficiency is given. All photographs and measurements have been taken as a guide only and are not precise. Floor plans where included are not to scale and accuracy is not guaranteed. If you require clarification or further information on any points, please contact us, especially if you are travelling some distance to view. Fixtures and fittings other than those mentioned are to be agreed with the seller.
Mortimer Street, Sheffield, South Yorkshire, S1
Additional Information
-
Property refSCI240359
-
EPCC
-
TenureLeasehold
-
Lease length975 years
-
Council TaxA
-
Local authoritySheffield City Council
-
Ground Rent£40
-
Ground Rent ReviewContact the branch
-
Service Charge£1,617
Similar properties for sale by Reeds Rains Sheffield
The pin shows the exact address of the property
Energy Efficiency Rating
Very energy efficient - lower running costs
Not energy efficient - higher running costs
Current
78Potential
78CO2 Rating
Very energy efficient - lower running costs
Not energy efficient - higher running costs
