This calculator provides a guide to the amount of residential stamp duty you may pay and does not guarantee this will be the actual cost. This calculation is based on the Stamp Duty Land Tax Rates for residential properties purchased from 23rd September 2022 and second homes from 31st October 2024. For more information on Stamp Duty Land Tax, click here.
2 bedroom Flat for sale, Norfolk Street, Liverpool, Merseyside, L1
Features and Description
- Two Double Bedrooms
- Two Bathrooms
- No Onward Chain
- Secure Fob Access To Building
No Onward Chain
This wonderfully, light, bright and spacious apartment located on the corner of the 5th floor of the popular Baltic View Development, sits within walking distance of Liverpool City Centre with a short walk to local amenities.
The apartment is located in one of Liverpool's most in demand areas, just a short walk away from a number of bars and restaurants in The Baltic Triangle.
The property briefly comprises of open plan kitchen/living/dining area with modern kitchen and integrated appliances, two generous bedrooms, the main bedroom offering en-suite shower facilities and a further three piece shower room.
The apartment and the building are under 10 years old and you would be only the second owner of the property, meaning, a high energy efficiency rating and lower council tax banding.
EPC Grade - B
Council Tax band - B
EXTERNAL / COMMUNAL
Secure fob and code access to building, stairs & lift to all floors, well-kept communal areas.
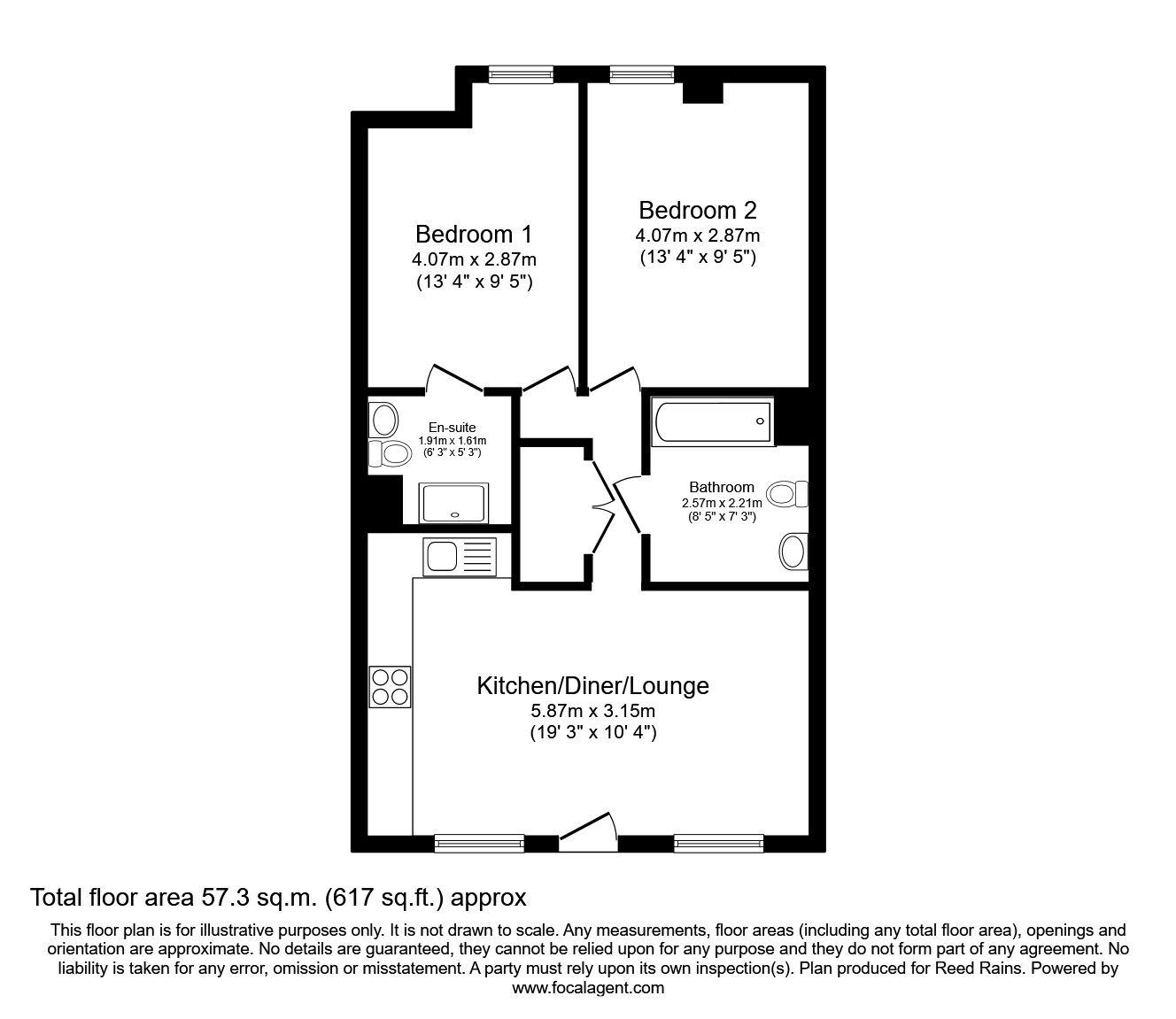
Kitchen / Diner / Lounge
5.87m x 3.15m (approx)
Open-plan living, dining & kitchen with a number of integrated appliances.
Bedroom 1
4.07m x 2.87m (approx)
Main bedroom with space for king sized bed & free standing wardrobes with access to private en-suite.
En-Suite
1.91m x 1.61m (approx)
Three piece modern finished bathroom with toilet & wash basin.
Bedroom 2
4.07m x 2.87m (approx)
Secondary double bedroom with ample space for king sized bed & free standing wardrobes.
Bathroom
2.57m x 2.21m (approx)
Spacious family bathroom with shower & bath facilities, toilet & wash basin.
General Info
Lease: 250 years from and including 1 January 2020 (244 years remaining approx)Service charges: £1,665.56 per annumGround rent: £161.50 per annum
IMPORTANT NOTE TO POTENTIAL PURCHASERS:
We endeavour to make our particulars accurate and reliable, however, they do not constitute or form part of an offer or any contract and none is to be relied upon as statements of representation or fact. The services, systems and appliances listed in this specification have not been tested by us and no guarantee as to their operating ability or efficiency is given. All photographs and measurements have been taken as a guide only and are not precise. Floor plans where included are not to scale and accuracy is not guaranteed. If you require clarification or further information on any points, please contact us, especially if you are travelling some distance to view. Fixtures and fittings other than those mentioned are to be agreed with the seller.
Norfolk Street, Liverpool, Merseyside, L1
Additional Information
-
Property refLIV240745
-
EPCB
-
TenureLeasehold
-
Lease length244 years
-
Council TaxB
-
Ground Rent£162
-
Ground Rent ReviewContact the branch
-
Service Charge£1,666
Similar properties for sale by Reeds Rains Liverpool
The pin shows the exact address of the property
Energy Efficiency Rating
Very energy efficient - lower running costs
Not energy efficient - higher running costs
Current
84Potential
84CO2 Rating
Very energy efficient - lower running costs
Not energy efficient - higher running costs
