This calculator provides a guide to the amount of residential stamp duty you may pay and does not guarantee this will be the actual cost. This calculation is based on the Stamp Duty Land Tax Rates for residential properties purchased from 23rd September 2022 and second homes from 31st October 2024. For more information on Stamp Duty Land Tax, click here.
1 bedroom Flat for sale, Ship Hill, Rotherham, South Yorkshire, S60
Features and Description
- One bedroom
- Tenant in situ
- Town centre location
- Close to local amenities
- Great commuter links
- We estimate a gross rental yield of over 9%
Looking for a modern, well-finished one-bedroom apartment in the heart of Rotherham? This is your chance to enjoy the convenience of town centre living with everything you need right on your doorstep!
This beautifully presented apartment has been finished to a high standard, offering a bright and spacious open-plan living area, a sleek fitted kitchen, and a contemporary bathroom. The bedroom provides a peaceful retreat, perfect for winding down after a busy day.
Located in the vibrant town centre, you’ll have excellent commuter links including nearby train and bus stations, and easy access to the M1. Enjoy a range of local amenities from shops and cafés to gyms and entertainment venues—all just a short walk away.
Don’t miss out on this ideal home for first-time buyers, young professionals, or investors.
Contact us today to arrange a viewing and make this fantastic apartment yours!
Entrance Hall
A front facing door leads into the hall.
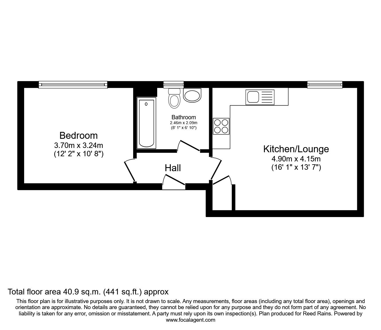
Living Kitchen
16'12" x 12'12" (5.18m x 3.96m)
The living kitchen is fitted with wall and base units with contrasting worksurfaces and tiled splashbacks, a central heating radiator, electric oven and hob, a stainless steel sink and drainer, plumbing, electric radiators and a rear facing window.
Bathroom
The bathroom is fitted with a wc, a wash hand basin, tiled splashbacks, a chrome heated towel rail, wc, bath with shower over and a rear facing wndow.
Bedroom
12'0" x 10'0" (3.66m x 3.05m)
The bedroom is fitted with an electric radiator and a rear facing window.
IMPORTANT NOTE TO POTENTIAL PURCHASERS:
We endeavour to make our particulars accurate and reliable, however, they do not constitute or form part of an offer or any contract and none is to be relied upon as statements of representation or fact. The services, systems and appliances listed in this specification have not been tested by us and no guarantee as to their operating ability or efficiency is given. All photographs and measurements have been taken as a guide only and are not precise. Floor plans where included are not to scale and accuracy is not guaranteed. If you require clarification or further information on any points, please contact us, especially if you are travelling some distance to view. Fixtures and fittings other than those mentioned are to be agreed with the seller.
Ship Hill, Rotherham, South Yorkshire, S60
Additional Information
-
Property refROT250202
-
EPCD
-
TenureLeasehold
-
Council TaxA
-
Local authorityRotherham Borough Council
-
Ground RentContact the branch
-
Ground Rent ReviewContact the branch
-
Service ChargeContact the branch
Similar properties for sale by Reeds Rains Rotherham
The living kitchen is fitted with wall and base units with contrasting worksurfaces and tiled splashbacks, a central heating radiator, electric oven and hob, a stainless steel sink and drainer, plumbing, electric radiators and a rear facing window.
The bathroom is fitted with a wc, a wash hand basin, tiled splashbacks, a chrome heated towel rail, wc, bath with shower over and a rear facing wndow.
The bedroom is fitted with an electric radiator and a rear facing window.
The pin shows the exact address of the property
Energy Efficiency Rating
Very energy efficient - lower running costs
Not energy efficient - higher running costs
Current
59Potential
77CO2 Rating
Very energy efficient - lower running costs
Not energy efficient - higher running costs
