1 bedroom Flat to rent, Barton Road, Stretford, Greater Manchester, M32
Available Unfurnished, from 26/06/2025
Features and Description
- Immaculately presented one-bedroom flat
- Ideal for singles or couples
- Easy reach of Stretford Metrolink
- 15–20 minutes to Manchester centre
- Close to supermarkets and Stretford Mall
- Near parks including Longford Park
- Good access to local schools
- Convenient for Greater Manchester commuting
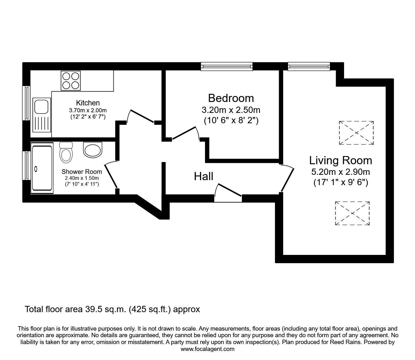
***ZERODEPOSIT GUARANTEE AVAILABLE*** This one-bedroom flat is available to let in Stretford, Manchester, offering accommodation suitable for singles or couples. The property is presented in immaculate condition and comprises a double bedroom, one reception room, a kitchen and a bathroom. It has an EPC rating of E and falls within Council Tax Band A.
The flat is well located for public transport. Stretford Metrolink stop is within easy reach, providing regular tram services towards Manchester city centre, Altrincham and East Didsbury. Journey times into Manchester city centre are typically around 15–20 minutes, making this a practical option for commuters. Local bus routes along the main roads offer further connections across Greater Manchester.
Stretford offers a range of local amenities including supermarkets, independent shops and everyday services. Stretford Mall and the surrounding high street area provide additional retail and dining options. There are nearby schools in the wider Stretford area, making the location convenient for those who may need access to educational facilities.
For outdoor space, Longford Park is a notable nearby green area, offering open parkland, sports facilities and walking routes. There are also smaller local parks within a short distance, providing further opportunities for recreation.
Overall, this flat to let in Stretford combines a one-bedroom layout with access to public transport, local amenities, schools and parks, in a location that supports day-to-day living and commuting into central Manchester and surrounding areas.
IMPORTANT NOTE TO POTENTIAL RENTERS:
We endeavour to make our particulars accurate and reliable, however, they do not constitute or form part of an offer or any contract and none is to be relied upon as statements of representation or fact. The services, systems and appliances listed in this specification have not been tested by us and no guarantee as to their operating ability or efficiency is given. All photographs and measurements have been taken as a guide only and are not precise. Floor plans where included are not to scale and accuracy is not guaranteed. If you require clarification or further information on any points, please contact us, especially if you are travelling some distance to view.
All properties are available for a minimum of six months, with the exception of short term accommodation. A security deposit of at least one month’s rent is required. Rent is to be paid one month in advance. It is the tenant’s responsibility to insure any personal possessions. Payment of all utilities including water rates or metered supply and Council Tax is the responsibility of the tenant in every case.
Client Money Protection is provided by Propertymark. Redress through The Property Ombudsman Scheme.
Barton Road, Stretford, Greater Manchester, M32
The pin shows the exact address of the property
Energy Efficiency Rating
Very energy efficient - lower running costs
Not energy efficient - higher running costs
Current
43Potential
67CO2 Rating
Very energy efficient - lower running costs
Not energy efficient - higher running costs
