1 bedroom Flat to rent, Manchester Road, Stockport, Cheshire, SK4
Available Unfurnished, from 12/12/2025
Features and Description
- Apartment To Let
- Separate Lounge And Bedroom
- Gas Central Heating
- Epc Grade = E
***ZERO DEPOSIT GUARANTEE SCHEME
AVAILABLE***
AVAILABLE FROM 12tH OF MARCH !!!
Reeds rains are proud to present Fantastic, spacious 1 bedroom Apartment situated over two floors.
The master bedroom is a extremely spacious with an en suite bathroom. The long hallway leads onto a large kitchen area.
The lounge is a fantastic size room with high ceilings.
This property is lose to all amenities and transport links. With parking to the rear of the building.
Council tax band - A
EPC rating - E
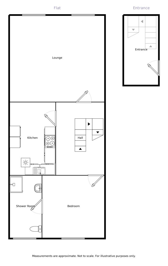
Entrance
0 x 0
Door to side and stairs to the first floor. Landing with Ceiling light point, access to the lounge, kitchen and bedroom.
Lounge
0 x 0
Two double glazed windows to the front, ceiling light point, radiator and TV point.
Kitchen
0 x 0
Fitted is a range of wall and base units with work top over, four ring electric hob, electric oven, extractor fan, space for appliances.
Bedroom
0 x 0
Double glazed window to the rear, ceiling light point and radiator.
Shower Room
0 x 0
Fitted is a three piece suite comprising of low level WC, wash hand basin and shower cubical. Double glazed window to the rear, ceiling light point and radiator.
IMPORTANT NOTE TO POTENTIAL RENTERS:
We endeavour to make our particulars accurate and reliable, however, they do not constitute or form part of an offer or any contract and none is to be relied upon as statements of representation or fact. The services, systems and appliances listed in this specification have not been tested by us and no guarantee as to their operating ability or efficiency is given. All photographs and measurements have been taken as a guide only and are not precise. Floor plans where included are not to scale and accuracy is not guaranteed. If you require clarification or further information on any points, please contact us, especially if you are travelling some distance to view.
All properties are available for a minimum of six months, with the exception of short term accommodation. A security deposit of at least one month’s rent is required. Rent is to be paid one month in advance. It is the tenant’s responsibility to insure any personal possessions. Payment of all utilities including water rates or metered supply and Council Tax is the responsibility of the tenant in every case.
Client Money Protection is provided by Propertymark. Redress through The Property Ombudsman Scheme.
Manchester Road, Stockport, Cheshire, SK4
Door to side and stairs to the first floor. Landing with Ceiling light point, access to the lounge, kitchen and bedroom.
Two double glazed windows to the front, ceiling light point, radiator and TV point.
Fitted is a range of wall and base units with work top over, four ring electric hob, electric oven, extractor fan, space for appliances.
Double glazed window to the rear, ceiling light point and radiator.
Fitted is a three piece suite comprising of low level WC, wash hand basin and shower cubical. Double glazed window to the rear, ceiling light point and radiator.
The pin shows the exact address of the property
Energy Efficiency Rating
Very energy efficient - lower running costs
Not energy efficient - higher running costs
Current
66Potential
72CO2 Rating
Very energy efficient - lower running costs
Not energy efficient - higher running costs
