2 bedroom Flat to rent, Taylorson Street South, Salford, M5
Available Furnished, from 10/01/2026
Features and Description
- Two Double Bedrooms
- Secure Allocated Parking Space
- EPC Grade = C
- Excellent Transport Links
- Two Bathrooms
- 24 Hour Concierge
- Ninth Floor
- Furnished
- Balcony
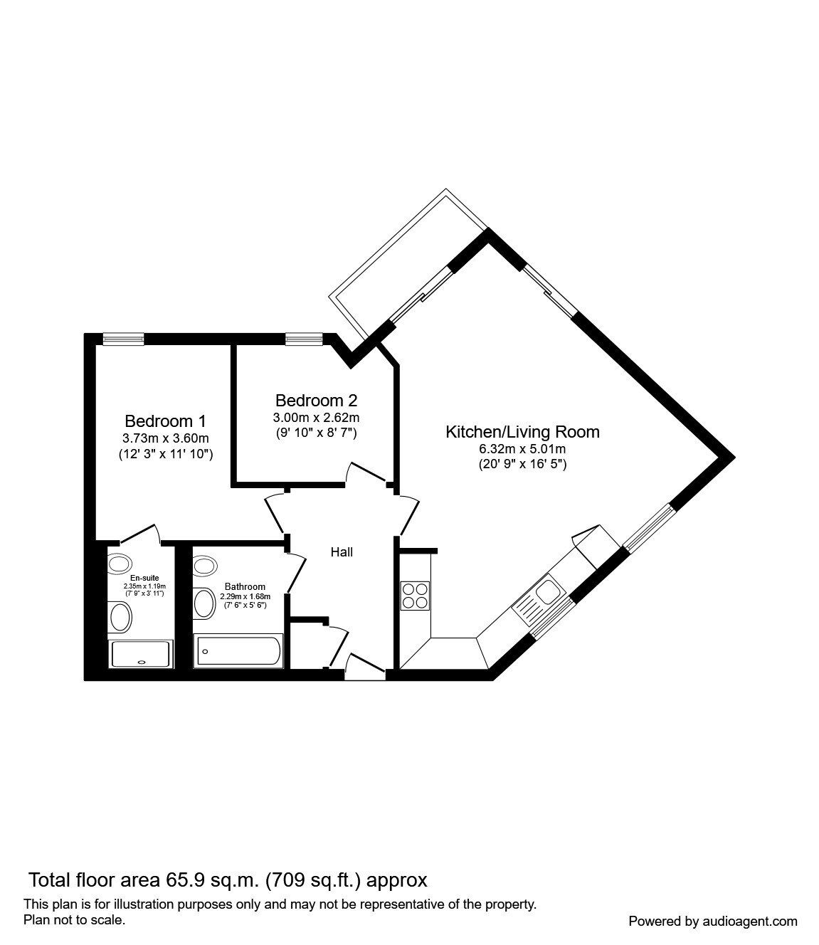
TWO DOUBLE BEDROOM, TWO BATHROOM apartment on the 8th floor of the popular XQ7 development close to Salford Quays. With 24 hour concierge and SECURE ALLOCATED PARKING, viewing is highly recommended.
Offered furnished and available in January, the property comprises entrance hall with storage cupboard, open plan living / dining / kitchen area with balcony off. Two double bedrooms, the main bedroom with en-suite shower room and a family bathroom suite. EPC Grade = C. Council Tax Band = C.
IMPORTANT NOTE TO POTENTIAL RENTERS:
We endeavour to make our particulars accurate and reliable, however, they do not constitute or form part of an offer or any contract and none is to be relied upon as statements of representation or fact. The services, systems and appliances listed in this specification have not been tested by us and no guarantee as to their operating ability or efficiency is given. All photographs and measurements have been taken as a guide only and are not precise. Floor plans where included are not to scale and accuracy is not guaranteed. If you require clarification or further information on any points, please contact us, especially if you are travelling some distance to view.
All properties are available for a minimum of six months, with the exception of short term accommodation. A security deposit of at least one month’s rent is required. Rent is to be paid one month in advance. It is the tenant’s responsibility to insure any personal possessions. Payment of all utilities including water rates or metered supply and Council Tax is the responsibility of the tenant in every case.
Client Money Protection is provided by Propertymark. Redress through The Property Ombudsman Scheme.
Taylorson Street South, Salford, M5
Similar properties to rent by Reeds Rains Salford Quays
The pin shows the exact address of the property
Energy Efficiency Rating
Very energy efficient - lower running costs
Not energy efficient - higher running costs
Current
77Potential
81CO2 Rating
Very energy efficient - lower running costs
Not energy efficient - higher running costs
