This calculator provides a guide to the amount of residential stamp duty you may pay and does not guarantee this will be the actual cost. This calculation is based on the Stamp Duty Land Tax Rates for residential properties purchased from 23rd September 2022 and second homes from 31st October 2024. For more information on Stamp Duty Land Tax, click here.
3 bedroom House for sale, Chapel Lane, Wilmslow, Cheshire, SK9
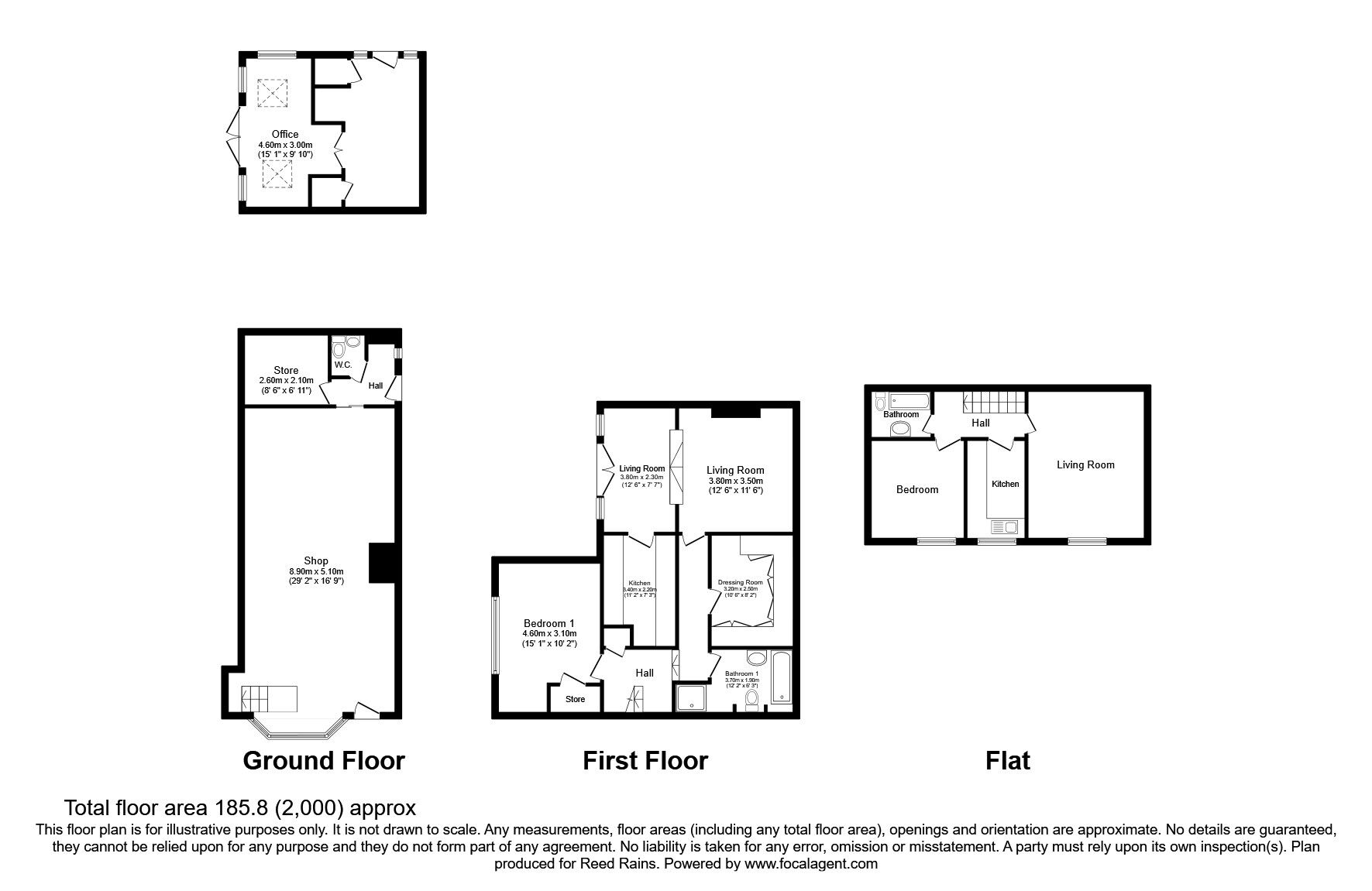
Features and Description
*INVESTMENT OPPORTUNITY!/ MIXED USE PROPERTY FOR SALE*
A superb investment property comprising of three units (two residential and one commercial). Selling with No onward chain, and it is available to purchase with the existing tenants. Situated on the highly popular and vibrant Chapel Lane, with a range of independent retailers. The building has been owned since 1985/6 and extended at the rear in more recent years, which created a fantastic split level property for the owner to live in. Gated parking at the rear for several vehicles. In further detail, all three units are on one title, and comprise as follows-
Front commercial unit (barber Shop), shop floor, staff room, WC, and a small kitchen area. immaculate, and refurbished by the tenant in the last 3 years. Above the shop is a 1 bed flat, (requires refurbishment), it does have double glazing, and is accessed via it's own front door. To the rear, is a fantastic property arranged over two floors. Private entrance, home office/ reception room with bi-fold doors and Velux windows. Upstairs, there are two bedrooms (bed 2 currently fitted as a dressing room), kitchen, and a split level lounge/ dining area with a full height window and Juliette balcony. EPC -E
*Further information can be provided upon request* IF YOU WOULD LIKE COMMERCIAL MORTGAGE ADVISE, TO PURCHASE AS A BUY 2 LET, PLEASE GET IN TOUCH.
Shop floor
8.9 x 5.1
Staff room
2.6 x 2.1
Reception Room / home office
4.6 x 3.0
Bedroom 1
4.6 x 3.10
Bedroom 2 / dressing room
3.2 x 2.5
Kitchen
3.4 x 2.2
Lounge / diner
3.80 x 3.50 not inc lower area
IMPORTANT NOTE TO POTENTIAL PURCHASERS:
We endeavour to make our particulars accurate and reliable, however, they do not constitute or form part of an offer or any contract and none is to be relied upon as statements of representation or fact. The services, systems and appliances listed in this specification have not been tested by us and no guarantee as to their operating ability or efficiency is given. All photographs and measurements have been taken as a guide only and are not precise. Floor plans where included are not to scale and accuracy is not guaranteed. If you require clarification or further information on any points, please contact us, especially if you are travelling some distance to view. Fixtures and fittings other than those mentioned are to be agreed with the seller.
Chapel Lane, Wilmslow, Cheshire, SK9
Additional Information
-
Property refWIL220473
-
EPCE
-
TenureFreehold
-
Council TaxNA
Similar properties for sale by Reeds Rains Wilmslow
The pin shows the exact address of the property
Energy Efficiency Rating
Very energy efficient - lower running costs
Not energy efficient - higher running costs
Current
41Potential
N/ACO2 Rating
Very energy efficient - lower running costs
Not energy efficient - higher running costs
