This calculator provides a guide to the amount of residential stamp duty you may pay and does not guarantee this will be the actual cost. This calculation is based on the Stamp Duty Land Tax Rates for residential properties purchased from 23rd September 2022 and second homes from 31st October 2024. For more information on Stamp Duty Land Tax, click here.



Land/Plot for sale, Rectory Road, Duckmanton, Derbyshire, S44
Features and Description
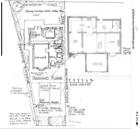
- Land with full planning for 3 bed detached house
- Stunning views over farmland
- Close to transport Links
DEVELOPMENT OPPORTUNITY! A opportunity to build your own home within the lovely village of Duckmanton, boasting open views to farmland and afar! So if you're looking to build your own home or for an investment opportunity, this is plot of land could be the answer as the full planning has been approved for a three bedroom detached house! Call our Chesterfield Branch to arrange your viewing!
Agent Note
To be able to purchase a property in the United Kingdom all agents have a legal requirement to conduct Identity checks on all customers involved in the transaction to fulfil their obligations under Anti Money Laundering regulations. We outsource this check to a third party and a charge will apply. Ask the branch for further details.
Land
DEVELOPMENT OPPORTUNITY! A opportunity to build your own home within the lovely village of Duckmanton, boasting open views to farmland and afar! Other local attractions include Bolsover Castle, Chatsworth House and Cresswell Craggs not to mention the walks available in this area! So if you're looking to build your own home or for an investment opportunity, this is plot of land could be the answer as the full planning has been approved for a three bedroom detached house with a design for modern living and efficiency. Full planning documentation can be found via Chesterfield Brough Council.
Land Details
Ground survey completeDrainage survey completeDrop kerb already in placeGas main on the roadElectric point by the gate
IMPORTANT NOTE TO POTENTIAL PURCHASERS:
We endeavour to make our particulars accurate and reliable, however, they do not constitute or form part of an offer or any contract and none is to be relied upon as statements of representation or fact. The services, systems and appliances listed in this specification have not been tested by us and no guarantee as to their operating ability or efficiency is given. All photographs and measurements have been taken as a guide only and are not precise. Floor plans where included are not to scale and accuracy is not guaranteed. If you require clarification or further information on any points, please contact us, especially if you are travelling some distance to view. Fixtures and fittings other than those mentioned are to be agreed with the seller.
Rectory Road, Duckmanton, Derbyshire, S44

Additional Information
-
Property refCHS250011
-
TenureFreehold
-
Council TaxNA

Similar properties for sale by Reeds Rains Chesterfield



The pin shows the exact address of the property
Energy Efficiency Rating
Very energy efficient - lower running costs
Not energy efficient - higher running costs
Current
N/APotential
N/ACO2 Rating
Very energy efficient - lower running costs
Not energy efficient - higher running costs