This calculator provides a guide to the amount of residential stamp duty you may pay and does not guarantee this will be the actual cost. This calculation is based on the Stamp Duty Land Tax Rates for residential properties purchased from 23rd September 2022 and second homes from 31st October 2024. For more information on Stamp Duty Land Tax, click here.
 
         
         
         
         
         
         
         
         
         
         
         
         
         
         
         
         
         
         
         
         
         
         
        3 bedroom Mid Terrace House for sale, Ballycairn Drive, Belfast, County Antrim, BT8
Features and Description
- Attractive Mid Terrace Property
- Convenient Location Off The Milltown Road
- Chain Free Sale
- Bright And Spacious Living Room
- Modern Fitted Kitchen With Ample Dining Space
- Three Generous Bedrooms
- Contemporary Bathroom Suite
- Low Maintenance Garden Areas To The Front & Rear
- PVC Double Glazed Windows Throughout
- Oil Fired Central Heating
- Ideal For First Time Buyers Or Investors
Situated in a quiet, well established residential area just off the popular Milltown Road, this attractive mid terrace property offers modern, well appointed accommodation in a highly convenient South Belfast location. With easy access to the A55, Belfast City Centre is within straightforward commuting distance, and the nearby Tesco at Newtownbreda and Lesley Forestside are only a short drive away.
Internally, the home has been beautifully maintained throughout. The ground floor comprises a bright and spacious living room and a kitchen with ample dining space and integrated appliances. Upstairs, the first floor boasts three generously sized bedrooms and a contemporary family bathroom suite.
Externally, the property offers low maintenance outdoor space. The front garden has been laid with decorative stone and mature plants and shrubs. The rear garden includes a paved area, a decking area, and additional plants and shrubs.
The property further benefits from PVC double glazing throughout and an oil fired central heating system.
This delightful home will appeal to a wide range of purchasers, particularly first time buyers and investors. Early viewing is highly recommended.
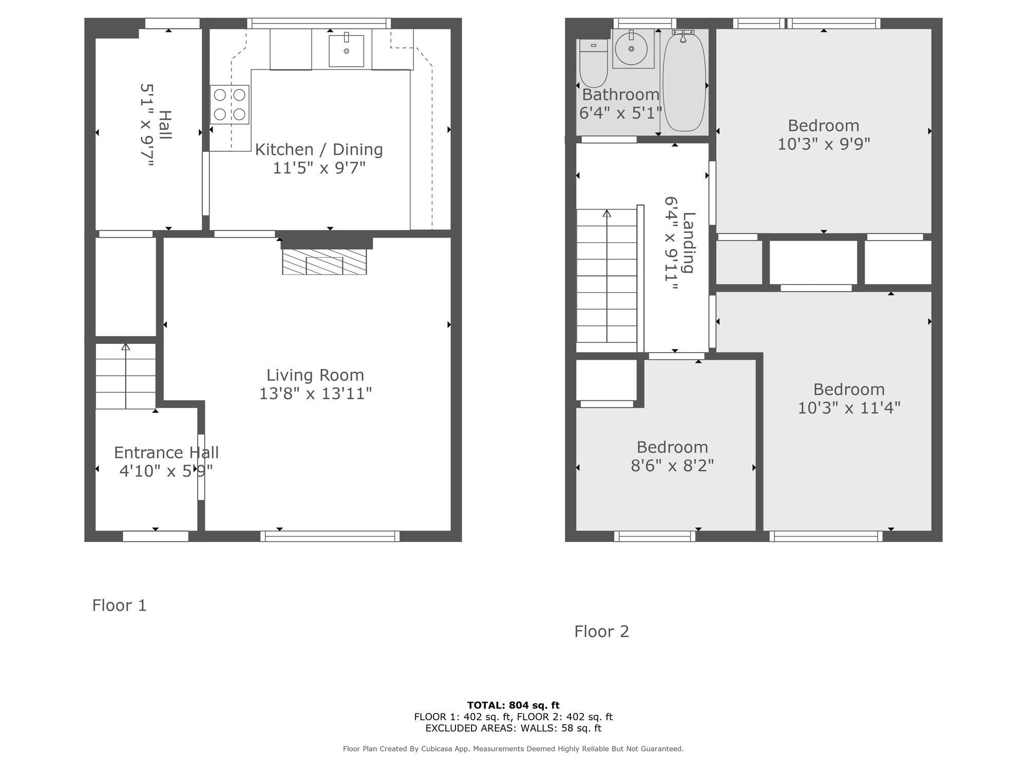
Entrance Hall
A welcoming entrance hall with PVC front door and laminate flooring.
Living Room
13'11" x 13'8" (4.24m x 4.17m)
A spacious living room with bright window, laminate flooring, ceiling cornicing and electric fire.
Kitchen
11'5" x 9'7" (3.48m x 2.92m)
The kitchen has an excellent range of high and low level units, integrated electric hob and oven, integrated fridge freezer, extractor, single drainer with mixer tap and ample dining space. The kitchen has a tiled floor, partially tiled walls and a tongue and groove ceiling.
Bedroom 1
11'4" x 10'3" (3.45m x 3.12m)
A large master bedroom with laminate flooring, cornicing and built in wardrobe.
Bedroom 2
10'3" x 9'9" (3.12m x 2.97m)
An excellent double bedroom with laminate flooring, cornicing and built in wardrobe.
Bedroom 3
8'6" x 8'2" (2.60m x 2.50m)
A very generous third bedroom with above-stair storage
Bathroom
6'4" x 5'1" (1.93m x 1.55m)
An attractive bathroom with white suite to include a low flush wc, wash hand basin with mixer tap, and a bath with overhead electric shower. The bathroom has been fully tiled and has a tongue and groove ceiling.
OUTSIDE
The front garden has a tiled walkway leading to the door, and a decorative stone area with plants and shrubs. The rear has paved and decking areas and further plants and shrubs. There is also an outside light and tap.
CUSTOMER DUE DILIGENCE
As a business carrying out estate agency work, we are required to verify the identity of both the vendor and the purchaser as outlined in the following: The Money Laundering, Terrorist Financing and Transfer of Funds (Information on the Payer) Regulations 2017 - https://www.legislation.gov.uk/uksi/2017/692/contents.To be able to purchase a property in the United Kingdom all agents have a legal requirement to conduct Identity checks on all customers involved in the transaction to fulfil their obligations under Anti Money Laundering regulations. We outsource this check to a third party and a charge will apply of £30 + VAT for a single purchaser or £50 + VAT per couple.
IMPORTANT NOTE TO POTENTIAL PURCHASERS:
We endeavour to make our particulars accurate and reliable, however, they do not constitute or form part of an offer or any contract and none is to be relied upon as statements of representation or fact. The services, systems and appliances listed in this specification have not been tested by us and no guarantee as to their operating ability or efficiency is given. All photographs and measurements have been taken as a guide only and are not precise. Floor plans where included are not to scale and accuracy is not guaranteed. If you require clarification or further information on any points, please contact us, especially if you are travelling some distance to view. Fixtures and fittings other than those mentioned are to be agreed with the seller.
Ballycairn Drive, Belfast, County Antrim, BT8
 
        Additional Information
- 
                    Property refBEL250285
- 
                    EPCD
 
        Similar properties for sale by Reeds Rains Belfast
 
         
         
         
         
         
         
         
         
         
         
         
         
         
         
         
         
         
         
         
         
         
         
        The pin shows the exact address of the property
Energy Efficiency Rating
Very energy efficient - lower running costs
Not energy efficient - higher running costs
Current
55Potential
75CO2 Rating
Very energy efficient - lower running costs
Not energy efficient - higher running costs

 
         
         
         
         
         
         
        