This calculator provides a guide to the amount of residential stamp duty you may pay and does not guarantee this will be the actual cost. This calculation is based on the Stamp Duty Land Tax Rates for residential properties purchased from 23rd September 2022 and second homes from 31st October 2024. For more information on Stamp Duty Land Tax, click here.
3 bedroom Mid Terrace House for sale, Bennison Street, Guisborough, North Yorkshire, TS14
Features and Description
- Prime Location – Just 5 minutes’ walk from Guisborough’s bustling High Street.
- Stylishly renovated with no work required.
- Large lounge with high ceilings and feature fireplace.
- Modern Kitchen – High-gloss units
- Three beautifully decorated doubles with ample space.
- Outdoor Appeal – Private yard with storage outhouse, plus permit parking nearby.
Step into style and convenience with this beautifully renovated three-bedroom home, just a five-minute stroll from Guisborough’s lively High Street. Perfect for first-time buyers, this property is completely move-in ready—no DIY, no stress, just unpack and enjoy!
From the moment you enter, you’ll feel the space and charm. The welcoming hallway leads to a bright dining room at the front, complete with a stunning cast iron fireplace and plenty of room for hosting family dinners or entertaining friends. Flowing through, the spacious living room is a true showstopper—high ceilings, a gorgeous feature fireplace, and over 14 feet of space to relax in style. There’s even a handy understairs cupboard for extra storage.
The modern galley kitchen is designed for both function and flair, featuring sleek high-gloss units, an electric double oven, ceramic hob, and integrated dishwasher. A rear lobby doubles as a utility area with plumbing for laundry appliances and direct access to the yard. The ground floor is completed by a contemporary bathroom with a crisp white suite and a built-in cupboard housing the efficient combination boiler.
Upstairs, the central landing connects three generously sized bedrooms, all beautifully decorated and easily accommodating double beds. High ceilings and immaculate finishes create a sense of light and luxury throughout.
Outside, the private rear yard is a little oasis—perfect for a bistro set, potted plants, and summer evenings. There’s even a practical storage outhouse for bikes or garden tools. Parking is available on Bennison Street with permits from the local council.
Location is everything—and this home has it all. Shops, cafés, and everyday essentials are just around the corner, making life effortless. If you’re looking for a stylish, low-maintenance home in the heart of Guisborough, this is the one you’ve been waiting for!
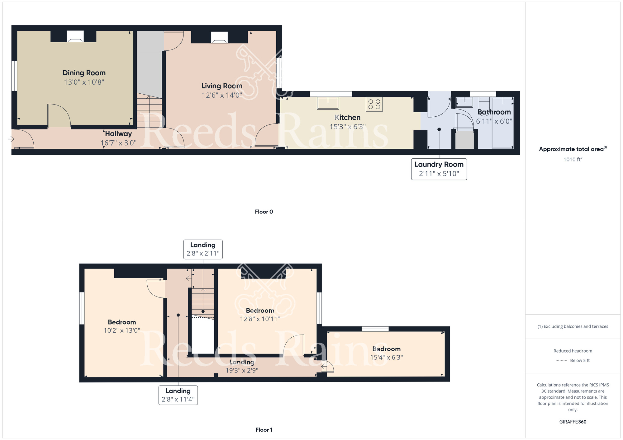
Hallway
16'7" x 2'12" (5.05m x 0.91m)
Dining Room
12'12" x 10'8" (3.96m x 3.25m)
Living Room
12'6" x 14'0" (3.80m x 4.27m)
Kitchen
15'3" x 6'3" (4.65m x 1.90m)
Lobby / Utility
2'11" x 5'10" (0.90m x 1.78m)
Bathroom
6'11" x 6'0" (2.10m x 1.83m)
Landing
0.81m x 3.45m PLUS 5.87m x 0.84m
Bedroom 1
12'8" x 10'11" (3.86m x 3.33m)
Bedroom 2
10'2" x 12'12" (3.10m x 3.96m)
Bedroom 3
15'4" x 6'3" (4.67m x 1.90m)
Front Aspect
On street, unallocated permit parking. Permit can be obtained from the local council upon proof of residency.
Additional Information
Local Authority - Redcar And ClevelandConservation Area -NoCouncil Tax Band Band - ACouncil Tax Estimate £1,616Year Built Before 1900Flood Risk:Rivers & Seas - Very lowSurface Water - Very lowDouble Glazing ThroughoutMains Utilities - Gas Combination BoilerRestrictive Covenants - Yes
Additional Information
HMRC is a supervisory body for money laundering regulations, of which all estate agents need to be registered with. As part of this, there are multiple requirements that agents must rigorously and consistently meet to ensure they stay compliant with the regulations and protect their clients. To do this, we use an identity verification service, approved by the Government as part of the Digital Identity and Attributes Trust Framework (DIATF). This method and the process we follow to ensure compliance for your transaction come with significant time, financial and legal implications hence a portion of this is passed on. We elected for this verification process due to the speed, certainty, and accuracy it delivers. This helps us to protect all our client's interests by using the most advanced verification process to help prevent the impacts of money laundering alongside our internal manual policies and procedures while staying compliant with HMRC. The administrative charge for this process is £40 plus VAT for a sole purchaser, £65 plus VAT for two purchasers and £75 plus VAT three or more purchasers.
IMPORTANT NOTE TO POTENTIAL PURCHASERS:
We endeavour to make our particulars accurate and reliable, however, they do not constitute or form part of an offer or any contract and none is to be relied upon as statements of representation or fact. The services, systems and appliances listed in this specification have not been tested by us and no guarantee as to their operating ability or efficiency is given. All photographs and measurements have been taken as a guide only and are not precise. Floor plans where included are not to scale and accuracy is not guaranteed. If you require clarification or further information on any points, please contact us, especially if you are travelling some distance to view. Fixtures and fittings other than those mentioned are to be agreed with the seller.
Bennison Street, Guisborough, North Yorkshire, TS14
Additional Information
-
Property refGUI250418
-
TenureFreehold
-
Council TaxA
-
Local authorityRedcar and Cleveland Borough Council
Similar properties for sale by Reeds Rains Guisborough
On street, unallocated permit parking. Permit can be obtained from the local council upon proof of residency.
The pin shows the exact address of the property
Energy Efficiency Rating
Very energy efficient - lower running costs
Not energy efficient - higher running costs
Current
N/APotential
N/ACO2 Rating
Very energy efficient - lower running costs
Not energy efficient - higher running costs
