This calculator provides a guide to the amount of residential stamp duty you may pay and does not guarantee this will be the actual cost. This calculation is based on the Stamp Duty Land Tax Rates for residential properties purchased from 23rd September 2022 and second homes from 31st October 2024. For more information on Stamp Duty Land Tax, click here.
4 bedroom Mid Terrace House for sale, Church Road, Manchester, Greater Manchester, M22
Features and Description
- BEING SOLD DUE TO WORK RELOCATION
- For Sale by Modern Auction – T & C’s apply
- Subject to Reserve Price
- Freehold
- Great Investment
- Enclosed Rear Courtyard
- Parking
Are you looking for the perfect mix of old and new, if so look no further! Being sold due to work location - This double fronted semi detached home is located in the converted Church Inn and boasts features such as a triple height open void from the ground to the third floor with large arched windows. The property is within a prime position close to the beautiful River Mersey offering an alternative route to Didsbury Village. EPC GRADE= B
Amazing Family Home
Tucked away in one of South Manchester’s most up-and-coming hotspots, this beautifully presented home spans three storeys and offers a unique blend of period character and sleek, modern design. With a striking Victorian-style exterior and a highly contemporary interior, it’s the perfect match for families who love the charm of the old with the ease of the new.Whether you’re drawn to the vibrant community, scenic riverside walks, or Northenden’s increasingly popular town centre packed with independent cafés and local gems — this is more than just a place to live; it’s a lifestyle. And with property values on the rise, it’s a smart move for both living and investing.
In Brief
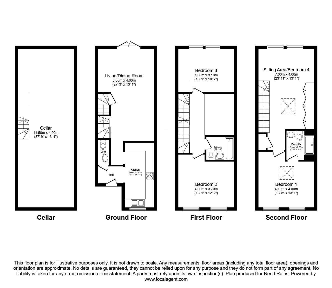
To the ground floor, you’ll find an impressive open-plan living and dining area, a high-spec kitchen and convenient downstairs WC. The first floor hosts two generous double bedrooms and a stylish family bathroom, while the top floor delivers a standout master suite with its own bathroom and a versatile dressing room or fourth bedroom. Outside, there’s off-road parking and a private rear garden, perfect for entertaining or unwinding.
Entrance Hall
Inviting entrance with door to the front elevation, hatch access to cellar storage, and ceiling spot lights. Bespoke shelving and storage.
Downstairs WC
Fitted with a modern WC and wash hand basin, tiled flooring.
Living / Dining Room
8.3mx4m
A beautifully bright space with great functionality, two radiators, and sleek patio doors opening onto the rear garden. Ideal for social living and family time. Finished with recessed ceiling lights, TV point, door leading to cellar.
Kitchen
4.6mx2.1m
High-end and stylish, this modern kitchen features a range of white high-gloss units topped with premium granite surfaces. Integrated appliances include a fridge freezer, washing machine, dishwasher, oven, and a four-ring induction hob with extractor hood. Finished with a one-and-a-half bowl sink, sleek spot lighting and uPVC window.
Cellar
11.5mx4m
A substantial cellar spanning the full length of the property, it also holds exciting potential for conversion into further living accommodation, subject to the relevant building regulations.
First Floor Landing
Mezzanine-style landing with ceiling spot lights and integrated smoke alarm.
Bedroom 2
4mX3.7m
A cleverly designed split-level space offering style and light, with windows and a central heating radiator. A generous double room with plenty of flexibility for furniture.
Bedroom 3
4mX3.1m
Another well-proportioned double bedroom with window and radiator fitted.
Bathroom
Contemporary family bathroom comprising a panelled bath with overhead shower, WC, wash basin, chrome towel rail, tiled flooring and splashbacks, shaver point, and a feature mirror.
Second Floor
Leading up to the central dressing area with fitted storage in turn leads in to bedroom four and the master suite.
Master Bedroom
4.1mx4m
A true sanctuary, complete with striking arched windows and access to En-suite.
En-Suite
Stylishly finished with a walk-in shower and glass screen, splashbacks, modern WC and wash basin. Chrome heated towel rail, tiled flooring and walls, ceiling spot lights, and shaver point.
Bedroom Four / Sitting Area
7.3mx4m
Currently used by the children, this semi open-plan room flows naturally from the main second-floor landing, which itself has been cleverly styled as a relaxed sitting area and shared dressing space. Serving both second-floor bedrooms, it offers a wonderfully unconventional yet highly functional layout — ideal for families seeking flexibility. Whether used as a fourth bedroom, study zone, playroom, or snug, this space adapts effortlessly to suit a variety of needs and lifestyles.
Externally
To the rear is private off-road parking. The enclosed rear court yard garden has been thoughtfully landscaped with a raised decked area is perfect for alfresco dining or relaxing in the sun. Surrounded by timber fencing for privacy.
Tenure
Leasehold-Term : 999 years from and including 1 January 2015
Agent Note
To be able to purchase a property in the United Kingdom all agents have a legal requirement to conduct Identity checks on all customers involved in the transaction to fulfil their obligations under Anti Money Laundering regulations. We outsource this check to a third party and a charge will apply. Ask the branch for further details.
Auctioneers Comments
This property is for sale by the Modern Method of Auction. Should you view, offer or bid on the property, your information will be shared with the Auctioneer, iamsold Limited. This method of auction requires both parties to complete the transaction within 56 days of the draft contract for sale being received by the buyers solicitor. This additional time allows buyers to proceed with mortgage finance (subject to lending criteria, affordability and survey). The buyer is required to sign a reservation agreement and make payment of a non-refundable Reservation Fee. This being 4.5% of the purchase price including VAT, subject to a minimum of £6,000.00 including VAT. The Reservation Fee is paid in addition to purchase price and will be considered as part of the chargeable consideration for the property in the calculation for stamp duty liability. Buyers will be required to go through an identification verification process with iamsold and provide proof of how the purchase would be funded. This property has a Buyer Information Pack which is a collection of documents in relation to the property. The documents may not tell you everything you need to know about the property, so you are required to complete your own due diligence before bidding. A sample copy of the Reservation Agreement and terms and conditions are also contained within this pack. The buyer will also make payment of £300 including VAT towards the preparation cost of the pack, where it has been provided by iamsold. The property is subject to an undisclosed Reserve Price with both the Reserve Price and Starting Bid being subject to change. Referral Arrangements The Partner Agent and Auctioneer may recommend the services of third parties to you. Whilst these services are recommended as it is believed they will be of benefit; you are under no obligation to use any of these services and you should always consider your options before services are accepted. Where services are accepted the Auctioneer or Partner Agent may receive payment for the recommendation and you will be informed of any referral arrangement and payment prior to any services being taken by you.
IMPORTANT NOTE TO POTENTIAL PURCHASERS:
We endeavour to make our particulars accurate and reliable, however, they do not constitute or form part of an offer or any contract and none is to be relied upon as statements of representation or fact. The services, systems and appliances listed in this specification have not been tested by us and no guarantee as to their operating ability or efficiency is given. All photographs and measurements have been taken as a guide only and are not precise. Floor plans where included are not to scale and accuracy is not guaranteed. If you require clarification or further information on any points, please contact us, especially if you are travelling some distance to view. Fixtures and fittings other than those mentioned are to be agreed with the seller.
Church Road, Manchester, Greater Manchester, M22

Additional Information
-
Property refDID250395
-
EPCB
-
TenureLeasehold
-
Lease length988 years
-
Council TaxD
-
Ground RentContact the branch
-
Ground Rent ReviewContact the branch
-
Service ChargeContact the branch

Similar properties for sale by Reeds Rains Didsbury




















The pin shows the exact address of the property
Energy Efficiency Rating
Very energy efficient - lower running costs
Not energy efficient - higher running costs
Current
82Potential
90CO2 Rating
Very energy efficient - lower running costs
Not energy efficient - higher running costs