This calculator provides a guide to the amount of residential stamp duty you may pay and does not guarantee this will be the actual cost. This calculation is based on the Stamp Duty Land Tax Rates for residential properties purchased from 23rd September 2022 and second homes from 31st October 2024. For more information on Stamp Duty Land Tax, click here.
2 bedroom Mid Terrace House for sale, Dunbar Road, Southsea, Hampshire, PO4
Features and Description
- Two Double Bedrooms
- Two Separate Reception Rooms
- Generous Garden
- Yards From Bransbury Park
- You Might Need A Few Quid
Being sold via Secure Sale online bidding. Terms & Conditions apply. Starting Bid £135,000
You want potential! You cannot handle the potential! Yes she may need some 'doing up' but this offers so much for the keen first time buyer or investor! In summary the home offers a sitting room, separate dining room, kitchen, ground floor bathroom and two generous bedrooms. It also offers a genuinely decent size garden certainly larger than the average. The location is also impressive being in a quiet side road yet within walking distance of good schools, excellent local shops, Bransbury Park (for the dog walkers amongst you) and even the beach close by! As mentioned the home does require modernisation but realistically priced to sell it offers a cracking opportunity to create your own dream home.
Auctioneers Additional Comments
Pattinson Auction are working in Partnership with the marketing agent on this online auction sale and are referred to below as 'The Auctioneer'.
This auction lot is being sold either under conditional (Modern) or unconditional (Traditional) auction terms and overseen by the auctioneer in partnership with the marketing agent. The property is available to be viewed strictly by appointment only via the Marketing Agent or The Auctioneer. Bids can be made via the Marketing Agents or via The Auctioneers website.
Please be aware that any enquiry, bid or viewing of the subject property will require your details being shared between both any marketing agent and The Auctioneer in order that all matters can be dealt with effectively.
The property is being sold via a transparent online auction.
In order to submit a bid upon any property being marketed by The Auctioneer, all bidders/buyers will be required to adhere to a verification of identity process in accordance with Anti Money Laundering procedures. Bids can be submitted at any time and from anywhere.
Our verification process is in place to ensure that AML procedure are carried out in accordance with the law.
The advertised price is commonly referred to as a ‘Starting Bid’ or ‘Guide Price’ and is accompanied by a ‘Reserve Price’. The ‘Reserve Price’ is confidential to the seller and the auctioneer and will typically be within a range above or below 10% of the ‘Guide Price’ / ‘Starting Bid’.
These prices are subject to change.
An auction can be closed at any time with the auctioneer permitting for the property (the lot) to be sold prior to the end of the auction.
A Legal Pack associated with this particular property is available to view upon request and contains details relevant to the legal documentation enabling all interested parties to make an informed decision prior to bidding. The Legal Pack will also outline the buyers’ obligations and sellers’ commitments. It is strongly advised that you seek the counsel of a solicitor prior to proceeding with any property and/or Land Title purchase. Auctioneers Additional Comments
In order to secure the property and ensure commitment from the seller, upon exchange of contracts the successful bidder will be expected to pay a non-refundable deposit equivalent to 5% of the purchase price of the property. The deposit will be a contribution to the purchase price. A non-refundable reservation fee up to 6% inc VAT (subject to a minimum which could be up to £7,200 inc VAT) is also required to be paid upon agreement of sale. The Reservation Fee is in addition to the agreed purchase price and consideration should be made by the purchaser in relation to any Stamp Duty Land Tax liability associated with overall purchase costs. Both the Marketing Agent and The Auctioneer may believe necessary or beneficial to the customer to pass their details to third party service suppliers, from which a referral fee may be obtained. There is no requirement or indeed obligation to use these recommended suppliers or services.
Full Description
You want potential! You cannot handle the potential! Yes she may need some 'doing up' but this offers so much for the keen first time buyer or investor! In summary the home offers a sitting room, separate dining room, kitchen, ground floor bathroom and two generous bedrooms. It also offers a genuinely decent size garden certainly larger than the average. The location is also impressive being in a quiet side road yet within walking distance of good schools, excellent local shops, Bransbury Park (for the dog walkers amongst you) and even the beach close by! As mentioned the home does require modernisation but realistically priced to sell it offers a cracking opportunity to create your own dream home.
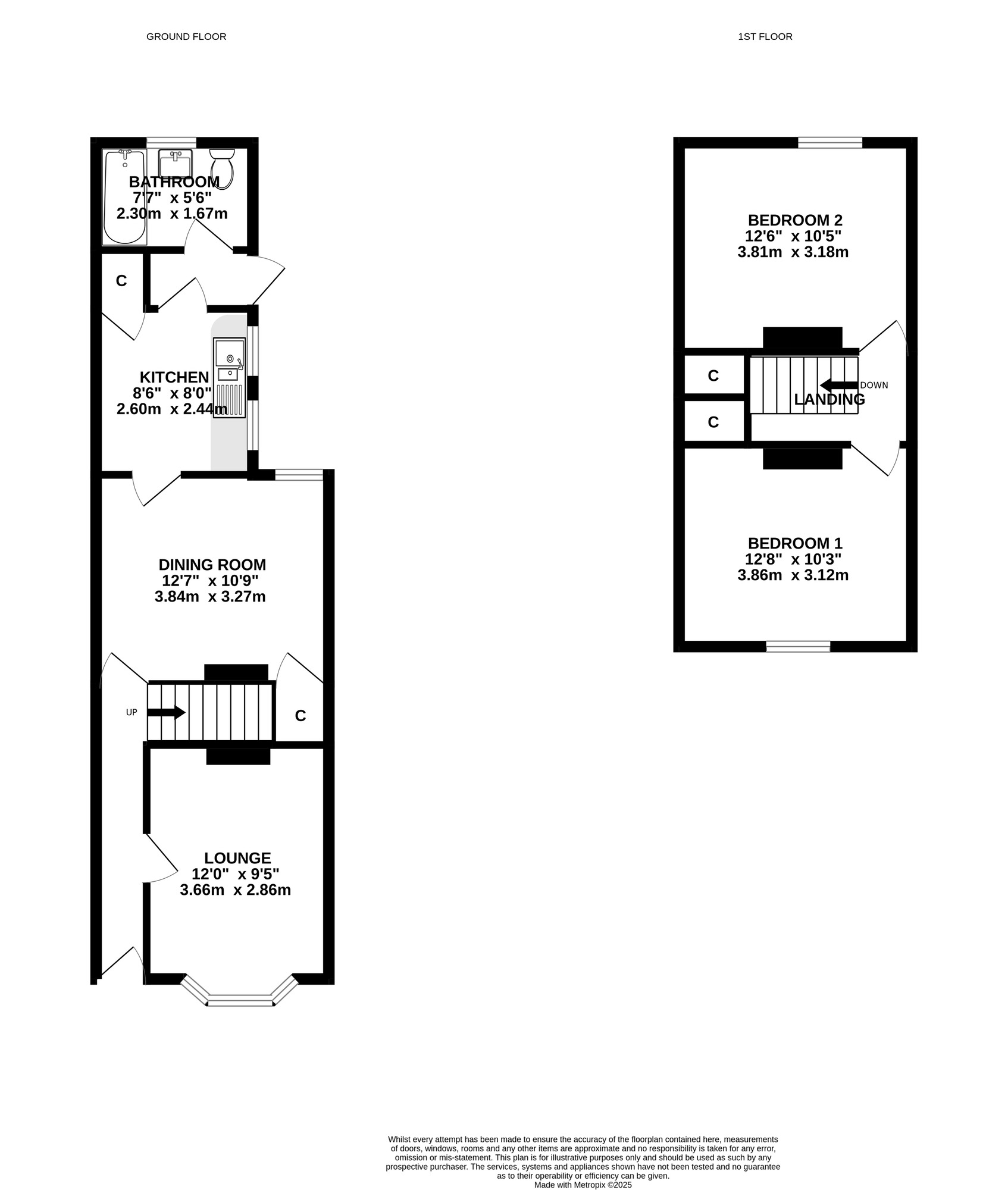
Entrance Hall
Stairs to first floor.
Sitting Room
With bay window to front.
Dining Room
Window to rear and under stairs cupboard.
Kitchen
I mean I have lived with worse! You could certainly make do but will need refitting in the near future.
Lobby
Door to garden.
Bathroom
Again perfectly useable but would benefit from a new suite. Window to rear.
First Floor Landing
Doors off.
Bedroom 1
Window to front, wardrobe and fireplace.
Bedroom 2
Fireplace, window to rear and wardrobe.
Rear Garden
Certainly a decent size.
Directions
For your satnav use PO4 8EY.
IMPORTANT NOTE TO POTENTIAL PURCHASERS:
We endeavour to make our particulars accurate and reliable, however, they do not constitute or form part of an offer or any contract and none is to be relied upon as statements of representation or fact. The services, systems and appliances listed in this specification have not been tested by us and no guarantee as to their operating ability or efficiency is given. All photographs and measurements have been taken as a guide only and are not precise. Floor plans where included are not to scale and accuracy is not guaranteed. If you require clarification or further information on any points, please contact us, especially if you are travelling some distance to view. Fixtures and fittings other than those mentioned are to be agreed with the seller.
Dunbar Road, Southsea, Hampshire, PO4
Additional Information
-
Property refSOU250067
-
EPCE
-
TenureFreehold
-
Council TaxB
Similar properties for sale by Reeds Rains Southsea
The pin shows the exact address of the property
Energy Efficiency Rating
Very energy efficient - lower running costs
Not energy efficient - higher running costs
Current
45Potential
79CO2 Rating
Very energy efficient - lower running costs
Not energy efficient - higher running costs
