This calculator provides a guide to the amount of residential stamp duty you may pay and does not guarantee this will be the actual cost. This calculation is based on the Stamp Duty Land Tax Rates for residential properties purchased from 23rd September 2022 and second homes from 31st October 2024. For more information on Stamp Duty Land Tax, click here.
4 bedroom Mid Terrace House for sale, Goodramgate, York, North Yorkshire, YO1
Features and Description
- GRADE II LISTED BUILDING
- NO ONWARD CHAIN
- CURRENTLY LET AS A HMO
- CENTRAL YORK LOCATION
- DIRECTLY BEHIND YORK MINSTERS
- FANTASTIC OPPORTUNITY
- VIEWING ADVISED
Main Description
An rare and fantastic opportunity to purchase this impressive historical residence nestled within the Historic Walls of York, boasting rear views of the stunning York Minster. The property also currently has a HMO licence and is beeing let out on a room by room basis. At the current rent vs the asking price this would bring a yield of 5%. Situated in the ambiance of Goodramgate, this distinguished property is a true gem. Internal inspection is highly recommended to fully appreciate what this property has to offer.
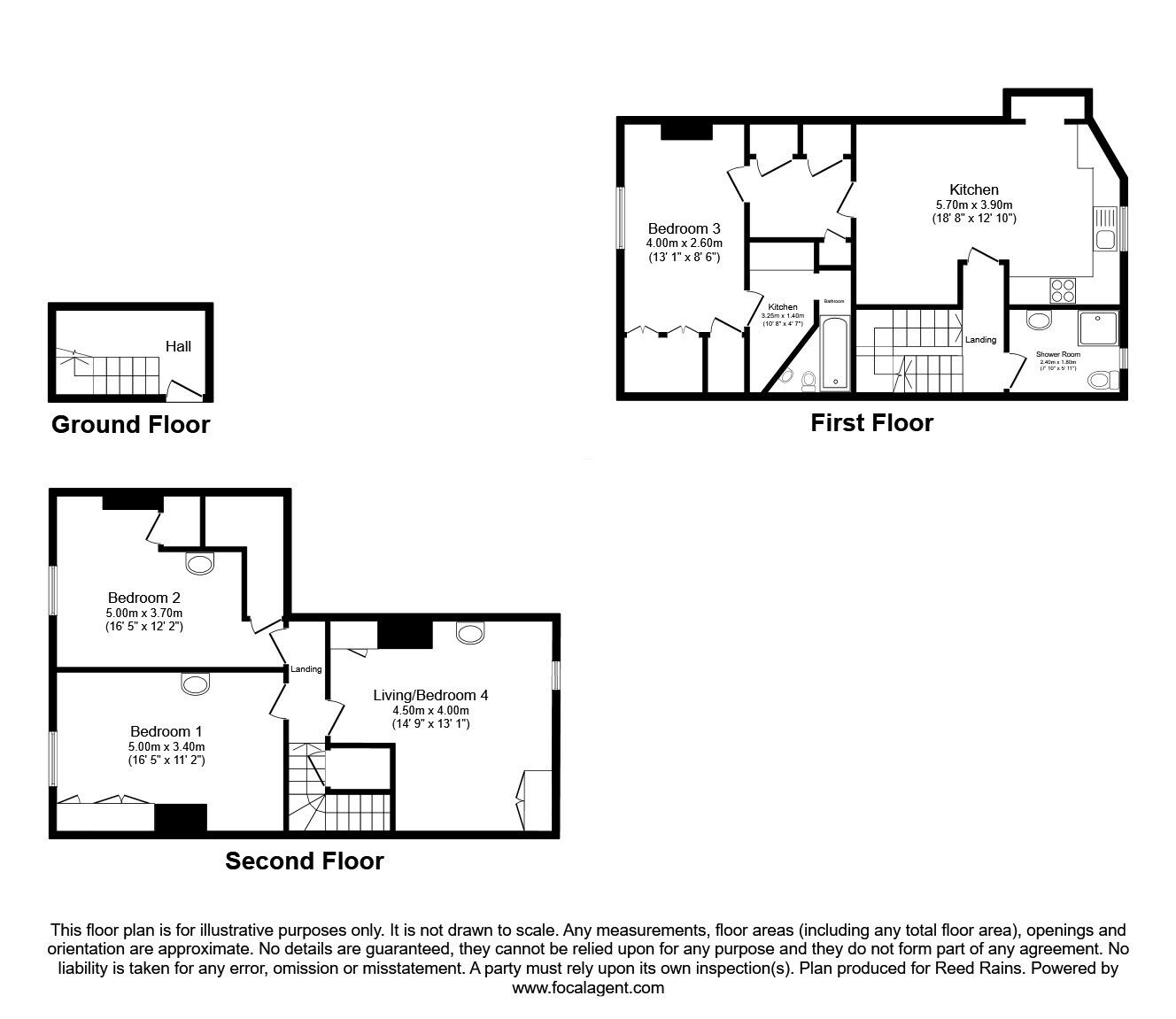
Kitchen 18'8" x 12'10" (5.7m x 3.9m)
Open plane kitchen dining area fitted with an array of wall and base units, preparation works surfaces, breakfast bar, dining area, window to the rear with views of York Minster.
Shower Room 7'10" x 5'11" (2.4m x 1.8m)
Fitted with a three piece suite comprising: Walk in shower cubicle, wash hand basin, low level w/c and window to the rear aspect.
Bedroom Three 13'1" x 8'6" (4m x 2.6m)
Window to the front aspect, built in cupboards, access through to private kitchen and bathroom area.
Second Floor
Access to:
Bedroom One 16'5" x 11'2" (5m x 3.4m)
Window to the front aspect and built in wardrobes.
Bedroom Two 16'5" x 12'2" (5m x 3.7m)
Window to the front aspect and built in wardrobes.
Bedroom Three 14'9" x 13'1" (4.5m x 4m)
Window to the rear aspect and built in wardrobe.
Location
Just steps away from the York Minster and the vibrancy and vitality of the city centre, with its array of independent shops, national brands, restaurants, coffee shops and amenities. Notably, there is York Theatre Royal, the Art Gallery, Bettys Tea Rooms and the famous Shambles all within the city centre. The Museum Gardens lies to the west, set in the magnificent surroundings of the ruins of St Mary’s Abbey. Along with the award winning The Star Inn the City by Andrew Pern and the Michelin-starred restaurant, Roots, by Tommy Banks. In addition, there is Skosh by Neil Bentinck which also boasts a Michelin-star, positioned on popular Micklegate. Located beside the River Ouse is York City Rowing Club, York Pilates Space and The Perky Peacock, a cosy café in a medieval tower. Further along is Rowntree Park with café, playground, tennis and basketball courts. York railway station is about half a mile way and offers regular services to major cities including Manchester, Edinburgh and London with some journeys taking less than two hours to Kings Cross. The A64 ring road is about three miles from the city centre giving access to Leeds, the A1(M) and the wider motorway.
Agent Notes
To be able to purchase a property in the United Kingdom all agents have a legal requirement to conduct Identity checks on all customers involved in the transaction to fulfil their obligations under Anti Money Laundering regulations. We outsource this check to a third party and a charge will apply. Ask the branch for further details.
Location
Just steps away from the York Minster and the vibrancy and vitality of the city centre, with its array of independent shops, national brands, restaurants, coffee shops and amenities. Notably, there is York Theatre Royal, the Art Gallery, Bettys Tea Rooms and the famous Shambles all within the city centre.<br /> <br /> The Museum Gardens lies to the west, set in the magnificent surroundings of the ruins of St Mary’s Abbey. Along with the award winning The Star Inn the City by Andrew Pern and the Michelin-starred restaurant, Roots, by Tommy Banks. In addition, there is Skosh by Neil Bentinck which also boasts a Michelin-star, positioned on popular Micklegate.<br /> <br /> Located beside the River Ouse is York City Rowing Club, York Pilates Space and The Perky Peacock, a cosy café in a medieval tower. Further along is Rowntree Park with café, playground, tennis and basketball courts.<br /> <br /> York railway station is about half a mile way and offers regular services to major cities including Manchester, Edinburgh and London with some journeys taking less than two hours to Kings Cross. The A64 ring road is about three miles from the city centre giving access to Leeds, the A1(M) and the wider motorway.
Kitchen
18'8" x 12'10" (5.70m x 3.90m)
Open plane kitchen dining area fitted with an array of wall and base units, preparation works surfaces, breakfast bar, dining area, window to the rear with views of York Minster.
Shower Room
7'10" x 5'11" (2.40m x 1.80m)
Fitted with a three piece suite comprising: Walk in shower cubicle, wash hand basin, low level w/c and window to the rear aspect.
Bedroom 3
13'1" x 8'6" (4.00m x 2.60m)
Window to the front aspect, built in cupboards, access through to private kitchen and bathroom area.
Second Floor
Access to:
Bedroom 1
16'5" x 11'2" (5.00m x 3.40m)
Window to the front aspect and built in wardrobes.
Bedroom 2
16'5" x 12'2" (5.00m x 3.70m)
Window to the front aspect and built in wardrobes.
Bedroom 3
14'9" x 13'1" (4.50m x 4.00m)
Window to the rear aspect and built in wardrobe.
Agent Notes
To be able to purchase a property in the United Kingdom all agents have a legal requirement to conduct Identity checks on all customers involved in the transaction to fulfil their obligations under Anti Money Laundering regulations. We outsource this check to a third party and a charge will apply. Ask the branch for further details.
IMPORTANT NOTE TO POTENTIAL PURCHASERS:
We endeavour to make our particulars accurate and reliable, however, they do not constitute or form part of an offer or any contract and none is to be relied upon as statements of representation or fact. The services, systems and appliances listed in this specification have not been tested by us and no guarantee as to their operating ability or efficiency is given. All photographs and measurements have been taken as a guide only and are not precise. Floor plans where included are not to scale and accuracy is not guaranteed. If you require clarification or further information on any points, please contact us, especially if you are travelling some distance to view. Fixtures and fittings other than those mentioned are to be agreed with the seller.
Goodramgate, York, North Yorkshire, YO1
Additional Information
-
Property refYOR250391
-
TenureLeasehold
-
Lease length975 years
-
Council TaxB
-
Ground RentContact the branch
-
Ground Rent ReviewContact the branch
-
Service Charge£1
The pin shows the exact address of the property
Energy Efficiency Rating
Very energy efficient - lower running costs
Not energy efficient - higher running costs
Current
N/APotential
N/ACO2 Rating
Very energy efficient - lower running costs
Not energy efficient - higher running costs
