This calculator provides a guide to the amount of residential stamp duty you may pay and does not guarantee this will be the actual cost. This calculation is based on the Stamp Duty Land Tax Rates for residential properties purchased from 23rd September 2022 and second homes from 31st October 2024. For more information on Stamp Duty Land Tax, click here.
2 bedroom Mid Terrace House for sale, Kingsley Road, Southsea, Hampshire, PO4
Features and Description
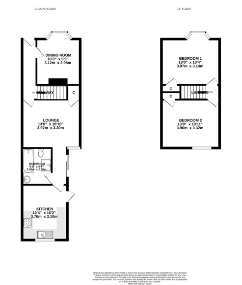
- Large two bedroom house
- Yards from Bransbury Park
- No forward chain
- Priced to sell
Set in a super popular road this two bedroom double bay house is sure to attract interest! Its large accommodation offers two separate reception rooms, a kitchen, ground floor bathroom and tow generous bedrooms. To the rear can be found an enclosed garden. It is unusual to have the double bay and this feature is appealing with its large and bright front facing bedroom. Also as mentioned the location is brilliant set only yards from Bransbury Park ideal for dog walkers with the local shops also close by. Offered for sale with no chain we recommend early viewing.
Full Description
Set in a super popular road this two bedroom double bay house is sure to attract interest! Its large accommodation offers two separate reception rooms, a kitchen, ground floor bathroom and tow generous bedrooms. To the rear can be found an enclosed garden. It is unusual to have the double bay and this feature is appealing with its large and bright front facing bedroom. Also as mentioned the location is brilliant set only yards from Bransbury Park ideal for dog walkers with the local shops also close by. Offered for sale with no chain we recommend early viewing.
Directions
For your satnav use PO4 8HL.
Agents Note
Please be aware the photos were taken prior to the current tenants occupation. As such upon viewing the property may look different. Please ask us for more information.
IMPORTANT NOTE TO POTENTIAL PURCHASERS:
We endeavour to make our particulars accurate and reliable, however, they do not constitute or form part of an offer or any contract and none is to be relied upon as statements of representation or fact. The services, systems and appliances listed in this specification have not been tested by us and no guarantee as to their operating ability or efficiency is given. All photographs and measurements have been taken as a guide only and are not precise. Floor plans where included are not to scale and accuracy is not guaranteed. If you require clarification or further information on any points, please contact us, especially if you are travelling some distance to view. Fixtures and fittings other than those mentioned are to be agreed with the seller.
Kingsley Road, Southsea, Hampshire, PO4
Additional Information
-
Property refSOU260058
-
EPCD
-
TenureFreehold
-
Council TaxB
Similar properties for sale by Reeds Rains Southsea
The pin shows the exact address of the property
Energy Efficiency Rating
Very energy efficient - lower running costs
Not energy efficient - higher running costs
Current
68Potential
85CO2 Rating
Very energy efficient - lower running costs
Not energy efficient - higher running costs
