This calculator provides a guide to the amount of residential stamp duty you may pay and does not guarantee this will be the actual cost. This calculation is based on the Stamp Duty Land Tax Rates for residential properties purchased from 23rd September 2022 and second homes from 31st October 2024. For more information on Stamp Duty Land Tax, click here.












3 bedroom Mid Terrace House for sale, Powerscourt Road, Portsmouth, Hampshire, PO2
Features and Description
- Its a massive house
- Its not that bad really!
- Huge potential
- No forward chain
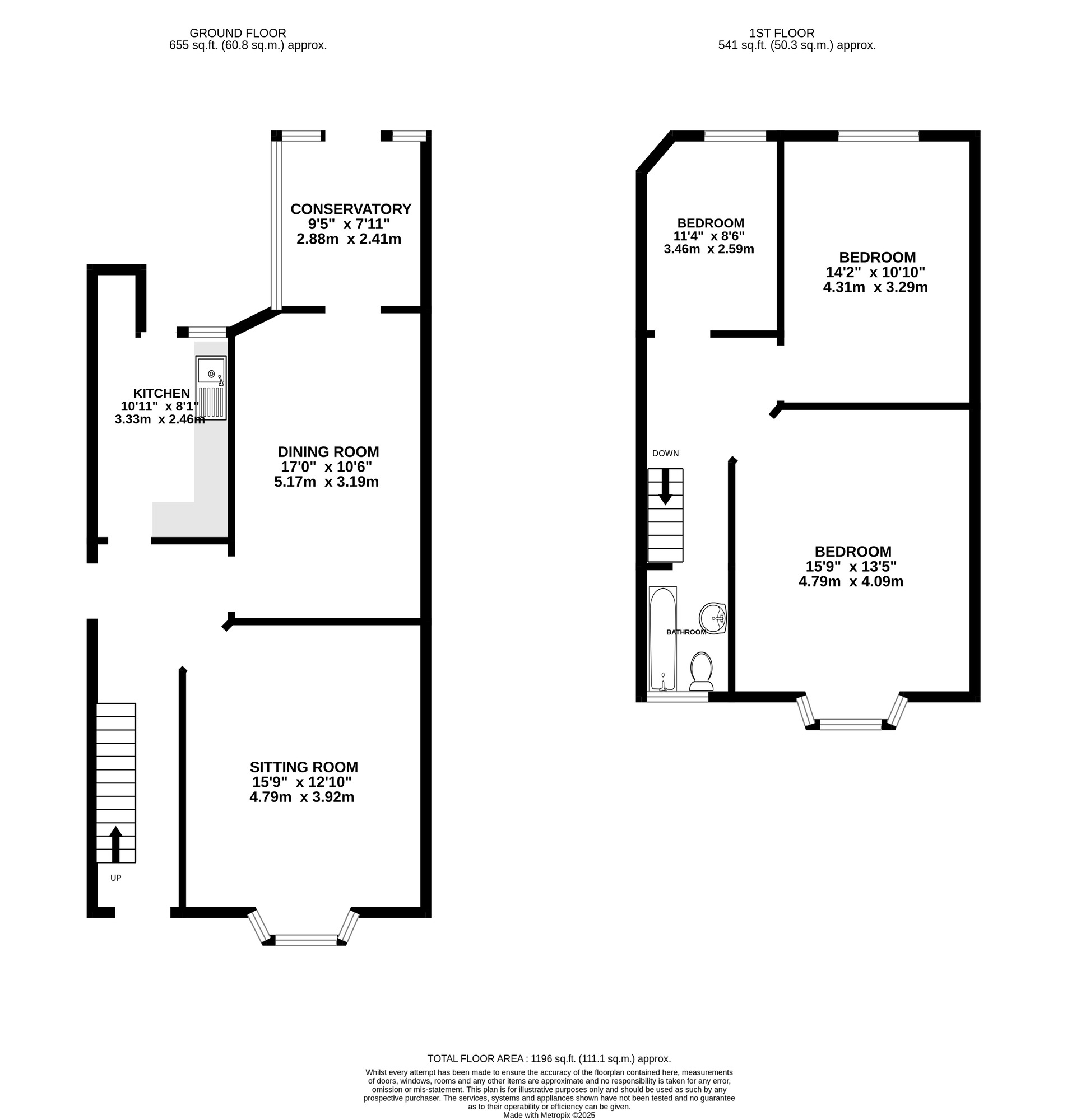
I am probably going to get sacked when the owner reads my description...but in the meantime we are running with it! Yes its a right dump, but its a large dump. And actually look a little closer and its not as bad as it may seem. There are number of replacement windows, has a modern fuse box and the roof looks good with lead flashing around the firewalls and chimney. And its big, offering a large sitting room, dining room, kitchen, conservatory, three bedrooms and an upstairs bathroom. The garden is pretty decent too. This is your chance to save Santa and bag yourself a bargain too! Offered for sale with no forward chain.
Full Description
I am probably going to get sacked when the owner reads my description...but in the meantime we are running with it! Yes its a right dump, but its a large dump. And actually look a little closer and its not as bad as it may seem. There are number of replacement windows, has a modern fuse box and the roof looks good with lead flashing around the firewalls and chimney. And its big, offering a large sitting room, dining room, kitchen, conservatory, three bedrooms and an upstairs bathroom. The garden is pretty decent too. This is your chance to save Santa and bag yourself a bargain too! Offered for sale with no forward chain.
Directions
For your satnav use PO2 7JJ.
IMPORTANT NOTE TO POTENTIAL PURCHASERS:
We endeavour to make our particulars accurate and reliable, however, they do not constitute or form part of an offer or any contract and none is to be relied upon as statements of representation or fact. The services, systems and appliances listed in this specification have not been tested by us and no guarantee as to their operating ability or efficiency is given. All photographs and measurements have been taken as a guide only and are not precise. Floor plans where included are not to scale and accuracy is not guaranteed. If you require clarification or further information on any points, please contact us, especially if you are travelling some distance to view. Fixtures and fittings other than those mentioned are to be agreed with the seller.
Powerscourt Road, Portsmouth, Hampshire, PO2

Additional Information
-
Property refSOU250064
-
EPCD
-
TenureFreehold
-
Council TaxC

Similar properties for sale by Reeds Rains Southsea












The pin shows the exact address of the property
Energy Efficiency Rating
Very energy efficient - lower running costs
Not energy efficient - higher running costs
Current
58Potential
84CO2 Rating
Very energy efficient - lower running costs
Not energy efficient - higher running costs