2 bedroom Mid Terrace House to rent, Brixton Close, Hull, East Yorkshire, HU8
Available Unfurnished, from 31/01/2026
Features and Description
- TWO BEDROOM HOUSE
- MODERN FINISH THROUGHOUT
- RENT: £725PCM
- SECURITY DEPOSIT: £836.53
- HOLDING DEPOSIT: £167.30
- EPC GRADE: C
- COUNCIL TAX BAND: A
Tucked away in a quiet position overlooking open green space, this smartly presented two double bedroom terraced home offers comfortable, low-maintenance living in the ever-popular HU8 area. Ideal for professionals, couples, or small families, the property provides a great balance of space, convenience, and setting.
Perfectly located for everyday needs, the home is within easy reach of local shops, regular public transport links, and well-regarded schools including Neasden Primary and Malet Lambert School. The surrounding area is well established and friendly, making it a practical and appealing place to call home.
The property benefits from gas central heating and double glazing throughout, along with a strong energy performance rating of ‘C’, helping to keep running costs efficient.
Internally, the accommodation is bright, welcoming, and ready for immediate occupation. The entrance hall leads into a comfortable sitting room, offering a pleasant space to relax or entertain. To the rear, the breakfast kitchen is fitted with modern units and provides ample room for dining, making it a functional and well-designed space for everyday living.
EPC Grade- C
Council Tax Band- A
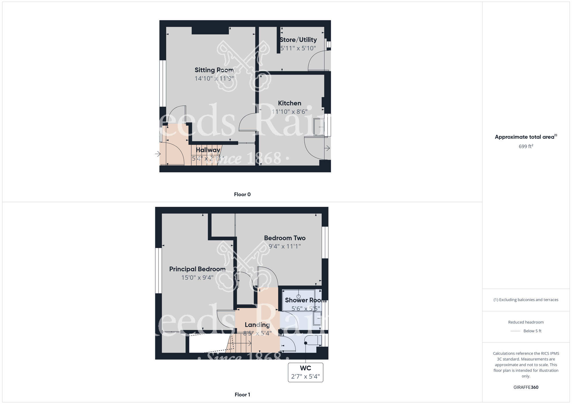
Entrance Hall
Step through the timber part-glazed entrance door, framed by matching side panels that flood the space with natural light. though compact, this bright hallway feels instantly inviting and sets the tone for the home beyond. The staircase rises neatly to the first floor, while a part-glazed internal door leads through to the sitting room, creating a welcoming flow from the moment you arrive.
Sitting Room
A light-filled space, the sitting room enjoys a front-facing window that frames the outlook and allows sunshine to pour in throughout the day. Ceiling coving. Useful built-in under-stairs cupboard provides practical storage for everyday essentials, and a part-glazed door leads effortlessly through to the kitchen at the rear.
Breakfast Kitchen
At the rear of the home, the kitchen offers views over the garden and plenty of natural light. Fitted with a range of base and wall cabinets, laminate worktops, and tiled splashbacks, it’s a practical, well-planned space featuring a stainless steel sink and durable vinyl flooring. the adjoining store offers exciting potential.
Landing
A straightforward space that connects all the first-floor rooms. Neutral in tone and simple in layout, it’s a blank canvas that makes the upstairs feel open and easy to navigate.
Principal Bedroom
A generous double bedroom positioned to the front of the home, with a wide window drawing in plenty of natural light. the built-in storage cupboard keeps things practical. Ceiling coving and a radiator complete the space.
Bedroom 2
Overlooking the rear garden, this second double bedroom offers both space and versatility. Featuring two built-in wardrobes, it provides excellent storage and could serve equally well as a guest room, child’s room, or a peaceful home office. Laminate flooring enhance its modern, low-maintenance appeal.
Shower Room
Designed for everyday ease, the shower room features a modern two-piece suite in white, comprising a generous walk-in shower enclosure and wash basin. extensively tiled and naturally lit by a rear window, it’s a clean, functional space with scope to add your own style.
Seperate WC
Positioned next to the shower room, fitted with a low-flush suite and wall tiling.
Front Forecourt
Nestled in the corner of a pedestrianised cul-de-sac overlooking open green space. The small forecourt-style front garden adds to the kerb appeal, while a shared pathway continues along the side and rear of the home, creating an attractive approach.
Rear Garden
The rear garden is enclosed, and designed for easy maintenance. featuring a spacious paved terrace for outdoor dining or relaxing, and an area of astro turf that keeps the space neat year-round.
Store / Utility
A versatile outbuilding that has served as a utility and general store, offering excellent flexibility for future use.
ADDITIONAL INFORMATION
- Local Authority:- Kingston Upon Hull-Council Tax Band:- A-Council Tax Estimate:- £1,455-Property Type:- House - Property Construction:- Brick Built- Heating:- Gas- Electricity Supply:- Mains- Water Supply:- Mains- Sewerage:- Yorkshire Water- Conservation Area:- No- Flood Risk:- Very Low- Coastal Erosion Risk:- Very Low- Rivers & Seas:- Very Low- Surface Water:- Very Low- Accessibility/Adaptations:- None- Mobile Coverage:- Very Good- O2 - Very Good- EE - Good- Three - Very Good- Vodafone - Very Good- Broadband (estimated speeds)- Ultrafast 10000mbps
IMPORTANT NOTE TO POTENTIAL RENTERS:
We endeavour to make our particulars accurate and reliable, however, they do not constitute or form part of an offer or any contract and none is to be relied upon as statements of representation or fact. The services, systems and appliances listed in this specification have not been tested by us and no guarantee as to their operating ability or efficiency is given. All photographs and measurements have been taken as a guide only and are not precise. Floor plans where included are not to scale and accuracy is not guaranteed. If you require clarification or further information on any points, please contact us, especially if you are travelling some distance to view.
All properties are available for a minimum of six months, with the exception of short term accommodation. A security deposit of at least one month’s rent is required. Rent is to be paid one month in advance. It is the tenant’s responsibility to insure any personal possessions. Payment of all utilities including water rates or metered supply and Council Tax is the responsibility of the tenant in every case.
Client Money Protection is provided by Propertymark. Redress through The Property Ombudsman Scheme.
Brixton Close, Hull, East Yorkshire, HU8
The pin shows the exact address of the property
Energy Efficiency Rating
Very energy efficient - lower running costs
Not energy efficient - higher running costs
Current
N/APotential
N/ACO2 Rating
Very energy efficient - lower running costs
Not energy efficient - higher running costs
