2 bedroom Mid Terrace House to rent, Lionel Street, Burnley, Lancashire, BB12
Features and Description
- Close To Local Schools
- Easy Reach Of All Amenities
- Two Reception Rooms
- Epc Register D
*** VIEWING ADVISED *** FANTASTIC two bedroom mid terraced property, close to all local amenities, schools and transport links. Benefits from two reception rooms, two double bedrooms and a family bathroom - the perfect home for any small family or couple!
EPC - Band D
Council Tax - Band A
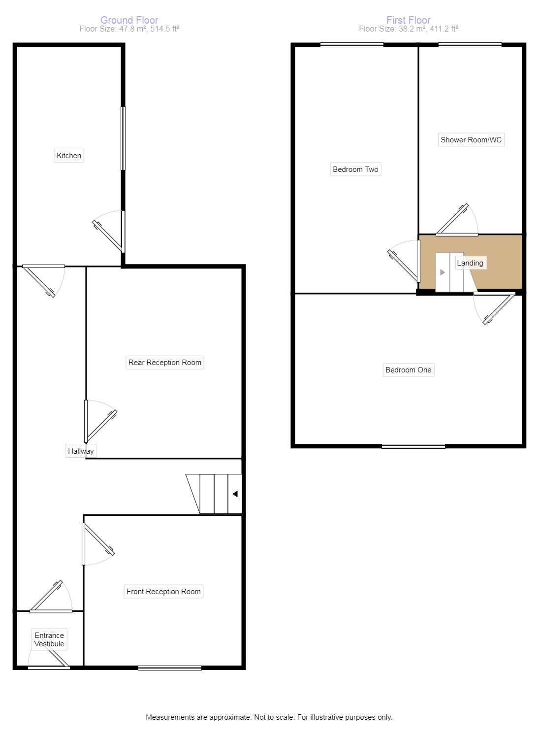
Hallway
0 x 0
Stairs to first floor, access to both reception rooms.
Lounge
3.23 x 3.07
Upvc double glazed window to the front aspect, gas central heating radiator, laminate flooring, meter cupboards.
Dining Room
3.18 x 3.89
Upvc double glazed window to the rear aspect, gas central heating radiator, laminate flooring, under stairs storage cupboard.
Kitchen
2.16 x 4.5
Range of wall and base units with contrasting work surfaces, integrated electric oven and gas hob with extractor hood, space for washing machine and fridge freezer. Upvc double glazed window to the rear aspect.
Bedroom 1
4.37 x 3.1
Upvc double glazed window to the front aspect, gas central heating radiator, storage cupboard.
Bedroom 2
2.64 x 3.96
Upvc double glazed window to the rear aspect, gas central heating radiator.
Shower Room / WC
0 x 0
Three piece suite comprising of; walk in shower cubicle, pedestal wash hand basin, WC, tiled walls, chrome heated towel rail.
External
0 x 0
Garden forecourt leading to front entrance and enclosed gated yard to rear.
IMPORTANT NOTE TO POTENTIAL RENTERS:
We endeavour to make our particulars accurate and reliable, however, they do not constitute or form part of an offer or any contract and none is to be relied upon as statements of representation or fact. The services, systems and appliances listed in this specification have not been tested by us and no guarantee as to their operating ability or efficiency is given. All photographs and measurements have been taken as a guide only and are not precise. Floor plans where included are not to scale and accuracy is not guaranteed. If you require clarification or further information on any points, please contact us, especially if you are travelling some distance to view.
All properties are available for a minimum of six months, with the exception of short term accommodation. A security deposit of at least one month’s rent is required. Rent is to be paid one month in advance. It is the tenant’s responsibility to insure any personal possessions. Payment of all utilities including water rates or metered supply and Council Tax is the responsibility of the tenant in every case.
Client Money Protection is provided by Propertymark. Redress through The Property Ombudsman Scheme.
Lionel Street, Burnley, Lancashire, BB12
Upvc double glazed window to the front aspect, gas central heating radiator, laminate flooring, meter cupboards.
Upvc double glazed window to the rear aspect, gas central heating radiator, laminate flooring, under stairs storage cupboard.
Range of wall and base units with contrasting work surfaces, integrated electric oven and gas hob with extractor hood, space for washing machine and fridge freezer. Upvc double glazed window to the rear aspect.
Upvc double glazed window to the front aspect, gas central heating radiator, storage cupboard.
Upvc double glazed window to the rear aspect, gas central heating radiator.
Three piece suite comprising of; walk in shower cubicle, pedestal wash hand basin, WC, tiled walls, chrome heated towel rail.
Garden forecourt leading to front entrance and enclosed gated yard to rear.
The pin shows the exact address of the property
Energy Efficiency Rating
Very energy efficient - lower running costs
Not energy efficient - higher running costs
Current
56Potential
86CO2 Rating
Very energy efficient - lower running costs
Not energy efficient - higher running costs
