3 bedroom Mid Terrace Property to rent, St. Anns Road, Southsea, Hampshire, PO4
Available Unfurnished, from 15/11/2025
Features and Description
- Key features
- 3 bedroom home + Garden Office
- Upstairs bathroom
- Great location
- Southern facing rear garden
- Newly decorated and new carpets throughout
This charming three bedroom terraced house in a fabulous location has been recently been renovated throughout.
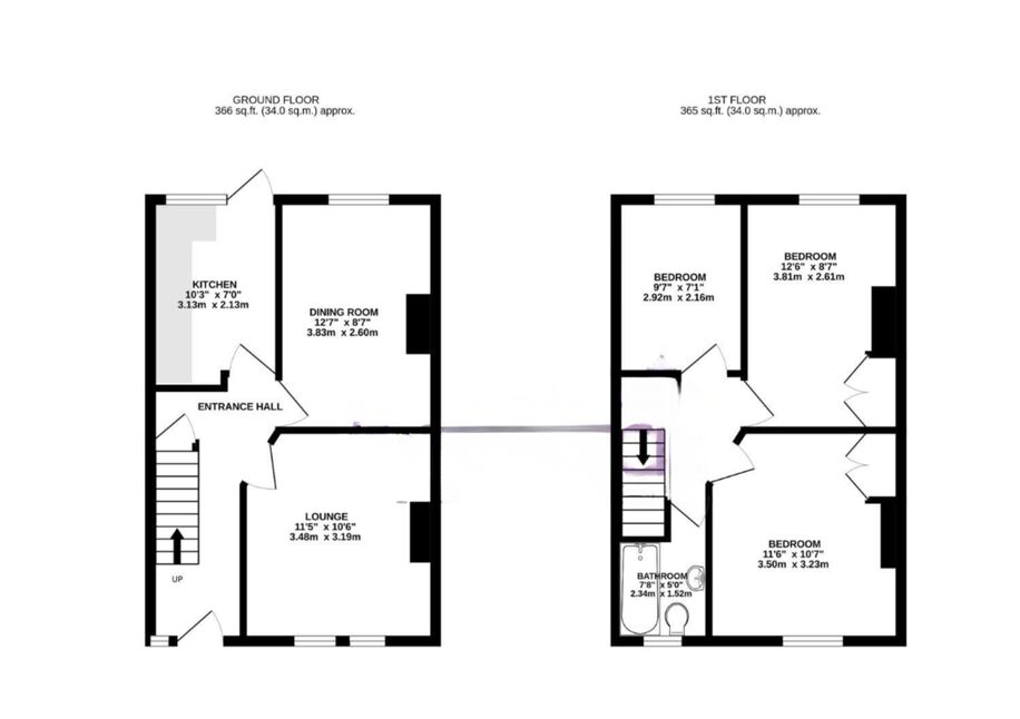
As you enter the property into the spacious hallway, you'll find two receptions rooms offering a lounge and dining area as you wish as both are good size rooms.
The kitchen can be found at the rear of the property offering access into a beautiful south facing garden with a large garden office at the end of the garden.
On the first floor there are 2 double and 1single bedroom. The modern bathroom can also be found upstairs.
The location is superb in a quiet road just moments away from Albert Road / Highland Road and everything it has to offer including bars, cafes and restaurants and the seafront is a short stroll away.
Lounge
3.48 x 3.19
Dining Room
3.83 x 2.60
Kitchen
3.13 x 2.13
Bedroom
3.50 x 3.23
Bedroom
3.81 x 2.61
Bedroom
2.92 x 2.16
Bathroom
2.34 x 1.52
IMPORTANT NOTE TO POTENTIAL RENTERS:
We endeavour to make our particulars accurate and reliable, however, they do not constitute or form part of an offer or any contract and none is to be relied upon as statements of representation or fact. The services, systems and appliances listed in this specification have not been tested by us and no guarantee as to their operating ability or efficiency is given. All photographs and measurements have been taken as a guide only and are not precise. Floor plans where included are not to scale and accuracy is not guaranteed. If you require clarification or further information on any points, please contact us, especially if you are travelling some distance to view.
All properties are available for a minimum of six months, with the exception of short term accommodation. A security deposit of at least one month’s rent is required. Rent is to be paid one month in advance. It is the tenant’s responsibility to insure any personal possessions. Payment of all utilities including water rates or metered supply and Council Tax is the responsibility of the tenant in every case.
Client Money Protection is provided by Propertymark. Redress through The Property Ombudsman Scheme.
St. Anns Road, Southsea, Hampshire, PO4
The pin shows the exact address of the property
Energy Efficiency Rating
Very energy efficient - lower running costs
Not energy efficient - higher running costs
Current
62Potential
87CO2 Rating
Very energy efficient - lower running costs
Not energy efficient - higher running costs
