This calculator provides a guide to the amount of residential stamp duty you may pay and does not guarantee this will be the actual cost. This calculation is based on the Stamp Duty Land Tax Rates for residential properties purchased from 23rd September 2022 and second homes from 31st October 2024. For more information on Stamp Duty Land Tax, click here.
2 bedroom Semi Detached Bungalow for sale, Warley Wood Lane, Luddendenfoot, Halifax, HX2
Features and Description
- NO CHAIN
- STUNNING VIEWS
- TWO BEDROOMS
- TRUE BUNGALOW
AUCTION DATE - 16-01-2026 at 13:00
This brilliant two bedroom semi detached bungalow is ready to view right now. Sold with no onward chain the property is ideal for an older couple looking for one level living. Fully South facing the house offers patio garden, great views and ample living space comprising; kitchen/dining room, large living room, two bedrooms and bathroom. Centrally heated and with water boiler.
Call Reeds Rains to view right now.
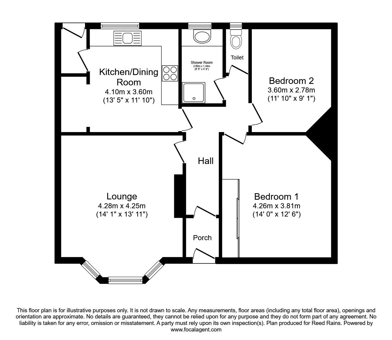
Entrance Hall
The main entrance and hallway is located at the front and South side of the house. Long hallway accessing all rooms.
Living Room
4.28 x 4.25
A large living space with wonderful South facing views with bay window to the front aspect and ample furniture space.
Kitchen / Dining Room
4.10 x 3.60
A large kitchen and dining space with fitted under and over counter units along with ample dining space and large rear window. Built in utility space housing fridge, freezer and washing machine. Rear porch leading to the rear access door.
Bedroom 1
3.60 x 2.78
A large double room with stunning views across the Luddenden and Ryburn valleys. Fitted wardrobes and radiator.
Bedroom 2
4.26 x 3.81
A further double bedroom found to the rear of the house with ample furniture space.
Bathroom and WC
The bathroom is fit with a cubicle shower and fitted store units along with sink. There is a separate wc located next to the bathroom.
Gardens
To the rear is a small patio and raised bed planting area along with stone out house. Pathway to the west gable side of the house accessing the front patio garden. This South facing patio is a great sun trap and offers up stunning views whilst also being very private. Mature hedge boundary and undercroft access to the property.
Agents Notes
FreeholdGardensOn Street ParkingCouncil Tax Band - CEPC Grade - DTo be able to purchase a property in the United Kingdom all agents have a legal requirement to conduct Identity checks on all customers involved in the transaction to fulfil their obligations under Anti Money Laundering regulations. We outsource this check to a third party and a charge will apply. Ask the branch for further details.
Auction Notes
To be able to purchase a property in the United Kingdom all agents have a legal requirement to conduct Identity checks on all customers involved in the transaction to fulfil their obligations under Anti Money Laundering regulations. We outsource this check to a third party and a charge will apply. Ask the branch for further details.This property is for sale by the Modern Method of Auction, meaning the buyer and seller are to Complete within 56 days (the "Reservation Period"). Interested parties personal data will be shared with the Auctioneer (iamsold).If considering buying with a mortgage, inspect and consider the property carefully with your lender before bidding.A Buyer Information Pack is provided. The winning bidder will pay £349.00 including VAT for this pack which you must view before bidding.The buyer signs a Reservation Agreement and makes payment of a non-refundable Reservation Fee of 4.50% of the purchase price including VAT, subject to a minimum of £6,600.00 including VAT. This is paid to reserve the property to the buyer during the Reservation Period and is paid in addition to the purchase price. This is considered within calculations for Stamp Duty Land Tax.Services may be recommended by the Agent or Auctioneer in which they will receive payment from the service provider if the service is taken. Payment varies but will be no more than £450.00. These services are optional.
IMPORTANT NOTE TO POTENTIAL PURCHASERS:
We endeavour to make our particulars accurate and reliable, however, they do not constitute or form part of an offer or any contract and none is to be relied upon as statements of representation or fact. The services, systems and appliances listed in this specification have not been tested by us and no guarantee as to their operating ability or efficiency is given. All photographs and measurements have been taken as a guide only and are not precise. Floor plans where included are not to scale and accuracy is not guaranteed. If you require clarification or further information on any points, please contact us, especially if you are travelling some distance to view. Fixtures and fittings other than those mentioned are to be agreed with the seller.
Warley Wood Lane, Luddendenfoot, Halifax, HX2
Additional Information
-
Property refHBR250411
-
TenureFreehold
-
Council TaxC
Similar properties for sale by Reeds Rains Hebden Bridge
The pin shows the exact address of the property
Energy Efficiency Rating
Very energy efficient - lower running costs
Not energy efficient - higher running costs
Current
N/APotential
N/ACO2 Rating
Very energy efficient - lower running costs
Not energy efficient - higher running costs
