This calculator provides a guide to the amount of residential stamp duty you may pay and does not guarantee this will be the actual cost. This calculation is based on the Stamp Duty Land Tax Rates for residential properties purchased from 23rd September 2022 and second homes from 31st October 2024. For more information on Stamp Duty Land Tax, click here.
3 bedroom Semi Detached House for sale, Ashlands Grove, Stoke-on-Trent, Staffordshire, ST4
Features and Description
- Excellent investment opportunity
- Highly sought-after location
- Close to Royal Stoke Hospital
- Easy access to public transport
- Spacious reception room
- Large windows, natural light
- Three bedrooms, flexible layout
- Generous private garden
- Off-road parking available
- Significant renovation potential
Cash buyers only. Presenting an excellent investment opportunity, this semi-detached house is offered for sale via the modern method of auction, appealing particularly to investors, buy-to-let landlords, and cash buyers. The property is located in a sought-after area, just 2 minutes walk from the renowned Royal Stoke Hospital and within easy reach of excellent public transport links, nearby schools, local amenities, and inviting parks.
Comprising three bedrooms—two doubles and one single—this residence provides flexible accommodation suitable for a variety of needs. The two spacious reception rooms, featuring large windows, welcomes natural light and offers an ideal setting for relaxation or entertaining. With one bathroom and a room for the kitchen, both in need of comprehensive renovation, there’s significant potential for customisation and value enhancement.
Notably, the property currently has no kitchen installed, making it suitable for cash buyers only. The bathroom, like the rest of the house, requires full modernisation. The home further benefits from off-road parking and a generous garden, adding to its appeal for future occupants or tenants.
Situated in a highly desirable location close to amenities and green spaces, this property is a promising prospect for those seeking a project with excellent resale or rental potential. Council tax is rated at Band C.
We invite cash buyers who recognise this diamond in the rough to arrange a viewing and explore the exciting possibilities that this property presents. This is an exceptional chance to restore and personalise a home in one of the area’s most popular settings.
This property is for sale by the Modern Method of Auction, meaning the buyer and seller are to Complete within 56 days (the "Reservation Period"). Interested parties personal data will be shared with the Auctioneer (iamsold).
If considering buying with a mortgage, inspect and consider the property carefully with your lender before bidding.
A Buyer Information Pack is provided. The winning bidder will pay £349.00 including VAT for this pack, payable on completion, which you must view before bidding.
The buyer signs a Reservation Agreement and makes payment of a non-refundable Reservation Fee of 4.5% of the purchase price including VAT, subject to a minimum of £6,600.00 including VAT. This is paid to reserve the property to the buyer during the Reservation Period and is paid in addition to the purchase price. This is considered within calculations for Stamp Duty Land Tax.
Services may be recommended by the Agent or Auctioneer in which they will receive payment from the service provider if the service is taken. Payment varies but will be no more than £450.00. These services are optional.
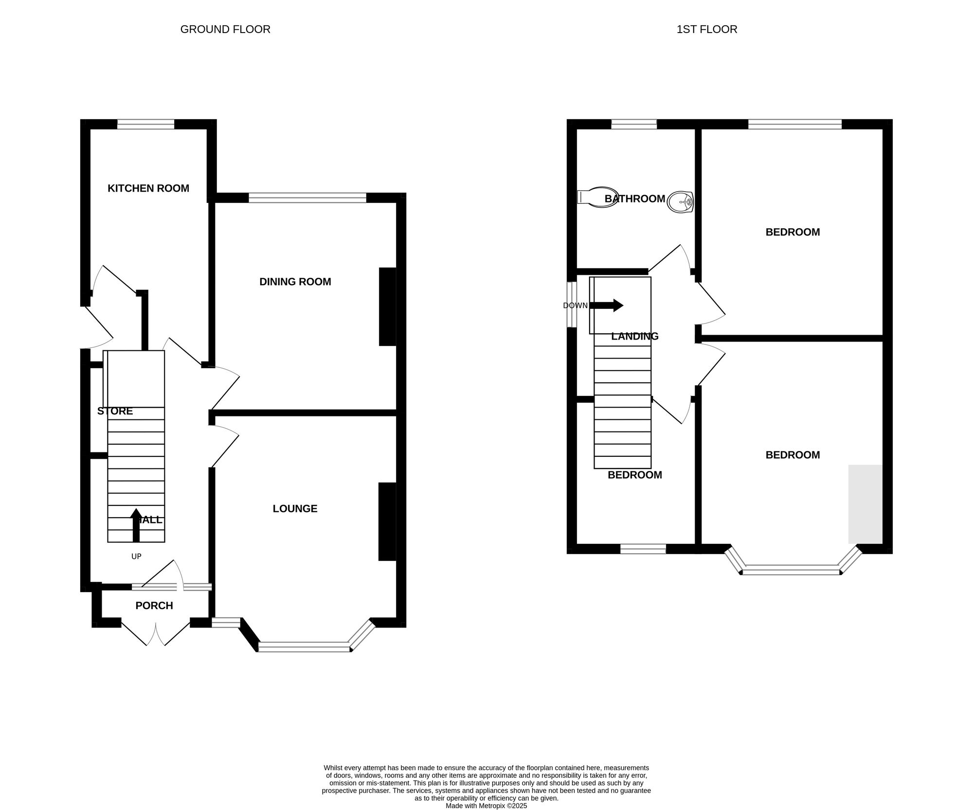
Lounge
10'11" x 13'6" (3.33m x 4.12m)
Dining Room
10'11" x 12'5" (3.33m x 3.78m)
Kitchen Room
7'3" x 14'2" (2.22m x 4.33m)
Bedroom 1
10'11" x 13'5" (3.33m x 4.08m)
Bedroom 2
10'11" x 12'4" (3.33m x 3.77m)
Bathroom
7'3" x 8'6" (2.22m x 2.59m)
IMPORTANT NOTE TO POTENTIAL PURCHASERS:
We endeavour to make our particulars accurate and reliable, however, they do not constitute or form part of an offer or any contract and none is to be relied upon as statements of representation or fact. The services, systems and appliances listed in this specification have not been tested by us and no guarantee as to their operating ability or efficiency is given. All photographs and measurements have been taken as a guide only and are not precise. Floor plans where included are not to scale and accuracy is not guaranteed. If you require clarification or further information on any points, please contact us, especially if you are travelling some distance to view. Fixtures and fittings other than those mentioned are to be agreed with the seller.
Ashlands Grove, Stoke-on-Trent, Staffordshire, ST4
Additional Information
-
Property refNLY250437
-
TenureFreehold
-
Council TaxC
-
Local authorityNewcastle Under Lyme Borough Council
Similar properties for sale by Reeds Rains Newcastle-under-Lyme
The pin shows the exact address of the property
Energy Efficiency Rating
Very energy efficient - lower running costs
Not energy efficient - higher running costs
Current
N/APotential
N/ACO2 Rating
Very energy efficient - lower running costs
Not energy efficient - higher running costs
