This calculator provides a guide to the amount of residential stamp duty you may pay and does not guarantee this will be the actual cost. This calculation is based on the Stamp Duty Land Tax Rates for residential properties purchased from 23rd September 2022 and second homes from 31st October 2024. For more information on Stamp Duty Land Tax, click here.




























5 bedroom Semi Detached House for sale, Clayhall Avenue, Essex, IG5
Features and Description
- Clayhall Avenue Location with Modern Features
- Four /Five Bedrooms Extended
- Semi - Detached with Planning Permission
- Awaiting EPC
- Next to Ilford County High School
- Spacious Family Home
- Front Drive
- Close to Central Barkingside Shopping Area
- Two Washrooms
GUIDE PRICE £700,000 to £750,000
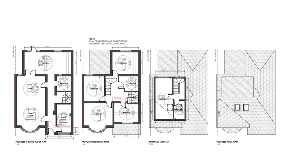
With Planning Permission Granted for Loft & Rear Extensions :
Close to Ilford County School
This Extended Semi - Detached Home offers spacious family accommodation with a sought - after location close to Ilford County High and Barkingside High Street. Local Central Line Tube Stations include : - Fairlop & Barkingside .
EPC RATING = D
IMPORTANT NOTE TO POTENTIAL PURCHASERS:
We endeavour to make our particulars accurate and reliable, however, they do not constitute or form part of an offer or any contract and none is to be relied upon as statements of representation or fact. The services, systems and appliances listed in this specification have not been tested by us and no guarantee as to their operating ability or efficiency is given. All photographs and measurements have been taken as a guide only and are not precise. Floor plans where included are not to scale and accuracy is not guaranteed. If you require clarification or further information on any points, please contact us, especially if you are travelling some distance to view. Fixtures and fittings other than those mentioned are to be agreed with the seller.
Clayhall Avenue, Essex, IG5

Additional Information
-
Property refILF120001
-
EPCD
-
TenureFreehold
-
Council TaxF
-
Local authorityRedbridge Council





























The pin shows the exact address of the property
Energy Efficiency Rating
Very energy efficient - lower running costs
Not energy efficient - higher running costs
Current
58Potential
76CO2 Rating
Very energy efficient - lower running costs
Not energy efficient - higher running costs