This calculator provides a guide to the amount of residential stamp duty you may pay and does not guarantee this will be the actual cost. This calculation is based on the Stamp Duty Land Tax Rates for residential properties purchased from 23rd September 2022 and second homes from 31st October 2024. For more information on Stamp Duty Land Tax, click here.
3 bedroom Semi Detached House for sale, Downside, Portishead, Bristol, BS20
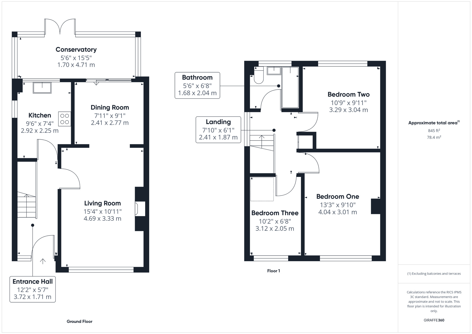
Features and Description
- Fantastic Semi-Detached Home
- Well Presented Throughout
- Cul De Sac Location
- Three Bedrooms
- Living / Dining Room
- Separate Kitchen
- Walking Distance to High Street
- Good Size Garden
- Single Garage & Driveway
- Tenure: Freehold
- Council Tax Band C & EPC Rating D
This well presented three bedroom semi detached home is located in a quiet cul de sac location, whilst at the same time being a short distance from Portishead's popular high street. The ground floor benefits from a light and airy living / dining room, modern kitchen, and conservatory. Upstairs, there are three well proportioned bedrooms, and a bathroom suite. The rear garden is a good size, and consists of a patio seating area, the rest is mainly laid to lawn, and there is access to the back of the home via the side of the property. Other features of the home include, a driveway for multiple vehicles, single garage, gas central heating, and double glazing.
Additional Information
Construction As Per EPC - Wall Cavity wall, as built.Wall Solid brick, as built.Roof Pitched, 75 mm loft insulation.
IMPORTANT NOTE TO POTENTIAL PURCHASERS:
We endeavour to make our particulars accurate and reliable, however, they do not constitute or form part of an offer or any contract and none is to be relied upon as statements of representation or fact. The services, systems and appliances listed in this specification have not been tested by us and no guarantee as to their operating ability or efficiency is given. All photographs and measurements have been taken as a guide only and are not precise. Floor plans where included are not to scale and accuracy is not guaranteed. If you require clarification or further information on any points, please contact us, especially if you are travelling some distance to view. Fixtures and fittings other than those mentioned are to be agreed with the seller.
Downside, Portishead, Bristol, BS20

Additional Information
-
Property refPOR250208
-
EPCD
-
TenureFreehold
-
Council TaxC
-
Local authorityNorth Somerset Council

Similar properties for sale by Reeds Rains Portishead












The pin shows the exact address of the property
Energy Efficiency Rating
Very energy efficient - lower running costs
Not energy efficient - higher running costs
Current
59Potential
73CO2 Rating
Very energy efficient - lower running costs
Not energy efficient - higher running costs