This calculator provides a guide to the amount of residential stamp duty you may pay and does not guarantee this will be the actual cost. This calculation is based on the Stamp Duty Land Tax Rates for residential properties purchased from 23rd September 2022 and second homes from 31st October 2024. For more information on Stamp Duty Land Tax, click here.
4 bedroom Semi Detached House for sale, Osbert Road, Rotherham, South Yorkshire, S60
Features and Description
- Four bedrooms
- Off road parking
- Large private rear garden
- Annexe
- High spec eco friendly property
- Very sought after area
- Close to local amenities
- Great commuter links
Discover this stunning four-bedroom semi-detached home, fully renovated from top to bottom to the very highest specification — ready for you to move straight in and enjoy.
Every detail has been carefully considered, from the modern open-plan living spaces to the sleek, high-quality finishes throughout. Boasting an A-rated EPC, this home combines luxury with outstanding energy efficiency — keeping your running costs low while staying effortlessly stylish.
Adding to its appeal is a self-contained annexe, ideal as a private living space for extended family, guests, or even a home office suite.
Set in a highly sought-after area, this home is just a short stroll from excellent local amenities and offers superb commuter links — perfect for busy professionals or families who want convenience without compromise. With generous bedrooms, contemporary bathrooms, and a landscaped garden, this property truly has it all.
The property also has drawings and calculations for a loft conversion (two bedrooms, bathroom and storage).
Opportunities like this are rare. Arrange your viewing today and experience first-hand what makes this exceptional home stand out.
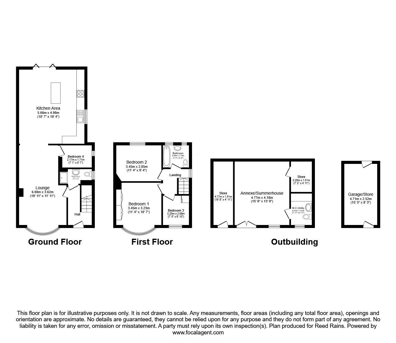
Entrance Hall
A front facing PVCu double glazed door leads into the hallway which is fitted with a central heating radiator, storage under stairs housing the boiler and stairs rising to the first floor.
Shower Room
The shower room is fitted with tiled splashbacks, a wash hand basin, wc, shower cubicle and a side facing PVCu double glazed window.
Lounge / Diner
22'6" x 9'8" (6.86m x 2.95m)
The lounge diner is fitted with two central heating radiator, log burner, open to kitchen and a front facing PVCu double glazed bay window.
Bedroom / Office
8'6" x 6'6" (2.60m x 1.98m)
The bedroom/office is fitted with a side facing PVCu double glazed window.
Kitchen
18'5" x 15'8" (5.61m x 4.78m)
The kitchen is fitted with wall and base units with contrasting worksurfaces and splashbacks, and island, space for American style fridge freezer, an electric oven with gas hob and cooker hood above, filter tap, a side facing PVCu double glazed window, rear facing sky lights and rear facing bi fold doors to the garden.
Landing
Stairs rise from the entrance hall to the landing which is fitted with a side facing PVCu double glazed window and loft access.
Bedroom 1
11'8" x 11'4" (3.56m x 3.45m)
Bedroom one has fitted wardrobes, a central heating radiator and a front facing PVCu double glazed bay window.
Bedroom 2
11'3" x 9'3" (3.43m x 2.82m)
Bedroom two has fitted wardrobes, a central heating radiator and a rear facing PVCu double glazed window.
Bedroom 3
7'3" x 6'7" (2.20m x 2.00m)
Bedroom three is fitted with a central heating radiator and a front facing PVCu double glazed window.
Bathroom
The bathroom is fully tiled and fitted with a wash hand basin, wc, a heated towel rail, bath with shower over and a rear facing PVCu double glazed window.
Annexe / Summerhouse
The annexe is a very versatile space currently used as function room but has plumbing and electrics which could be utilised for a shower room and kitchen. The annexe also has two separate storage areas and a utility which is fully tiled and a wc. This room benefits from infrared heating and is very well insulated.
Garage
The garage is fitted with front and rear facing PVCu doors, and fitted with power and lighting providing excellent storage space.
External
To the front of the property is a large driveway with hedge borders. To the rear of the property is a large garden with long lawn, various planting beds, stone flagged patios and hedge borders.
IMPORTANT NOTE TO POTENTIAL PURCHASERS:
We endeavour to make our particulars accurate and reliable, however, they do not constitute or form part of an offer or any contract and none is to be relied upon as statements of representation or fact. The services, systems and appliances listed in this specification have not been tested by us and no guarantee as to their operating ability or efficiency is given. All photographs and measurements have been taken as a guide only and are not precise. Floor plans where included are not to scale and accuracy is not guaranteed. If you require clarification or further information on any points, please contact us, especially if you are travelling some distance to view. Fixtures and fittings other than those mentioned are to be agreed with the seller.
Additional Information
-
Property refROT250390
-
EPCA
-
TenureFreehold
-
Council TaxC
-
Local authorityRotherham Borough Council

Similar properties for sale by Reeds Rains Rotherham

A front facing PVCu double glazed door leads into the hallway which is fitted with a central heating radiator, storage under stairs housing the boiler and stairs rising to the first floor.

The shower room is fitted with tiled splashbacks, a wash hand basin, wc, shower cubicle and a side facing PVCu double glazed window.

The lounge diner is fitted with two central heating radiator, log burner, open to kitchen and a front facing PVCu double glazed bay window.


The bedroom/office is fitted with a side facing PVCu double glazed window.




Stairs rise from the entrance hall to the landing which is fitted with a side facing PVCu double glazed window and loft access.

The bathroom is fully tiled and fitted with a wash hand basin, wc, a heated towel rail, bath with shower over and a rear facing PVCu double glazed window.

The annexe is a very versatile space currently used as function room but has plumbing and electrics which could be utilised for a shower room and kitchen. The annexe also has two separate storage areas and a utility which is fully tiled and a wc. This room benefits from infrared heating and is very well insulated.









The pin shows the exact address of the property
Energy Efficiency Rating
Very energy efficient - lower running costs
Not energy efficient - higher running costs
Current
95Potential
97CO2 Rating
Very energy efficient - lower running costs
Not energy efficient - higher running costs