This calculator provides a guide to the amount of residential stamp duty you may pay and does not guarantee this will be the actual cost. This calculation is based on the Stamp Duty Land Tax Rates for residential properties purchased from 23rd September 2022 and second homes from 31st October 2024. For more information on Stamp Duty Land Tax, click here.
3 bedroom Semi Detached House for sale, Stonebridge, Park Road, Newtownabbey, BT36
Stonebridge
From £265,000Stonebridge, Park Road, Mallusk, BT36 4QF
Features and Description
Stunning Selection of Townhouses, Semi Detached and Detached Family Homes Located Just Off Park Road, Mallusk.
This will be a community where families can gather to socialise and neighbours become friends - a sustainable development thriving side by side with the natural elements that surround it.
The superb location offers unrivalled accessibility to a fantastic combination of amenities and activities. Local nursery, primary school, shops, cafes and eateries are within a short walk, whilst an excellent range of secondary schools, supermarkets, sports and recreational facilities are within a few minutes drive away.
IMPORTANT NOTE TO POTENTIAL PURCHASERS:
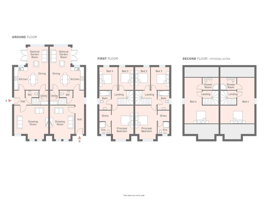
We endeavour to make our particulars accurate and reliable, however, they do not constitute or form part of an offer or any contract and none is to be relied upon as statements of representation or fact. The services, systems and appliances listed in this specification have not been tested by us and no guarantee as to their operating ability or efficiency is given. All photographs and measurements have been taken as a guide only and are not precise. Floor plans where included are not to scale and accuracy is not guaranteed. If you require clarification or further information on any points, please contact us, especially if you are travelling some distance to view. Fixtures and fittings other than those mentioned are to be agreed with the seller.
Stonebridge, Park Road, Newtownabbey, BT36
Additional Information
-
Property refGLE260201
Similar properties for sale by Reeds Rains Glengormley
The pin shows the exact address of the property
Energy Efficiency Rating
Very energy efficient - lower running costs
Not energy efficient - higher running costs
Current
N/APotential
N/ACO2 Rating
Very energy efficient - lower running costs
Not energy efficient - higher running costs
