This calculator provides a guide to the amount of residential stamp duty you may pay and does not guarantee this will be the actual cost. This calculation is based on the Stamp Duty Land Tax Rates for residential properties purchased from 23rd September 2022 and second homes from 31st October 2024. For more information on Stamp Duty Land Tax, click here.
3 bedroom Semi Detached House for sale, Yates Road, Thornton-le-Moors, Cheshire, CH2
Features and Description
- Three Bed Semi
- Cul De Sac Position
- Open Views to Rear.
- Off Road Parking
- Flexible Living Space
- Utility and Downstairs WC
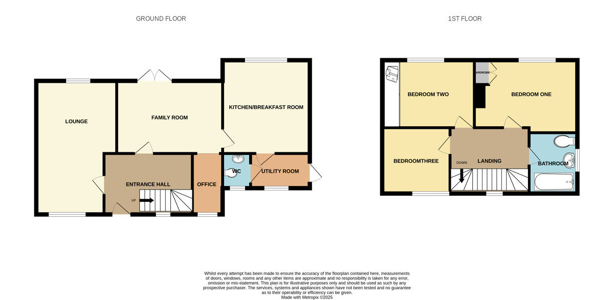
This lovely three-bedroom semi-detached home is set in a quiet cul-de-sac in the small village of Thornton-le-Moors. Extended to the side, it offers plenty of space and a welcoming feel throughout. The accommodation includes an entrance hall, a bright dual-aspect living room with a decorative cast-iron fireplace, and a spacious dining/family room with French doors leading out to the garden. There’s also a study, a well-fitted breakfast kitchen with integrated appliances, a useful utility room, and a downstairs WC. Upstairs, there are three bedrooms and a modern bathroom with a white suite.
Outside, the front of the property features generous driveway and a gravelled area, enclosed by timber fencing and mature hedging. The generous rear garden is mainly laid to lawn with a flagged patio area—perfect for relaxing or entertaining—and enjoys an open outlook with distant views towards the Welsh hills.
The property is ideally placed for easy access to the M53 and M56 (M6) motorways—making it a great choice for commuters travelling to Chester, Liverpool, Manchester, great amenities can be found nearby in Ellesmere Port, along with the popular Cheshire Oaks Retail Park.
Entrance Hall
10'5" x 7'6" (3.18m x 2.29m)
Living Room
17'3" x 11'3" (5.26m x 3.43m)
Family Room
4.47m to alcove x 3.02m
Office Space
8'4" x 5'11" (2.54m x 1.80m)
Kitchen
13'10" x 11'9" (4.22m x 3.58m)
Utility Room
9'1" x 5'7" (2.77m x 1.70m)
WC
4'5" x 3'7" (1.35m x 1.10m)
Landing
10'6" x 7'8" (3.20m x 2.34m)
Bedroom 1
13'4" x 10'0" (4.06m x 3.05m)
Bedroom 2
3.3m to wardrobes x 2.8m
Bedroom 3
8'11" x 7'9" (2.72m x 2.36m)
Bathroom
6'10" x 5'10" (2.08m x 1.78m)
Directions
Use CH2 4JJ for Sat Nav
IMPORTANT NOTE TO POTENTIAL PURCHASERS:
We endeavour to make our particulars accurate and reliable, however, they do not constitute or form part of an offer or any contract and none is to be relied upon as statements of representation or fact. The services, systems and appliances listed in this specification have not been tested by us and no guarantee as to their operating ability or efficiency is given. All photographs and measurements have been taken as a guide only and are not precise. Floor plans where included are not to scale and accuracy is not guaranteed. If you require clarification or further information on any points, please contact us, especially if you are travelling some distance to view. Fixtures and fittings other than those mentioned are to be agreed with the seller.
Yates Road, Thornton-le-Moors, Cheshire, CH2
Additional Information
-
Property refLSU250102
-
EPCD
-
TenureFreehold
-
Council TaxA
Similar properties for sale by Reeds Rains Little Sutton
The pin shows the exact address of the property
Energy Efficiency Rating
Very energy efficient - lower running costs
Not energy efficient - higher running costs
Current
62Potential
97CO2 Rating
Very energy efficient - lower running costs
Not energy efficient - higher running costs
