4 bedroom Semi Detached House to rent, St. Lesmo Road, Stockport, Greater Manchester, SK3
Available Furnished, from 05/12/2025
Features and Description
- AVAILABLE NOW
- EPC GRADE D
- COUNCIL TAX BAND E
- Furnished or Part
- Four Bedroom Detached
- 150 ft (approx.) Front Garden/Driveway
- Highly Desirable Location
- Stunning Throughout
- Multi Chambered Cellar
AVAILABLE NOW on a Fully FURNISHED basis Reeds Rains are delighted to have this wonderful FOUR bedroom Semi detached property available to Let!
Situated on one of Edgeley's most desirable roads is this immaculately presented Four bedroom property with an abundance of space, style and character throughout.
The property boasts an attractive position, set back from the road with 150 ft (approx.) long lawn and driveway. Conveniently positioned with both Alexandra Park & Reservoirs close by as well as falling within the school catchment for both primary and secondary schools. Stockport Train Station is also within close proximity
In brief the property comprises of: Fabulous reception entrance hallway, spacious living room, second living area/family room, modern kitchen with appliances and a dinning room.
To the first floor you have a spacious landing, four double bedrooms one with En-suite, stunning family sized bathroom with free standing bath and separate shower.
The property also boasts a multi chambered cellar, good sized rear garden with access to the front of the property via electronic gates.
If you would like to call this amazing property home call ASAP to arrange a viewing!
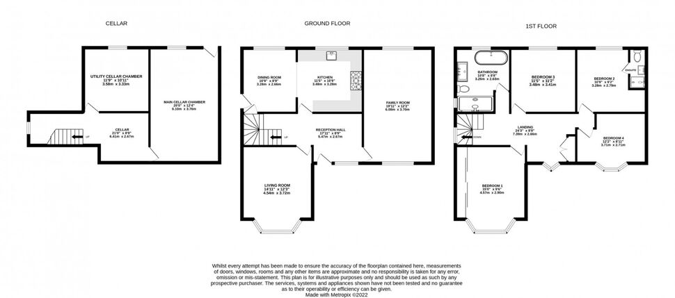
Entrance Hall
17'11" x 8'9" (5.46m x 2.67m)
Living Room
14'11" x 12'3" (4.55m x 3.73m)
Family Room
19'11" x 12'2" (6.07m x 3.70m)
Kitchen
11'5" x 10'9" (3.48m x 3.28m)
Dining Room
10'9" x 8'9" (3.28m x 2.67m)
Landing
24'3" x 8'9" (7.40m x 2.67m)
Bedroom 1
14'12" x 9'6" (4.57m x 2.90m)
Bedroom 2
10'9" x 9'2" (3.28m x 2.80m)
Bedroom 3
11'5" x 11'2" (3.48m x 3.40m)
Bedroom 4
12'2" x 8'11" (3.70m x 2.72m)
Bathroom
10'8" x 8'8" (3.25m x 2.64m)
Main Cellar
20'0" x 12'4" (6.10m x 3.76m)
Utility Cellar
11'9" x 10'11" (3.58m x 3.33m)
IMPORTANT NOTE TO POTENTIAL RENTERS:
We endeavour to make our particulars accurate and reliable, however, they do not constitute or form part of an offer or any contract and none is to be relied upon as statements of representation or fact. The services, systems and appliances listed in this specification have not been tested by us and no guarantee as to their operating ability or efficiency is given. All photographs and measurements have been taken as a guide only and are not precise. Floor plans where included are not to scale and accuracy is not guaranteed. If you require clarification or further information on any points, please contact us, especially if you are travelling some distance to view.
All properties are available for a minimum of six months, with the exception of short term accommodation. A security deposit of at least one month’s rent is required. Rent is to be paid one month in advance. It is the tenant’s responsibility to insure any personal possessions. Payment of all utilities including water rates or metered supply and Council Tax is the responsibility of the tenant in every case.
Client Money Protection is provided by Propertymark. Redress through The Property Ombudsman Scheme.
St. Lesmo Road, Stockport, Greater Manchester, SK3
The pin shows the exact address of the property
Energy Efficiency Rating
Very energy efficient - lower running costs
Not energy efficient - higher running costs
Current
56Potential
77CO2 Rating
Very energy efficient - lower running costs
Not energy efficient - higher running costs
