2 bedroom Flat to rent, Wilton Place, Salford, Greater Manchester, M3
Available Furnished, from 08/11/2025
Features and Description
- ONLINE VIEWING AVAILABLE
- Deposit £1500
- EPC Grade = C
- Tandem Parking Space
- Nicely Furnished
- Refurbished Kitchen
- Lovely Conversion
- Council Tax Band = C
ONLINE VIEWING AVAILABLE.
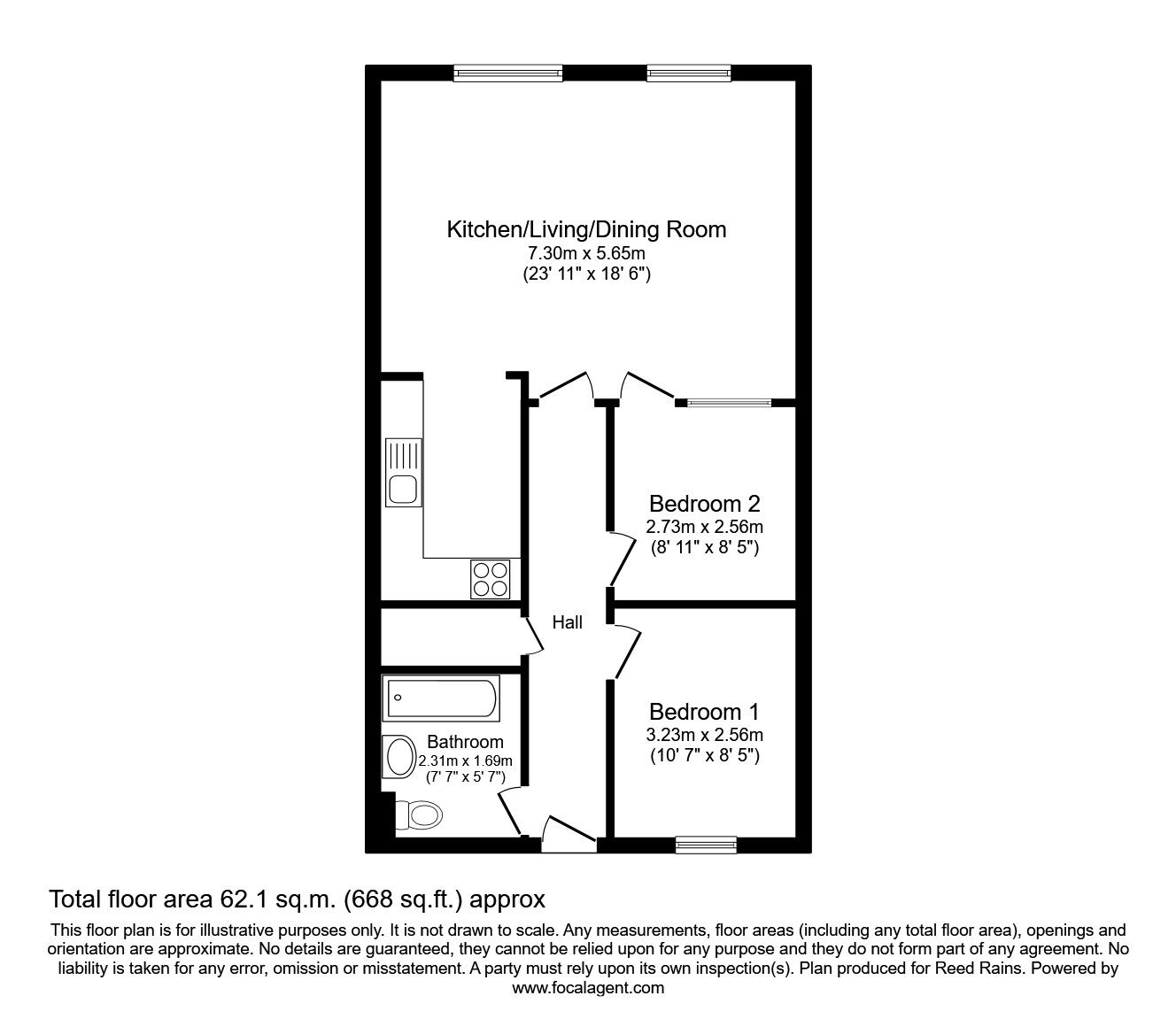
A superb TWO DOUBLE BEDROOM apartment in the converted Royal Apartments with a SECURE TANDEM PARKING SPACE in the underground car park. A short walk to Manchester City Centre and also close to Salford Crescent train station.
The apartment is less than 2 miles from Salford Quays and Media City UK. This second floor furnished apartment comprises entrance hall, open plan living, dining and recently refurbished kitchen with built in appliances. Two double bedrooms and modern bathroom. EPC Grade = C . Council Tax Band = B.
IMPORTANT NOTE TO POTENTIAL RENTERS:
We endeavour to make our particulars accurate and reliable, however, they do not constitute or form part of an offer or any contract and none is to be relied upon as statements of representation or fact. The services, systems and appliances listed in this specification have not been tested by us and no guarantee as to their operating ability or efficiency is given. All photographs and measurements have been taken as a guide only and are not precise. Floor plans where included are not to scale and accuracy is not guaranteed. If you require clarification or further information on any points, please contact us, especially if you are travelling some distance to view.
All properties are available for a minimum of six months, with the exception of short term accommodation. A security deposit of at least one month’s rent is required. Rent is to be paid one month in advance. It is the tenant’s responsibility to insure any personal possessions. Payment of all utilities including water rates or metered supply and Council Tax is the responsibility of the tenant in every case.
Client Money Protection is provided by Propertymark. Redress through The Property Ombudsman Scheme.
Wilton Place, Salford, Greater Manchester, M3
Similar properties to rent by Reeds Rains Salford Quays








The pin shows the exact address of the property
Energy Efficiency Rating
Very energy efficient - lower running costs
Not energy efficient - higher running costs
Current
N/APotential
N/ACO2 Rating
Very energy efficient - lower running costs
Not energy efficient - higher running costs