This calculator provides a guide to the amount of residential stamp duty you may pay and does not guarantee this will be the actual cost. This calculation is based on the Stamp Duty Land Tax Rates for residential properties purchased from 23rd September 2022 and second homes from 31st October 2024. For more information on Stamp Duty Land Tax, click here.
3 bedroom Detached House for sale, Beacon Drive, Eastfield, Scarborough, YO11
Features and Description
Main Description
Offering for sale this well presented three bedroom detached home. This is a brilliant example of a family home close to local schools, shops and bus routes to Scarborough town Centre. This beautiful home briefly comprises; entrance hallway, downstairs WC, living room and a modern fitted kitchen. To the first floor there are; three bedrooms with the main bedroom having an en-suite facility, and a family bathroom. Outside offers a laid to lawn garden to the rear and off street parking. VIEWINGS COME HIGHLY RECOMMENDED. FOR MORE INFORMATION OR TO ARRANGE YOUR VIEWING PLEASE CONTACT REEDS RAINS SCARBOROUGH BRANCH. EPC GRADE B. COUNCIL TAX BAND C.
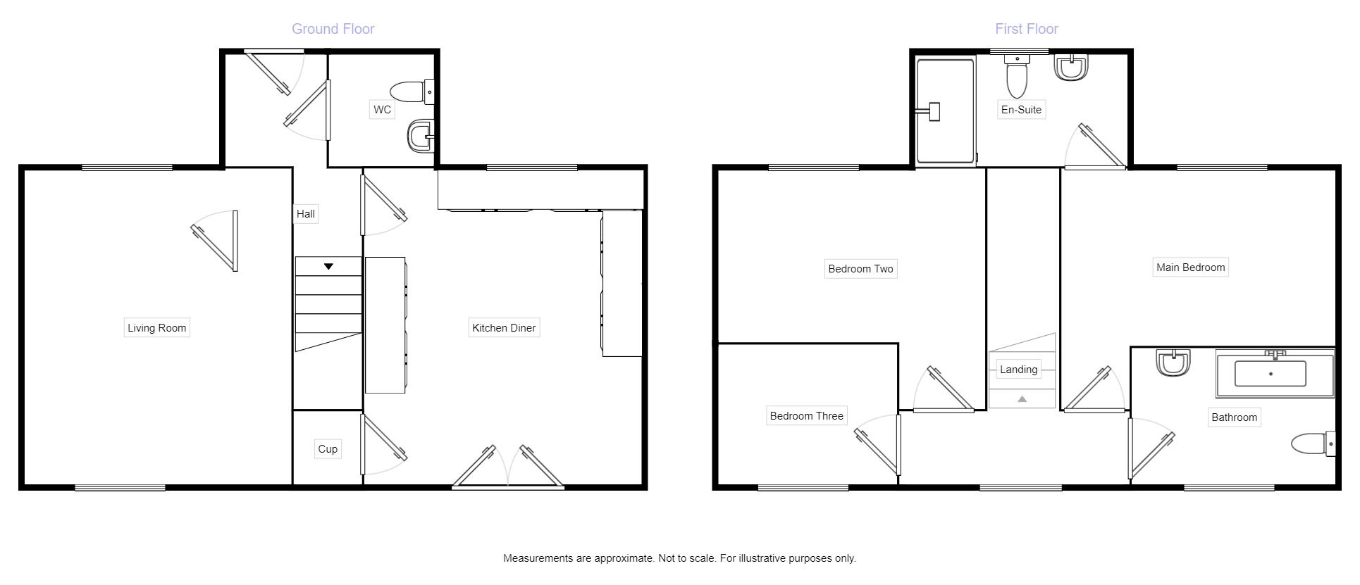
Ground Floor
Entrance Hall
Double glazed entrance door to the front elevation leading to a hall. Radiator. Stairs leading to the first floor landing. Door leading to:
Separate WC
Comprised of a two piece suite which includes a low level WC and a wash hand basin. Radiator.
Living Room 14 ft 7 x 11 ft 8
Double glazed windows to both the front and rear elevations, radiator.
Dining Kitchen 15 ft 5 x 10 ft 4
A modern white kitchen offering a range of wall and base units with wood effect work top surface areas, incorporating an inset sink unit. Built-in electric oven with a gas hob and extractor over. Space for a washing machine and fridge / freezer. Built-in cupboard and a radiator. Double glazed window to the front, double opening double glazed doors to the rear elevation leading to the garden.
First Floor
First Floor Landing
Double glazed window and a radiator. Doors leading to:
Main Bedroom 10 ft 4 x 9 ft 5 -- Maximum 13 ft 6
Double glazed window and a radiator.
En-Suite Shower Room
Comprised of a three piece suite which includes a step-in shower cubicle, wash hand basin and a low level WC. Part tiled walls and tiled flooring, radiator. Double glazed window.
Bedroom Two 11 ft 8 x 8 ft 4
Double glazed window to the front elevation, radiator.
Bedroom Three 8 ft 7 x 6 ft 4
Double glazed window to the rear elevation, radiator.
Bathroom
Comprised of a three piece suite which includes a panelled bath with a shower over, wash hand basin and a low level WC. Part tiled walls and tiled flooring, radiator. Double glazed window.
Externally
Front: Gravelled patio style garden, gated access to the rear garden. Rear: Enclosed garden laid mainly to lawn.
Agent Note
HMRC is a supervisory body for money laundering regulations, of which all estate agents need to be registered with. As part of this, there are multiple requirements that agents must rigorously and consistently meet to ensure they stay compliant with the regulations and protect their clients. To do this, we use an identity verification service, approved by the Government as part of the Digital Identity and Attributes Trust Framework (DIATF).
This method and the process we follow to ensure compliance for your transaction come with significant time, financial and legal implications hence a portion of this is passed on to our clients. We elected for this verification process due to the speed, certainty, and accuracy it delivers. This helps us to protect all our client's interests by using the most advanced verification process to help prevent the impacts of money laundering alongside our internal manual policies and procedures while staying compliant with HMRC.
Entrance Hall
Double glazed entrance door to the front elevation leading to a hall. Radiator. Stairs leading to the first floor landing. Door leading to:
Separate WC
Comprised of a two piece suite which includes a low level WC and a wash hand basin. Radiator.
Living Room
14 ft 7 x 11 ft 8
Double glazed windows to both the front and rear elevations, radiator.
Dining Kitchen
15 ft 5 x 10 ft 4
A modern white kitchen offering a range of wall and base units with wood effect work top surface areas, incorporating an inset sink unit. Built-in electric oven with a gas hob and extractor over. Space for a washing machine and fridge / freezer. Built-in cupboard and a radiator. Double glazed window to the front, double opening double glazed doors to the rear elevation leading to the garden.
First Floor Landing
Double glazed window and a radiator. Doors leading to:
Main Bedroom
10 ft 4 x 9 ft 5 -- Maximum 13 ft 6
Double glazed window and a radiator.
En-Suite Shower Room
Comprised of a three piece suite which includes a step-in shower cubicle, wash hand basin and a low level WC. Part tiled walls and tiled flooring, radiator. Double glazed window.
Bedroom 2
11 ft 8 x 8 ft 4
Double glazed window to the front elevation, radiator.
Bedroom 3
8 ft 7 x 6 ft 4
Double glazed window to the rear elevation, radiator.
Bathroom
Comprised of a three piece suite which includes a panelled bath with a shower over, wash hand basin and a low level WC. Part tiled walls and tiled flooring, radiator. Double glazed window.
Externally
Front:Gravelled patio style garden, gated access to the rear garden.Rear:Enclosed garden laid mainly to lawn.
IMPORTANT NOTE TO POTENTIAL PURCHASERS:
We endeavour to make our particulars accurate and reliable, however, they do not constitute or form part of an offer or any contract and none is to be relied upon as statements of representation or fact. The services, systems and appliances listed in this specification have not been tested by us and no guarantee as to their operating ability or efficiency is given. All photographs and measurements have been taken as a guide only and are not precise. Floor plans where included are not to scale and accuracy is not guaranteed. If you require clarification or further information on any points, please contact us, especially if you are travelling some distance to view. Fixtures and fittings other than those mentioned are to be agreed with the seller.
Beacon Drive, Eastfield, Scarborough, YO11
Additional Information
-
Property refSCA240128
-
EPCB
-
TenureFreehold
-
Council TaxC
Similar properties for sale by Reeds Rains Scarborough
The pin shows the exact address of the property
Energy Efficiency Rating
Very energy efficient - lower running costs
Not energy efficient - higher running costs
Current
82Potential
94CO2 Rating
Very energy efficient - lower running costs
Not energy efficient - higher running costs
