This calculator provides a guide to the amount of residential stamp duty you may pay and does not guarantee this will be the actual cost. This calculation is based on the Stamp Duty Land Tax Rates for residential properties purchased from 23rd September 2022 and second homes from 31st October 2024. For more information on Stamp Duty Land Tax, click here.
7 bedroom Detached House for sale, Clough Mill, Rochdale Road, Todmorden, OL14
Features and Description
- 7 DOUBLE BEDROOMS
- 3746 sq ft home
- CLOSE TO TRAIN STATION
- BEAUTIFUL VIEWS
- LOVELY GARDEN
- GARAGE AND PARKING
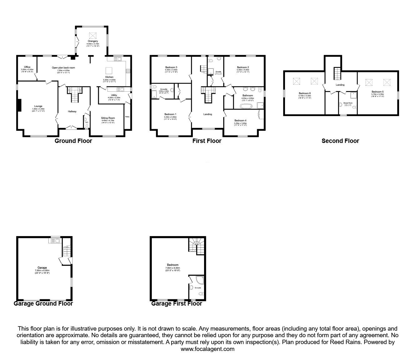
An exceptional and individually designed seven -bedroom detached home offering expansive and versatile accommodation, ideal for families or multi-generational living. This impressive property includes a two-storey detached double garage with an additional bedroom and bathroom above, previously used as an annexe.
The main house briefly comprises; a welcoming entrance hall, WC, cloakroom, spacious living room, open-plan kitchen flowing into a large living area and orangery, separate dining room, office, and a utility room. On the first floor, there are four generously sized double bedrooms, two with en suite bathrooms and walk-in wardrobes, all featuring fitted wardrobes and drawers, along with a large family bathroom and a storage cupboard.
The second floor provides two further double bedrooms — one currently used as a games room with a pool table—a bathroom, and an additional storage room. Externally, the property benefits from a large driveway with parking for up to six cars, a spacious patio leading onto a large garden with stunning, uninterrupted views of surrounding woodland.
The home is situated just moments from Walsden train station, providing swift and direct access to both Manchester and Leeds.
Hallway
You enter the home into a truly impressive hallway, featuring a striking split staircase that immediately captures attention. The upper landing is beautifully framed with bannisters all around, creating an open, gallery-style view.
Lounge
7.20x5.30
A very generously sized living room, beautifully appointed with a feature media wall incorporating a contemporary electric fire, complemented by expansive windows to the front elevation that provide an abundance of natural light.
Office
3.20x2.50
Located just off the open-plan kitchen and living area is a versatile room currently used as a home office. With a window overlooking the rear garden and patio, it enjoys lovely views and could easily serve as a playroom or snug.
Kitchen
5.30x4.00
A contemporary kitchen fitted with a comprehensive range of sleek wall and base units, featuring integrated Neff appliances including two double ovens, a built-in microwave, coffee machine, dishwasher, and a five-ring gas hob. There is also an American-style fridge freezer. The central island unit houses an integrated drinks fridge and offers additional workspace and seating, making it both stylish and highly functional.
Utility room
4.20x2.20
A well-equipped utility room fitted with a range of wall and base units, offering plumbing for a washing machine and dryer, along with an integrated fridge freezer. This practical space also provides side access to the property, ideal for everyday use. Just off the utility room is a separate service room housing the boiler, fuse box, and other essential utilities.
Open plan back room
7.00x4.00
Off the kitchen is a spacious and versatile living area, featuring a multi-fuel burner that adds warmth and character to the space. This room has previously been used as a dining area, offering flexibility to suit a variety of lifestyles. French doors open directly onto the garden, creating a seamless connection between indoor and outdoor living.
Orangery
4.00x3.70
A delightful sunroom featuring wrap-around windows, a Velux roof window, and French doorsopening onto the garden, flooding the space with natural light. Currently used as a relaxing sitting room, this bright and airy space offers a tranquil spot to enjoy the surrounding views.
Bedroom 1
5.30x4.80
A very spacious front-facing bedroom, featuring walk-in dressing room fitted with bespoke drawers, wardrobes, and custom-made mirrored walls. The room also benefits from a stylish en suite bathroom, comprising a WC, a walk-in shower, and a sleek sink with integrated vanity unit.
Bedroom 2
5.30x4.00
Another very large bedroom located at the rear of the property, offering beautiful views. This room benefits from an en-suite/walk-in wardrobe area, complete with fitted wardrobes and drawers. Additionally, there is a stylish three-piece bathroom suite, including a shower cubicle.
Bedroom 3
5.30x3.50
A lovely, bright bedroom located at the rear of the property, overlooking the garden. The room features fitted wardrobes and drawers, providing ample storage space.
Bedroom 4
5.30x3.40
Another spacious bedroom located at the front of the property, featuring fitted wardrobes and drawers for convenient storage.
Family Bathroom
4.00x2.80
A lovely family bathroom featuring a double sink vanity unit, a large free-standing bath, a walk-in shower cubicle, and a WC. A frosted window to the side allows natural light to fill this generously sized room while maintaining privacy.
Bedroom 5
5.70x5.30
Located on the second floor is a spacious and bright bedroom, featuring two Velux windows and a side-facing window that flood the room with natural light. This room also benefits from extensive eaves storage, easily accessible and ideal for additional storage needs.
Bathroom
Another bright bathroom located on the second floor comprising a WC, sink, and shower cubicle.
Bedroom 6
5.70x5.30
This bedroom mirrors Bedroom 5, featuring two Velux windows and a side window that provide plenty of natural light. Currently used as a games room, it also benefits from generous eaves storage, just like the adjoining room.
Garage
7.00x6.00
A spacious double garage with electric doors, featuring a small kitchenette and plumbing for an additional washing machine. The current owners previously adapted part of the space for an annex, replacing one garage door with a window to create a kitchen/living area. Alternatively, it can simply serve as a generous and functional garage space, with the added benefit of a side door for easy access.
Garage / Annex / Bedroom 7
7.00x6.00
A large bedroom featuring dormer windows, offering plenty of natural light. This versatile space could also serve as a great office, providing a quiet area detached from the main living spaces.
Garage / Annex Bathroom
A bright bathroom comprising a WC, sink, and shower cubicle.
External
Externally, the property boasts a large driveway with ample space to comfortably accommodate several vehicles. The front features sloped gardens, adding character to the approach. To the rear, you'll find an expansive patio area, ideal for outdoor furniture and entertaining. Beyond this lies a generous garden with stairs leading up to an additional elevated patio space. The rear of the property enjoys undisturbed views of beautiful woodland, offering a peaceful and private setting.
Agents Notes
Freehold EPC awaitingCouncil Tax Band GLarge Gardens Close to the train stationOwned by a relative of a staff memberTo be able to purchase a property in the United Kingdom all agents have a legal requirement to conduct Identity checks on all customers involved in the transaction to fulfil their obligations under Anti Money Laundering regulations. We outsource this check to a third party and a charge will apply. Ask the branch for further details.
IMPORTANT NOTE TO POTENTIAL PURCHASERS:
We endeavour to make our particulars accurate and reliable, however, they do not constitute or form part of an offer or any contract and none is to be relied upon as statements of representation or fact. The services, systems and appliances listed in this specification have not been tested by us and no guarantee as to their operating ability or efficiency is given. All photographs and measurements have been taken as a guide only and are not precise. Floor plans where included are not to scale and accuracy is not guaranteed. If you require clarification or further information on any points, please contact us, especially if you are travelling some distance to view. Fixtures and fittings other than those mentioned are to be agreed with the seller.
Clough Mill, Rochdale Road, Todmorden, OL14
Additional Information
-
Property refHBR240002
-
TenureFreehold
-
Council TaxG
Similar properties for sale by Reeds Rains Hebden Bridge
You enter the home into a truly impressive hallway, featuring a striking split staircase that immediately captures attention. The upper landing is beautifully framed with bannisters all around, creating an open, gallery-style view.
Located just off the open-plan kitchen and living area is a versatile room currently used as a home office. With a window overlooking the rear garden and patio, it enjoys lovely views and could easily serve as a playroom or snug.
A contemporary kitchen fitted with a comprehensive range of sleek wall and base units, featuring integrated Neff appliances including two double ovens, a built-in microwave, coffee machine, dishwasher, and a five-ring gas hob. There is also an American-style fridge freezer. The central island unit houses an integrated drinks fridge and offers additional workspace and seating, making it both stylish and highly functional.
A very spacious front-facing bedroom, featuring walk-in dressing room fitted with bespoke drawers, wardrobes, and custom-made mirrored walls. The room also benefits from a stylish en suite bathroom, comprising a WC, a walk-in shower, and a sleek sink with integrated vanity unit.
Another very large bedroom located at the rear of the property, offering beautiful views. This room benefits from an en-suite/walk-in wardrobe area, complete with fitted wardrobes and drawers. Additionally, there is a stylish three-piece bathroom suite, including a shower cubicle.
A lovely, bright bedroom located at the rear of the property, overlooking the garden. The room features fitted wardrobes and drawers, providing ample storage space.
Another spacious bedroom located at the front of the property, featuring fitted wardrobes and drawers for convenient storage.
A lovely family bathroom featuring a double sink vanity unit, a large free-standing bath, a walk-in shower cubicle, and a WC. A frosted window to the side allows natural light to fill this generously sized room while maintaining privacy.
Located on the second floor is a spacious and bright bedroom, featuring two Velux windows and a side-facing window that flood the room with natural light. This room also benefits from extensive eaves storage, easily accessible and ideal for additional storage needs.
This bedroom mirrors Bedroom 5, featuring two Velux windows and a side window that provide plenty of natural light. Currently used as a games room, it also benefits from generous eaves storage, just like the adjoining room.
A bright bathroom comprising a WC, sink, and shower cubicle.
The pin shows the exact address of the property
Energy Efficiency Rating
Very energy efficient - lower running costs
Not energy efficient - higher running costs
Current
N/APotential
N/ACO2 Rating
Very energy efficient - lower running costs
Not energy efficient - higher running costs
