This calculator provides a guide to the amount of residential stamp duty you may pay and does not guarantee this will be the actual cost. This calculation is based on the Stamp Duty Land Tax Rates for residential properties purchased from 23rd September 2022 and second homes from 31st October 2024. For more information on Stamp Duty Land Tax, click here.



















4 bedroom Detached House for sale, Gaol Butts, Eccleshall, Staffordshire, ST21
Features and Description
- FANTASTIC OPPORTUNITY TO DEVELOP
- 4 BEDROOM APARTMENT TO LIVE IN WHILE DOING THE WORK
- EPC GRADE = E
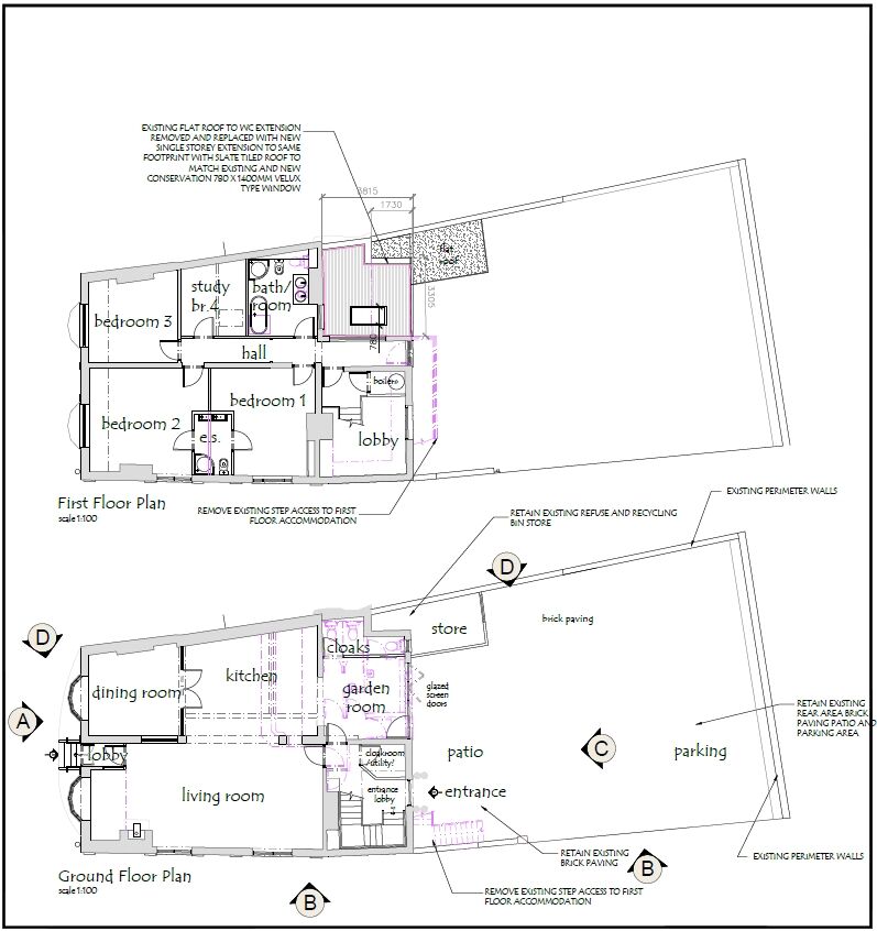
Welcome to the former Eagle Inn, nestled in the vibrant heart of Eccleshall Town Centre—a promising opportunity for conversion into a charming 4-bedroom family residence. With planning consent granted in October 2024, the potential to transform this historic pub into your dream home is at your fingertips. Imagine living in the spacious upstairs apartment while renovations unfold downstairs, giving you the perfect blend of convenience and creative freedom.
The property currently boasts a generous main bar area, complete with a bar and cellar, as well as essential toilet facilities on the ground floor. Ascend to the upper level, where you'll find a comfortable 3-bedroom living space featuring a welcoming kitchen-diner and a cozy lounge—ideal for family gatherings or peaceful evenings in.
Step outside to discover a wonderfully sized rear garden, thoughtfully paved for easy parking and minimal maintenance, making it a perfect spot for outdoor relaxation or play. This is a unique chance to breathe new life into a beloved local landmark. Don’t miss your opportunity to make this property your own—envision the possibilities and start your journey today!
EPC AWAITING
COUNCIL TAX BAND- A
Porch
1.14mx1.03m
Welcome to a remarkable opportunity at the historic Eagle Inn, where charm meets modern potential! Step inside through the inviting original porch, adorned with full-height glass-panelled doors that usher you into the heart of the property.
Main Bar Area
9.52mx9.31m
Once the vibrant main bar area, this bright and airy space is ideal for entertaining, boasting generous room for gatherings and relaxation. With granted planning permission in place, the design transforms this area into a sun-drenched living room, with double doors leading you into the front reception room, currently featuring a classic pool table. Once completed, this area will seamlessly connect to...
Bar
4.95mx2.45m
A newly envisioned kitchen that's perfect for culinary enthusiasts. Replacing the original bar area opening the space up for entertaining and relaxing. The kitchen will offer direct access to an elegant garden room—a perfect retreat for morning coffee or evening relaxation.
Hall
2.43mx3.52m
The rear hallway currently provides access to the rear of the property, the toilet facilities and the cellar. The approved plans will incorporate this area into the new garden room.
Cellar
4.5mx3.52m
Currently serving as a cellar, the area is poised for renovation under the approved plans. These plans account for a graceful U-shaped staircase that leads you seamlessly to the first floor. The design includes a convenient cloakroom/utility room, complete with a door that opens directly onto the inviting patio area, creating an ideal flow for indoor-outdoor living. From here, you'll also have easy access to the beautifully appointed living and garden rooms, making this an exceptional setting for both entertaining and relaxation.
WC Facilities
3.35mx3.32m
Behind the current bar area is the accessible toilet facilities, this space is primed for transformation. With approved planning consent in hand, you can replace the existing structure with a charming single-storey extension. Envision a beautifully designed garden room that offers both functionality and aesthetic appeal, complete with a convenient W.C.
Kitchen / Diner
4.57mx3.52m
This charming home features a fully fitted, well-equipped kitchen complete with a cozy dining area, ideal for family meals or entertaining friends. Boasting matching base and eye-level units, the kitchen offers ample storage and a sleek work surface perfect for culinary creativity. An inset sink with a modern mixer tap ensures both functionality and ease of use. What truly sets this property apart is the approved plan to relocate the kitchen downstairs, transforming this vibrant space into an inviting lobby landing. You would also be able to enjoy the luxury of fully living upstairs while any ground floor renovations are carried out.
Hallway
1.38mx9.23m
Currently accessed via an external staircase to the rear of the property. Imagine ascending to the first floor from the current cellar, where you’ll find a convenient boiler cupboard perfectly situated for easy access, along with entry into the existing hallway. This layout not only enhances functionality but also provides a seamless flow throughout the property, making it an ideal canvas for your dream home.
Lounge
4.69mx4.53m
This charming property features an existing first-floor lounge that is poised to undergo a magnificent transformation into a luxurious master bedroom, thanks to the approved planning consent. Envision a sophisticated jack-and-jill en-suite bathroom that will seamlessly connect the newly created master bedroom with the original Bedroom 1, now beautifully redefined as Bedrooms 1 and 2.
Bedroom 1
4.86mx4.47m
Welcome to a thoughtfully redesigned space that transforms Bedroom 1 into a spacious Bedroom 2, offering both comfort and functionality. This incredible room provides seamless access to a stylish Jack-and-Jill bathroom, perfect for family living or hosting guests. With dual aspect windows framing charming views of both the front and side of the property, natural light floods the room, creating an inviting and airy atmosphere.
Bedroom 2
3.82mx3.31m
Under the approved plans, Bedroom 2 is transformed into a spacious double Bedroom 3, featuring a beautifully sloped ceiling that adds a whimsical touch to the room's character without compromising on space. This well-appointed bedroom perfectly blends style and comfort, making it an ideal retreat for relaxation or restful nights. Whether you envision it as a guest room, a child's sanctuary, or a serene home office, this uniquely designed space is sure to meet your needs while enhancing the overall appeal of your home.
Bedroom 3
3.03mx2.8m
Discover the versatility of this remarkable property featuring a current Bedroom 3 that holds tremendous potential for transformation. With planning consent already in place, this light-filled space can easily be converted into a spacious fourth bedroom, perfect for guests or family. Its generous dimensions provide ample room for a comfortable small double bed, making it an inviting retreat. Alternatively, this adaptable space can serve as an excellent study, ideal for those working from home or seeking a productive workspace.
Bathroom
3.53mx2.63m
Step into this generously sized modern bathroom that perfectly blends style and functionality. Featuring a well-appointed four-piece suite, it includes a sleek panel bath for relaxation, a low-level flush WC for convenience, and a stylish pedestal wash hand basin that adds a touch of elegance. The separate shower cubicle offers a refreshing escape for those busy mornings or post-work unwinds. With existing planning consent, this spacious bathroom holds the potential to become a striking focal point of the property, allowing you to personalize and enhance its features.
Rear
This remarkable property boasts an exceptionally generous plot, offering more space than most homes in off the high street. Step outside to discover a spacious rear garden, currently flagged for easy maintenance, which not only enhances the aesthetic appeal but also provides ample parking opportunities for you and your guests. With a planning application in place for three designated parking spaces, this home presents a perfect blend of convenience and potential.
Planning Permission
Planning application number: 24/38718/FULPlanning application link: https://www12.staffordbc.gov.uk/online-applications/applicationDetails.do?activeTab=summary&keyVal=S8FO1FPSJML00
IMPORTANT NOTE TO POTENTIAL PURCHASERS:
We endeavour to make our particulars accurate and reliable, however, they do not constitute or form part of an offer or any contract and none is to be relied upon as statements of representation or fact. The services, systems and appliances listed in this specification have not been tested by us and no guarantee as to their operating ability or efficiency is given. All photographs and measurements have been taken as a guide only and are not precise. Floor plans where included are not to scale and accuracy is not guaranteed. If you require clarification or further information on any points, please contact us, especially if you are travelling some distance to view. Fixtures and fittings other than those mentioned are to be agreed with the seller.
Gaol Butts, Eccleshall, Staffordshire, ST21

Additional Information
-
Property refECC240191
-
TenureFreehold
-
Council TaxA
-
Local authorityStafford Borough Council

Similar properties for sale by Reeds Rains Eccleshall

This charming home features a fully fitted, well-equipped kitchen complete with a cozy dining area, ideal for family meals or entertaining friends. Boasting matching base and eye-level units, the kitchen offers ample storage and a sleek work surface perfect for culinary creativity. An inset sink with a modern mixer tap ensures both functionality and ease of use. What truly sets this property apart is the approved plan to relocate the kitchen downstairs, transforming this vibrant space into an inviting lobby landing. You would also be able to enjoy the luxury of fully living upstairs while any ground floor renovations are carried out.


Currently accessed via an external staircase to the rear of the property. Imagine ascending to the first floor from the current cellar, where you’ll find a convenient boiler cupboard perfectly situated for easy access, along with entry into the existing hallway. This layout not only enhances functionality but also provides a seamless flow throughout the property, making it an ideal canvas for your dream home.

This charming property features an existing first-floor lounge that is poised to undergo a magnificent transformation into a luxurious master bedroom, thanks to the approved planning consent. Envision a sophisticated jack-and-jill en-suite bathroom that will seamlessly connect the newly created master bedroom with the original Bedroom 1, now beautifully redefined as Bedrooms 1 and 2.


Welcome to a thoughtfully redesigned space that transforms Bedroom 1 into a spacious Bedroom 2, offering both comfort and functionality. This incredible room provides seamless access to a stylish Jack-and-Jill bathroom, perfect for family living or hosting guests. With dual aspect windows framing charming views of both the front and side of the property, natural light floods the room, creating an inviting and airy atmosphere.

Under the approved plans, Bedroom 2 is transformed into a spacious double Bedroom 3, featuring a beautifully sloped ceiling that adds a whimsical touch to the room's character without compromising on space. This well-appointed bedroom perfectly blends style and comfort, making it an ideal retreat for relaxation or restful nights. Whether you envision it as a guest room, a child's sanctuary, or a serene home office, this uniquely designed space is sure to meet your needs while enhancing the overall appeal of your home.

Discover the versatility of this remarkable property featuring a current Bedroom 3 that holds tremendous potential for transformation. With planning consent already in place, this light-filled space can easily be converted into a spacious fourth bedroom, perfect for guests or family. Its generous dimensions provide ample room for a comfortable small double bed, making it an inviting retreat. Alternatively, this adaptable space can serve as an excellent study, ideal for those working from home or seeking a productive workspace.

Step into this generously sized modern bathroom that perfectly blends style and functionality. Featuring a well-appointed four-piece suite, it includes a sleek panel bath for relaxation, a low-level flush WC for convenience, and a stylish pedestal wash hand basin that adds a touch of elegance. The separate shower cubicle offers a refreshing escape for those busy mornings or post-work unwinds. With existing planning consent, this spacious bathroom holds the potential to become a striking focal point of the property, allowing you to personalize and enhance its features.

This remarkable property boasts an exceptionally generous plot, offering more space than most homes in off the high street. Step outside to discover a spacious rear garden, currently flagged for easy maintenance, which not only enhances the aesthetic appeal but also provides ample parking opportunities for you and your guests. With a planning application in place for three designated parking spaces, this home presents a perfect blend of convenience and potential.









The pin shows the exact address of the property
Energy Efficiency Rating
Very energy efficient - lower running costs
Not energy efficient - higher running costs
Current
N/APotential
N/ACO2 Rating
Very energy efficient - lower running costs
Not energy efficient - higher running costs