This calculator provides a guide to the amount of residential stamp duty you may pay and does not guarantee this will be the actual cost. This calculation is based on the Stamp Duty Land Tax Rates for residential properties purchased from 23rd September 2022 and second homes from 31st October 2024. For more information on Stamp Duty Land Tax, click here.
4 bedroom Detached House for sale, Ratten Row, Seamer, North Yorkshire, YO12
Features and Description
- Four Detached
- Council Tax Band D
- Two Reception Rooms
- Gardens
- Garage
- Oil Heating
Main Description
Located in the popular Village of Seamer is this very well presented four bedroom detached home. The property has spacious accommodation making this an ideal family home. Seamer is a sought after village for a range of reasons, including the comprehensive range of amenities which are on offer; a supermarket, sought after Primary School and Public Houses/Eateries, there are good transport links with buses to Scarborough Town Centre, Seamer Train Station and good access to the A64. The property in brief comprises: Entrance hall, living, dining room, kitchen and a separate WC the ground floor. To the first floor and located four bedrooms and a bathroom. Outside is a front garden lawned garden and to the rear a generous sized garden, access to the garage and parking for two cars. The property is fully double glazed and Oil centrally heated. Viewings are highly recommended and can be made through our office.
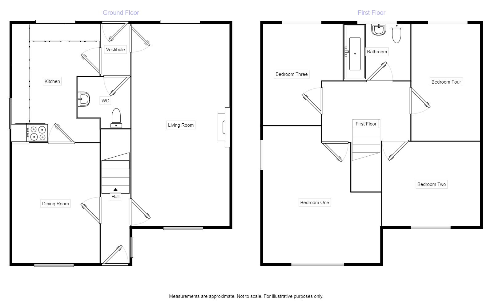
Ground Floor
Entrance Hall
Entrance to the property is gained via a double glazed door to the front elevation leading to a hallway. Double glazed window to the side elevation and a radiator. Doors leading to: the living room and dining room. Stairs leading to the first floor landing.
Living Room 21 ft 9 x 10 ft 7
A spacious duel aspect living room with double glazed windows to the front and rear elevation. Stone fireplace with an inset wood burner. Two radiators. Door leading to a rear vestibule.
Rear Vestibule
Double glazed door to the rear elevation leading to the garden. Door leading to the kitchen and ground floor WC.
Separate WC
Comprised of a two piece suite which includes: low level WC and a wash hand basin. Radiator.
Dining Room 12 ft 3 x 9 ft 3
Double glazed window to the front elevation. Radiator. Door leading to the kitchen.
Kitchen 12 ft 3 x 9 ft 3 - Max
A modern style kitchen offering a range of wood effect wall and base units with contrasting work top surface areas with tiled splash backs and incorporating an inset sink unit. Electric oven and induction hob with an extractor over. Space for a fridge / freezer, washing machine and a dishwasher. Floor mounted Oil boiler. Tiled effect flooring and a radiator.
First Floor
First Floor Landing
Doors leading to:
Bedroom One 16 ft 3 - Max x 12 ft 7
A generous sized double bedroom with a double glazed window to the front and side elevation. Radiator.
Bedroom Two 10 ft 7 x 9 ft 10
A double bedroom with a double glazed window to the front elevation. Radiator.
Bedroom Three 8 ft 7 x 7 ft 8
Double glazed window to the rear elevation. Radiator.
Bedroom Four 11 ft 2 x 6 ft 7
Double glazed window to the rear elevation. Radiator.
Bathroom
Comprised of modern three piece suite which includes: panelled bath with a shower over, wash hand basin and a low level WC. Part tiled walls and a radiator. Double glazed window.
Externally
Front: A well presented garden laid mainly to lawn with an arrangement of trees and shrubs. Access to the rear garden by both side. Rear: A generous sized attractive garden offers an arrangement of flowers, trees and shrubs. Fenced borders, greenhouse and parking for two motor vehicles. Access to the garage.
Garage
A detached single garden with an up and over door. Power and lighting.
Entrance Hall
Entrance to the property is gained via a double glazed door to the front elevation leading to a hallway. Double glazed window to the side elevation and a radiator. Doors leading to: the living room and dining room. Stairs leading to the first floor landing.
Living Room
21 ft 9 x 10 ft 7
A spacious duel aspect living room with double glazed windows to the front and rear elevation. Stone fireplace with an inset wood burner. Two radiators. Door leading to a rear vestibule.
Rear Vestibule
Double glazed door to the rear elevation leading to the garden. Door leading to the kitchen and ground floor WC.
Separate WC
Comprised of a two piece suite which includes: low level WC and a wash hand basin. Radiator.
Dining Room
12 ft 3 x 9 ft 3
Double glazed window to the front elevation. Radiator. Door leading to the kitchen.
Kitchen
12 ft 3 x 9 ft 3 - Max
A modern style kitchen offering a range of wood effect wall and base units with contrasting work top surface areas with tiled splash backs and incorporating an inset sink unit. Electric oven and induction hob with an extractor over. Space for a fridge / freezer, washing machine and a dishwasher. Floor mounted Oil boiler. Tiled effect flooring and a radiator.
First Floor Landing
Doors leading to:
Bedroom 1
16 ft 3 - Max x 12 ft 7
A generous sized double bedroom with a double glazed window to the front and side elevation. Radiator.
Bedroom 2
10 ft 7 x 9 ft 10
A double bedroom with a double glazed window to the front elevation. Radiator.
Bedroom 3
8 ft 7 x 7 ft 8
Double glazed window to the rear elevation. Radiator.
Bedroom 4
11 ft 2 x 6 ft 7
Double glazed window to the rear elevation. Radiator.
Bathroom
Comprised of modern three piece suite which includes: panelled bath with a shower over, wash hand basin and a low level WC. Part tiled walls and a radiator. Double glazed window.
Externally
Front:A well presented garden laid mainly to lawn with an arrangement of trees and shrubs. Access to the rear garden by both side.Rear:A generous sized attractive garden offers an arrangement of flowers, trees and shrubs. Fenced borders, greenhouse and parking for two motor vehicles. Access to the garage.
Garage
A detached single garden with an up and over door. Power and lighting.
IMPORTANT NOTE TO POTENTIAL PURCHASERS:
We endeavour to make our particulars accurate and reliable, however, they do not constitute or form part of an offer or any contract and none is to be relied upon as statements of representation or fact. The services, systems and appliances listed in this specification have not been tested by us and no guarantee as to their operating ability or efficiency is given. All photographs and measurements have been taken as a guide only and are not precise. Floor plans where included are not to scale and accuracy is not guaranteed. If you require clarification or further information on any points, please contact us, especially if you are travelling some distance to view. Fixtures and fittings other than those mentioned are to be agreed with the seller.
Ratten Row, Seamer, North Yorkshire, YO12
Additional Information
-
Property refSCA180078
-
TenureFreehold
-
Council TaxD
Similar properties for sale by Reeds Rains Scarborough
The pin shows the exact address of the property
Energy Efficiency Rating
Very energy efficient - lower running costs
Not energy efficient - higher running costs
Current
N/APotential
N/ACO2 Rating
Very energy efficient - lower running costs
Not energy efficient - higher running costs
