This calculator provides a guide to the amount of residential stamp duty you may pay and does not guarantee this will be the actual cost. This calculation is based on the Stamp Duty Land Tax Rates for residential properties purchased from 23rd September 2022 and second homes from 31st October 2024. For more information on Stamp Duty Land Tax, click here.
3 bedroom Detached House for sale, The Garstons, Portishead, Bristol, BS20
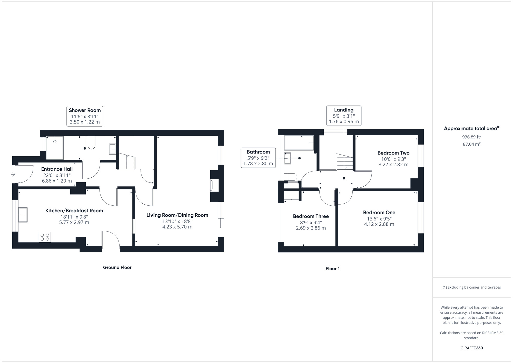
Features and Description
- Fantastic Extended Detached Home
- Three Generously Sized Bedrooms
- Stunning Kitchen/Breakfast Room
- Two Bathrooms
- Lovely Views Across The Gordano Valley
- Off Street Parking & Garage
- EPC Rating D & Council Tax Band D
- Tenure: Freehold
Reeds Rains are delighted to present this fantastic extended detached home. Located a short distance away from Portishead's popular High Street and Gordano Secondary School, the home really appeals to a wide audience. On the ground floor, the home benefits from a stunning kitchen/breakfast room with integrated appliances, a modern fitted shower room and a large living/dining room. Upstairs, the property has three generously sized bedrooms, two of which have lovely views across the Gordano Valley, the first floor is then finished off with the three-piece bathroom suite. Externally, the rear garden which is accessed via the living/dining room, has a patio seating area and vegetable patch, making it a delightful space to spend time in. To the front of the property, there is a low maintenance front garden, driveway and single garage.
Material Information
Mains ElectricityMains DrainageMains WaterOff Street Parking & GarageGas Central HeatingStandard Construction Broadband - Ultrafast Broadband available with highest available download speed 1800 Mbps and highest available upload speed 120 Mbps. This information is sourced via www.openreach.com/fibre-broadband, we advise you make your own enquires.Mobile Signal/coverageThere is 'Limited / Likely' coverage for mobile signal in this area, please check with your provider if this will be available to you. For an indication of coverage in the area, we recommend that you check the Ofcom checker. https://checker.ofcom.org.uk/en-gb/mobile-coverage#pc=BS217YF&uprn=24134601
IMPORTANT NOTE TO POTENTIAL PURCHASERS:
We endeavour to make our particulars accurate and reliable, however, they do not constitute or form part of an offer or any contract and none is to be relied upon as statements of representation or fact. The services, systems and appliances listed in this specification have not been tested by us and no guarantee as to their operating ability or efficiency is given. All photographs and measurements have been taken as a guide only and are not precise. Floor plans where included are not to scale and accuracy is not guaranteed. If you require clarification or further information on any points, please contact us, especially if you are travelling some distance to view. Fixtures and fittings other than those mentioned are to be agreed with the seller.
The Garstons, Portishead, Bristol, BS20
 
        Additional Information
- 
                    Property refPOR230064
- 
                    EPCD
- 
                    TenureFreehold
- 
                    Council TaxD
- 
                    Local authorityNorth Somerset Council
 
        Similar properties for sale by Reeds Rains Portishead
 
         
         
         
         
         
         
         
         
         
        The pin shows the exact address of the property
Energy Efficiency Rating
Very energy efficient - lower running costs
Not energy efficient - higher running costs
Current
66Potential
81CO2 Rating
Very energy efficient - lower running costs
Not energy efficient - higher running costs

 
         
         
         
         
         
         
        