This calculator provides a guide to the amount of residential stamp duty you may pay and does not guarantee this will be the actual cost. This calculation is based on the Stamp Duty Land Tax Rates for residential properties purchased from 23rd September 2022 and second homes from 31st October 2024. For more information on Stamp Duty Land Tax, click here.
4 bedroom Detached House for sale, Walton Road, Clevedon, North Somerset, BS21
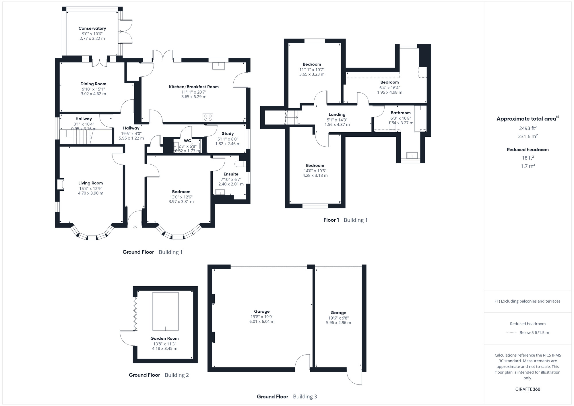
Features and Description
- Highly Deceptive Extended Family Home
- Four Bedrooms with Ensuite to the Master Bedroom
- Double and Single Garages
- Spacious Living Room and Separate Dining Room
- Kitchen/Breakfast Room and Conservatory
- Double Glazed and Gas Centrally Heated
- Generous and Well Maintained Rear Garden
- Council Tax Band E
- EPC Rating C
Nestled within the Swiss Valley this impressive detached four bedroom house offers a perfect blend of modern comfort and traditional character. The property has been transformed by the current owners to provide a generous hall, cloakroom/wc, bay fronted living room with woodburning stove, separate dining room, a spacious kitchen with sitting area, a conservatory that lets in plenty of natural light, a home office, ensuite to the master bedroom and family bathroom.
Outside a double and single garage sit at the end of the well maintained rear garden and the garden room comes with a hot tub. Additional off street parking can be found at the front of the home.
This property has the potential for dual occupancy or a home for the family to grow into. Contact us today to arrange a viewing.
Additional Information
Mains Electricity/Mains Drainage/Mains WaterBroadband -Full Fibre Broadband download speed 1600 Mbps and upload speed 115 Mbps, Fibre to Cabinet download speed 76 Mbps and upload speed 15 Mbps and Copper broadband download speed 21 Mbps and upload speed 1 Mbps.This information is sourced via www.openreach.com/fibre-broadband, we advise you make your own enquires.Mobile Signal/coverageThere is average coverage for mobile signal in this area, please check with your provider if this will be available to you. For an indication of coverage in the area, we recommend that you check the Ofcom checker. https://checker.ofcom.org.uk/en-gb/mobile-coverageConstruction, taken from EPC: Wall, Cavity wall, filled cavity. Roof Pitched, 125 mm loft insulation, Roof room(s), insulated (assumed).
IMPORTANT NOTE TO POTENTIAL PURCHASERS:
We endeavour to make our particulars accurate and reliable, however, they do not constitute or form part of an offer or any contract and none is to be relied upon as statements of representation or fact. The services, systems and appliances listed in this specification have not been tested by us and no guarantee as to their operating ability or efficiency is given. All photographs and measurements have been taken as a guide only and are not precise. Floor plans where included are not to scale and accuracy is not guaranteed. If you require clarification or further information on any points, please contact us, especially if you are travelling some distance to view. Fixtures and fittings other than those mentioned are to be agreed with the seller.
Walton Road, Clevedon, North Somerset, BS21
Additional Information
-
Property refCLV250377
-
EPCC
-
TenureFreehold
-
Council TaxE
-
Local authorityNorth Somerset Council
Similar properties for sale by Reeds Rains Clevedon
The pin shows the exact address of the property
Energy Efficiency Rating
Very energy efficient - lower running costs
Not energy efficient - higher running costs
Current
74Potential
83CO2 Rating
Very energy efficient - lower running costs
Not energy efficient - higher running costs
