This calculator provides a guide to the amount of residential stamp duty you may pay and does not guarantee this will be the actual cost. This calculation is based on the Stamp Duty Land Tax Rates for residential properties purchased from 23rd September 2022 and second homes from 31st October 2024. For more information on Stamp Duty Land Tax, click here.
3 bedroom End Terrace House for sale, Imperial Way, Hull, East Yorkshire, HU9
Features and Description
- VIEW THE VIRTUAL TOUR of this stylish and immaculately maintained three-bedroom, two-bathroom home—offering modern design, comfort, and convenience in a sought-after HU9 location.
- Built in 2023 by Strata Homes to the Sophia design and enhanced with upgrades by the current owners, this property is presented in pristine, better-than-new condition.
- It features double-glazed windows and radiators in every room and remains under the builder’s warranty.
- Inside, a spacious entrance hall with laminate flooring leads to a smartly appointed cloakroom.
- The front-facing kitchen-diner includes sleek grey units, integrated Bosch appliances, and a dining area filled with natural light. To the rear, the bright sitting room opens through French doors to a sunny, south-west facing garden.
- Upstairs, the principal bedroom benefits from an en-suite shower room. Two further bedrooms and a contemporary family bathroom complete the layout. All rooms are double-glazed and centrally heated.
- The exterior offers a two-car driveway with an EV charging point and an enclosed rear garden.
- Council Tax Band B (Kingston Upon Hull Council)
- EPC Rating B
VIEW THE VIRTUAL TOUR of this beautifully styled and impeccably maintained three-bedroom, two-bathroom home. Offering a flawless blend of design, comfort, and convenience!
Completed in 2023 by the highly regarded Strata Homes and built to the popular Sophia house type, the property has been further enhanced by the current owners with a host of thoughtful upgrades, elevating it well beyond the original specification. The result is a home of exceptional quality—pristine both inside and out.
Positioned within a recently completed development off Preston Road in Hull’s HU9 district, this property forms part of a wider regeneration project that has truly set the standard for others in the area. The location offers a sense of community alongside excellent connectivity and a refreshing modern aesthetic.
From the moment you arrive, the stylish contemporary façade, complete with anthracite grey windows and a smart composite entrance door, gives a strong first impression. An EV charging point on the driveway is a welcome addition for future-proofed living.
Inside, the entrance hall sets the tone with its clean lines, generous proportions, and sleek laminate flooring that runs seamlessly throughout the ground floor. Practical built-in storage and a well-appointed cloakroom with modern fittings and ceramic tiling complete this welcoming space.
To the rear, a light-filled sitting room opens through French doors onto a south-west facing garden, offering a private and sunny retreat for relaxing or entertaining. The adjacent kitchen-diner is a masterclass in modern design, featuring stylish grey cabinetry, complementary worktops, and high-quality integrated appliances including a dishwasher, washing machine, and Bosch cooking suite.
Upstairs, a central landing leads to three well-sized bedrooms. The principal bedroom enjoys the added luxury of its own en-suite shower room, while the main family bathroom is finished to the same impeccable standard as the rest of the home.
Externally, a private driveway provides two parking spaces, and the entire home remains under the builder’s warranty, offering peace of mind. With every essential already in place—from flooring and appliances to tasteful décor—this property is not just move-in ready, but genuinely better than new.
Perfectly suited to first-time buyers, professionals, or young families looking for a stylish, low-maintenance home in a well-connected area, this is a rare opportunity to secure a truly turnkey property.
The home is freehold.
Council Tax Band: B (Kingston Upon Hull Council)
EPC Rating: B
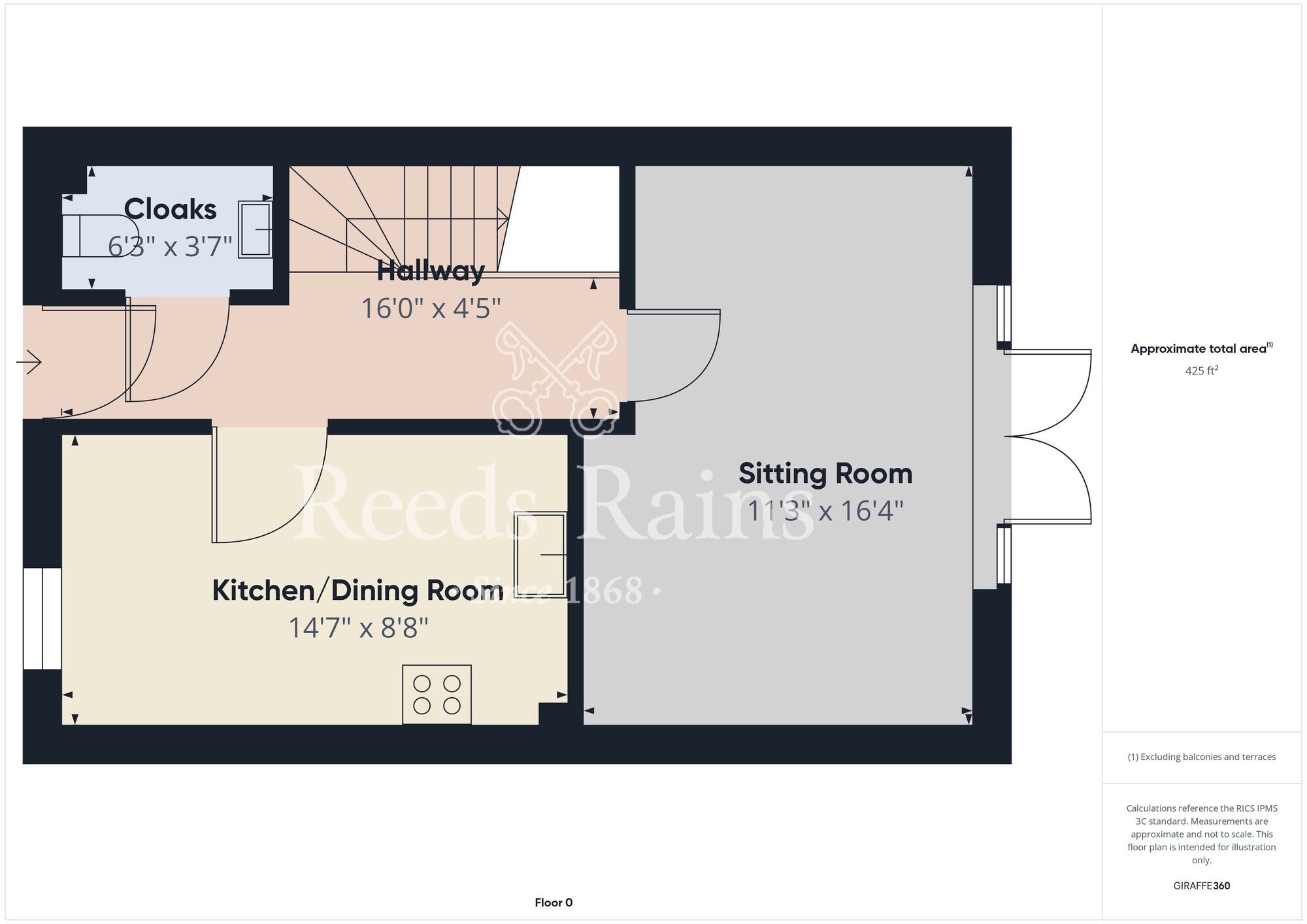
Entrance Hall
Accessed from the front through a smart double-glazed composite entrance door. A wide and welcoming entrance hall sets the tone for the rest of the home spanning 16 feet in length. Finished with sleek laminate flooring and clean white walls, this space benefits from a built-in storage cupboard and access to the ground floor cloakroom. A radiator provides warmth and completes this bright and functional arrival space.
Cloakroom
6'3" x 3'7" (1.90m x 1.10m)
Conveniently positioned off the hallway, the downstairs cloakroom is finished to a high standard with modern fittings, ceramic wall tiling, and a contemporary wash basin and WC. Laminate floor covering. Radiator.
Sitting Room
16'4" x 11'3" (4.98m x 3.43m)
Located to the rear of the property, the spacious sitting room is bathed in natural light thanks to French doors and full-height double-glazed windows that open directly onto the south-west facing rear garden. The room is elegantly finished with matching laminate flooring and neutral décor, offering the perfect backdrop for relaxing or entertaining. A wall-mounted radiator ensures year-round comfort.
Kitchen / Dining Room
14'7" x 8'8" (4.45m x 2.64m)
The front-facing kitchen-diner is a standout space, beautifully designed with sleek grey cabinetry, matching worktops, and a full suite of integrated appliances—including a Bosch oven and hob, integrated dishwasher, washing machine, and extractor. Ample room is provided for dining, and a large double-glazed window brings in plenty of natural light. Finished with the same stylish laminate flooring, this space is ideal for both casual meals and entertaining. A radiator completes the space. Laminate floor covering.
Landing
The central landing connects all three bedrooms and the family bathroom. This space includes a built-in storage cupboard and access to the loft.
Principal Bedroom
12'1" x 9'11" (3.68m x 3.02m)
The main bedroom offers generous proportions and a peaceful retreat. A rear facing double-glazed window fills the room with natural light, while the space easily accommodates a large bed and additional furniture. The bedroom includes a radiator and benefits from it's own luxurious en-suite shower room.
En-Suite
7'6" x 3'10" (2.29m x 1.17m)
Beautifully appointed with modern ceramic tiling, a large glass-fronted shower enclosure with a 'Drench' shower unit, wash hand basin, and WC, the en-suite is a practical yet stylish feature. A frosted double-glazed window faces the rear and provides light and privacy while a radiator ensures warmth and comfort.
Bedroom 2
10'0" x 8'6" (3.05m x 2.60m)
A well-proportioned bedroom located at the front with a double-glazed window and a radiator, this room makes an ideal guest bedroom, children’s room, or home office.
Bedroom 3
7'4" x 6'4" (2.24m x 1.93m)
Currently used as a single bedroom or study, this room also enjoys front facing double-glazed window. A radiator is fitted, making it a warm and versatile space.
House Bathroom
7'10" x 5'6" (2.40m x 1.68m)
Finished to the same exacting standard as the rest of the home, the family bathroom includes a modern three-piece suite with a panelled bath, wash basin, and WC. Ceramic wall tiling. A tall heated towel rail ensures comfort.
Double Width Driveway
To the front, a dedicated driveway provides off-street parking for two vehicles and includes an electric vehicle charging point. Side path where a timber gate leads into the rear garden.
Rear Garden
Accessed via French doors from the sitting room, is south-west facing, offering a sun-drenched space ideal for outdoor living and relaxation. The garden is securely enclosed and neatly landscaped for low-maintenance enjoyment. Patio terrace for seating and lawn. Sizeable garden shed.
Agent's Note
To fulfil the obligation to share material information, please follow the web link where you'll find a comprehensive document containing key facts for buyers, providing valuable insights related to the property that you'll undoubtedly find useful.
Agent's Note 2
HMRC is a supervisory body for money laundering regulations, of which all estate agents need to be registered. As part of this, there are multiple requirements that agents must rigorously and consistently meet to ensure they stay compliant with the regulations and protect their clients. To do this, we use an identity verification service, approved by the Government as part of the Digital Identity and Attributes Trust Framework (DIATF). This method and the process we follow to ensure compliance for your transaction come with significant time, financial and legal implications hence a portion of this is passed on. We elected for this verification process due to the speed, certainty, and accuracy it delivers. This helps us to protect all our client's interests by using the most advanced verification process to help prevent the impacts of money laundering alongside our internal manual policies and procedures while staying compliant with HMRC.
Agent's Note Two Continued
The administrative charge for this process is £40 plus VAT for a sole purchaser, £65 plus VAT for two purchasers and £75 plus VAT three or more purchasers.
IMPORTANT NOTE TO POTENTIAL PURCHASERS:
We endeavour to make our particulars accurate and reliable, however, they do not constitute or form part of an offer or any contract and none is to be relied upon as statements of representation or fact. The services, systems and appliances listed in this specification have not been tested by us and no guarantee as to their operating ability or efficiency is given. All photographs and measurements have been taken as a guide only and are not precise. Floor plans where included are not to scale and accuracy is not guaranteed. If you require clarification or further information on any points, please contact us, especially if you are travelling some distance to view. Fixtures and fittings other than those mentioned are to be agreed with the seller.
Imperial Way, Hull, East Yorkshire, HU9

Additional Information
-
Property refHUL250568
-
EPCB
-
TenureFreehold
-
Council TaxB
-
Local authorityHull City Council


Accessed from the front through a smart double-glazed composite entrance door. A wide and welcoming entrance hall sets the tone for the rest of the home spanning 16 feet in length. Finished with sleek laminate flooring and clean white walls, this space benefits from a built-in storage cupboard and access to the ground floor cloakroom. A radiator provides warmth and completes this bright and functional arrival space.



Conveniently positioned off the hallway, the downstairs cloakroom is finished to a high standard with modern fittings, ceramic wall tiling, and a contemporary wash basin and WC. Laminate floor covering. Radiator.

Located to the rear of the property, the spacious sitting room is bathed in natural light thanks to French doors and full-height double-glazed windows that open directly onto the south-west facing rear garden. The room is elegantly finished with matching laminate flooring and neutral décor, offering the perfect backdrop for relaxing or entertaining. A wall-mounted radiator ensures year-round comfort.




The front-facing kitchen-diner is a standout space, beautifully designed with sleek grey cabinetry, matching worktops, and a full suite of integrated appliances—including a Bosch oven and hob, integrated dishwasher, washing machine, and extractor. Ample room is provided for dining, and a large double-glazed window brings in plenty of natural light. Finished with the same stylish laminate flooring, this space is ideal for both casual meals and entertaining. A radiator completes the space. Laminate floor covering.




A well-proportioned bedroom located at the front with a double-glazed window and a radiator, this room makes an ideal guest bedroom, children’s room, or home office.


Currently used as a single bedroom or study, this room also enjoys front facing double-glazed window. A radiator is fitted, making it a warm and versatile space.

Accessed via French doors from the sitting room, is south-west facing, offering a sun-drenched space ideal for outdoor living and relaxation. The garden is securely enclosed and neatly landscaped for low-maintenance enjoyment. Patio terrace for seating and lawn. Sizeable garden shed.














The pin shows the exact address of the property
Energy Efficiency Rating
Very energy efficient - lower running costs
Not energy efficient - higher running costs
Current
84Potential
96CO2 Rating
Very energy efficient - lower running costs
Not energy efficient - higher running costs