This calculator provides a guide to the amount of residential stamp duty you may pay and does not guarantee this will be the actual cost. This calculation is based on the Stamp Duty Land Tax Rates for residential properties purchased from 23rd September 2022 and second homes from 31st October 2024. For more information on Stamp Duty Land Tax, click here.
5 bedroom House for sale, Moorland Place, Stanley, West Yorkshire, WF3
Features and Description
- Approximately An Acre Of Land With Private Access
- Annex Bungalow & Summer House
- Five Double Bedrooms
- Modern & Well Presented Throughout
- Double Garage & Ample Off Street Parking
Nestled in a charming village setting, this modern end of terrace house offers a perfect combination of convenience and luxury. Boasting three bedrooms, this stylish property exudes a peaceful and quiet ambiance, ideal for those seeking a serene living environment. In addition, there is an annexe bungalow that offers versatility and extra living space. The annex bungalow space offers a further two double bedrooms.
The property features a well-maintained garden and a patio, providing ample outdoor space for relaxation and entertainment. In addition, there is an annexe that offers versatility and extra living space. With off-street parking, a double garage, and an outbuilding, this home offers practicality alongside its contemporary design.
Located in a sought-after village location, this property provides easy access to local amenities and excellent transport links. Perfect for families or professionals looking for a modern and comfortable home in a picturesque setting, this property is sure to impress even the most discerning buyer.
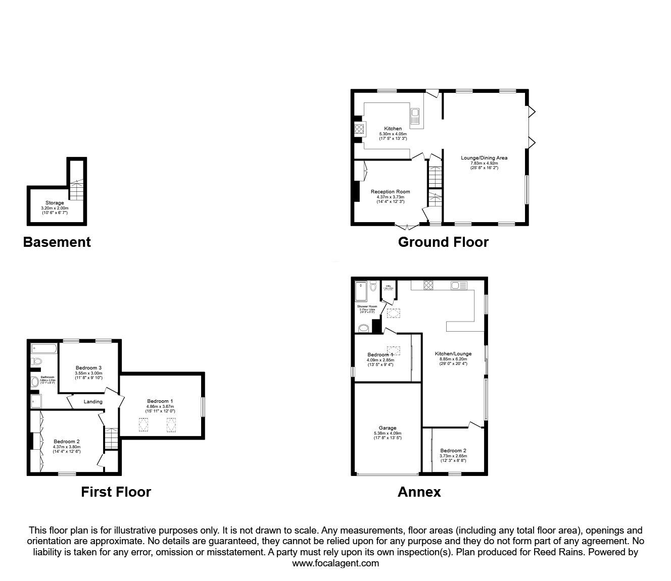
Lounge / Dining Area
25'8" x 16'2" (7.82m x 4.93m)
Substantial reception room with carpeted floor, gas central heating radiator,log burner, uPVC double glazed windows to the front side and rear elevations with a set of Bi-Folding doors leading out onto the raised decking area.
Kitchen
17'5" x 13'3" (5.30m x 4.04m)
Fitted modern kitchen with Karndean flooring briefly comprising of wall and base units with integrated sink/drainer and granite worktops. Benefitting from integrated appliances such as; two fridges, freezer, dishwasher and washing machine. There is space for a range cooker and the vendors are open to including this. With gas central heating radiator, uPVC double glazed window and composite entrance door to the rear elevation.
Reception Room
14'4" x 12'3" (4.37m x 3.73m)
Spacious reception area with Karndean floor, built in media/storage cabinet, gas central heating radiator and French doors leading out to the front of the home.
First Floor Landing
Carpeted landing space with loft access.
Bedroom 1
15'11" x 12'0" (4.85m x 3.66m)
Double bedroom with carpeted floor, eaves storage, gas central heating radiator and uPVC double glazed window overlooking the acre of garden.
Bedroom 2
14'4" x 12'6" (4.37m x 3.80m)
Double bedroom with carpeted floor,gas central heating radiator and two uPVC double glazed windows to the rear looking over farmland
Bedroom 3
11'6" x 9'10" (3.50m x 3.00m)
Double bedroom with fitted wardrobes,carpeted floor, gas central heating radiator, Storage with shower unit and uPVC double glazed window to the front elevation.
Bathroom
8'4" x 13'1" (2.53m x 3.98m)
This four piece suite benefits from Karndean flooring and briefly comprises of; bath with mixer taps, shower cubicle, wash hand basin with vanity units, low level WC, large heated towel radiator and extractor fan.
Basement
10'6" x 6'7" (3.20m x 2.00m)
Additional storage with shelving.
External
This home sits on approximately an acre of land with its own private entrance and gated entry. The land consists of spacious lawn areas with well placed foliage and shrubbery throughout. The land has a variety of fruit trees including apples, plums, pears and cherries. Also offering ample off street parking with a sweeping driveway that leads to the double garage part of the Annex space.
Kitchen / Lounge
29'0" x 20'4" (8.84m x 6.20m)
Open plan living space with carpeted lounge area, two contemporary vertical radiators, log burner, full length window and set of patio doors leading out into the garden. The kitchen section has vinyl floor with uPVC double glazed window, fitted kitchen comprising of; wall and base units and quartz worktops with integrated sink. Also with integrated appliances such as oven, hob, cooker hood and dishwasher.
Bedroom 1
13'5" x 9'4" (4.10m x 2.84m)
Double bedroom with fitted wardrobes, carpeted floor, contemporary vertical radiator and uPVC double glazed window.
Bedroom 2
12'3" x 8'8" (3.73m x 2.64m)
Double bedroom with fitted wardrobes, carpeted floor, contemporary vertical radiator and uPVC double glazed window.
Shower Room
5'5" x 10'5" (1.64m x 3.17m)
This suite briefly comprises of; walk in shower unit, wash hand basin with vanity unit, low level WC and heated towel radiator.
Double Garage
17'8" x 13'5" (5.38m x 4.10m)
With electric door to the front this garage also has power and light.
Summer House
With brick base and solid insulated ceiling. This space also has water and electric.
Agents Note
To be able to purchase a property in the United Kingdom all agents have a legal requirement to conduct Identity checks on all customers involved in the transaction to fulfil their obligations under Anti Money Laundering regulations. We outsource this check to a third party and a charge will apply. Ask the branch for further details.
IMPORTANT NOTE TO POTENTIAL PURCHASERS:
We endeavour to make our particulars accurate and reliable, however, they do not constitute or form part of an offer or any contract and none is to be relied upon as statements of representation or fact. The services, systems and appliances listed in this specification have not been tested by us and no guarantee as to their operating ability or efficiency is given. All photographs and measurements have been taken as a guide only and are not precise. Floor plans where included are not to scale and accuracy is not guaranteed. If you require clarification or further information on any points, please contact us, especially if you are travelling some distance to view. Fixtures and fittings other than those mentioned are to be agreed with the seller.
Moorland Place, Stanley, West Yorkshire, WF3
Additional Information
-
Property refWAK230321
-
EPCC
-
TenureFreehold
-
Council TaxA
-
Local authorityWakefield Metropolitan District Council
Similar properties for sale by Reeds Rains Wakefield
The pin shows the exact address of the property
Energy Efficiency Rating
Very energy efficient - lower running costs
Not energy efficient - higher running costs
Current
71Potential
78CO2 Rating
Very energy efficient - lower running costs
Not energy efficient - higher running costs
