This calculator provides a guide to the amount of residential stamp duty you may pay and does not guarantee this will be the actual cost. This calculation is based on the Stamp Duty Land Tax Rates for residential properties purchased from 23rd September 2022 and second homes from 31st October 2024. For more information on Stamp Duty Land Tax, click here.
6 bedroom End Terrace House for sale, Westbourne Street, Stockton-on-Tees, Durham, TS18
Features and Description
- 6 Bedrooms
- Vestibule
- Entrance Hall
- Lounge
- Sitting Room
- Dining Room
- Kitchen
- Rear Lobby
- Internal Room
- En-Suite Shower
- Multi-Purpose Room
- Bathroom
- Outside
Step inside this delightful period end of terrace house located in within the vicinity of Stockton town centre. With 6 bedrooms, this property is perfect for a growing family or those who love to entertain. The house boasts a charming and homely feel, with modern touches throughout. The spacious layout offers plenty of room for everyone to relax and unwind. Outside, you'll find a garden. Conveniently located and chain-free, this property is ready and waiting for its new owners to make it their own. Don't miss out on the opportunity to make this inviting and comfortable house your forever home. Book a viewing today!
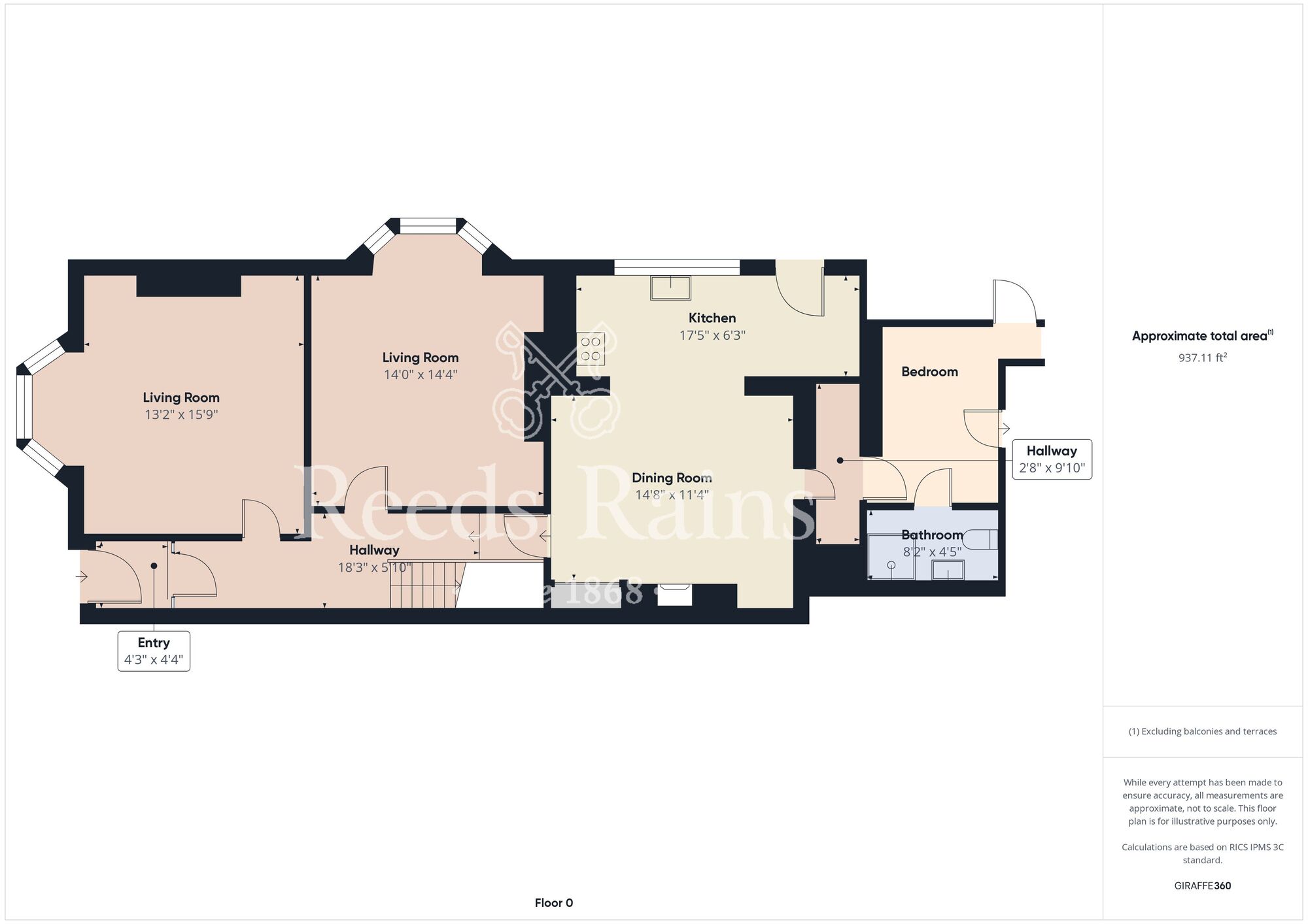
Vestibule
Upon entering this home, buyers are greeted by a vestibule, an ideal space for welcoming guests.
Entrance Hall
One of the standout features of this home is the entrance hall, featuring elegant herringbone-style flooring that adds a contemporary flair. A striking and impressive staircase ascends gracefully to the first floor.
Lounge
The first reception room is a spacious and inviting area, located at the front of the property, and is filled with natural light pouring in through the charming bay window. It offers the perfect setting for cherished family moments.
Sitting Room
The second reception room offers excellent versatility, making it ideal for various uses. Its charm is enhanced by a beautiful bay window, which provides a lovely view of the side of the property, creating a bright and welcoming atmosphere.
Dining Room
At the rear of the property, you'll find a generously sized dining room that seamlessly flows into the kitchen, creating a bright and spacious open-plan living area ideal for hosting friends and family or everyday family life.
Kitchen
The refitted kitchen is thoughtfully designed with a range of stylish base units, offering ample storage and generous work surfaces for food preparation. There is dedicated space for a variety of appliances, ensuring both functionality and convenience. A large window allows natural light to flood the space while providing a view of the garden, creating a bright and inviting atmosphere. Additionally, a door leads directly outside, offering easy access to the outdoor area.
Rear Lobby
From the dining room a rear lobby allows access to en ensuite bedroom
Internal room
This versatile Internal room, is a multifunctional. Whether you need a home office, creative studio, or dedicated workspace, this room offers flexibility to suit your lifestyle. It also features en-suite facilities for added convenience.
En-Suite shower
The en-suite has been refurbished and includes a modern shower, WC, and wash basin, providing a stylish and convenient private space.
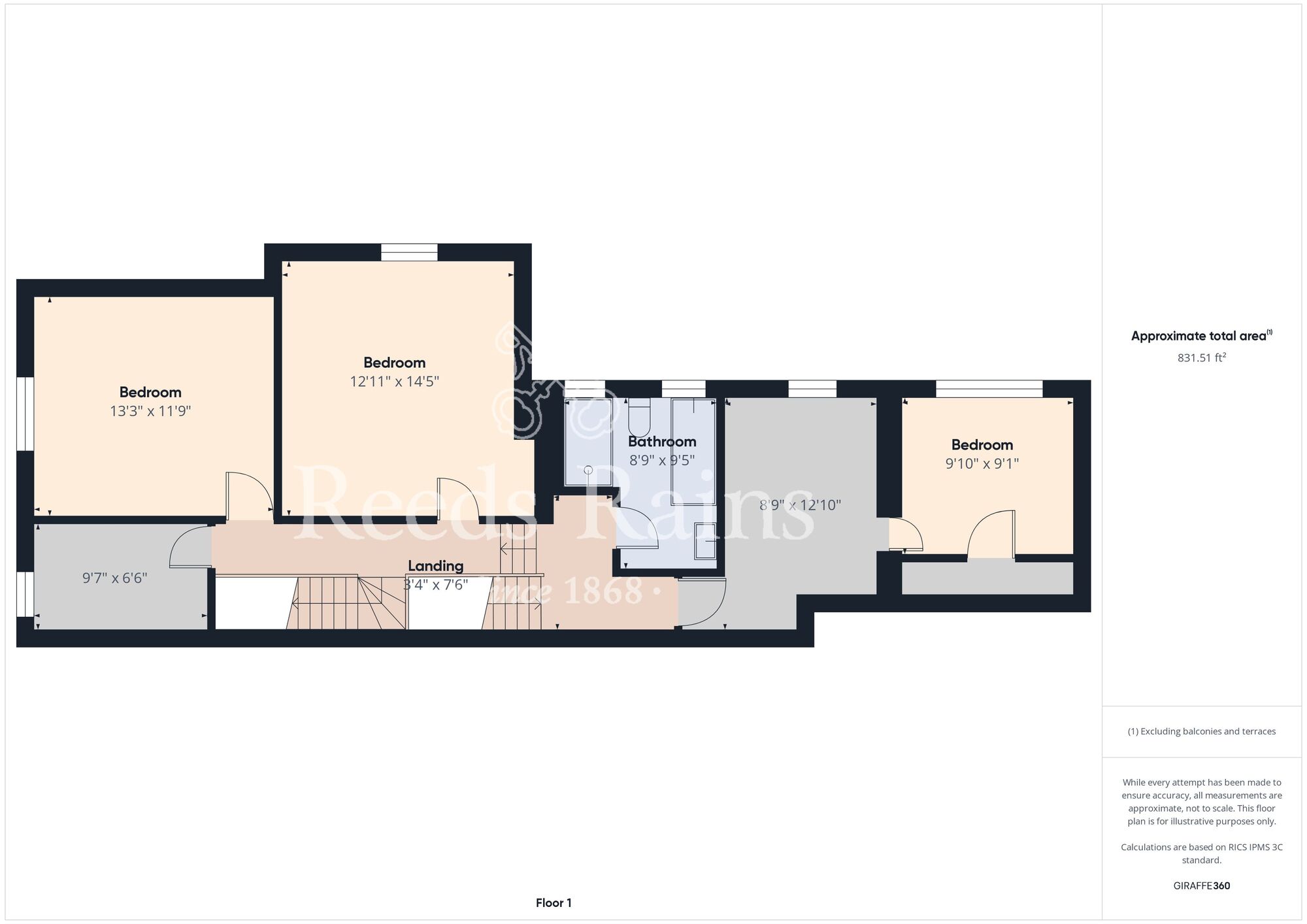
Landing
Moving through the property and up to the first floor, the landing provides access to the well-appointed bedrooms and family bathroom.
Bedroom 1
Bedroom 1 is a generously sized double room, offering ample space for furniture and a comfortable living environment.
Bedroom 2
Bedroom 2 is a well-proportioned double room, providing plenty of space for furniture and a comfortable atmosphere, perfect for relaxation.
Bedroom 3
Bedroom 3 is a well-proportioned room, offering ample space for furniture and a comfortable atmosphere. With the added benefit of fitted storage, this versatile space can be adapted to suit various needs. Accessed via another room, it presents an excellent opportunity for multiple uses, such as a dressing room, nursery, home office, or guest accommodation.
Multi-purpose room
This versatile internal room is highly multifunctional, offering flexibility to suit your lifestyle and with access to bedroom three could be a work space, dressing room, nursery or sitting area
Bedroom 4
Bedroom 4 is located at the front of the property and is a well-proportioned single room, offering a comfortable and functional space.
Bathroom
The bathroom has been beautifully refurbished to include a crisp white suite, featuring a panelled bath with a separate shower cubicle, along with a sink and WC. The space is finished with attractive and practical tiling, creating a modern and stylish environment.
Second floor landing
The landing offers easy access to bedrooms 5 and 6, as well as the bathroom, providing a convenient layout for everyday living.
Bedroom 5
Bedroom 5 is a spacious double room, offering plenty of room for furniture and a comfortable living space.
Bedroom 6
Bedroom 6 completes the bedrooms and is illuminated by a skylight, filling the room with natural light and creating a bright, airy atmosphere.
Bathroom
Refurbished with a white suite comprising panelled bath with hand shower, low level wc and wash basin.
Outside
Stepping outside to the front of the property, the garden is fully enclosed and extends to the side, featuring a well-maintained lawn and attractive borders, offering a charming outdoor space.
Additional information
Local Authority: Stockton-on-teesConservation Area: NoCouncil Tax Band B. Council Tax Estimate £1,830Flood Risk: Rivers & Seas, Very low. Surface Water, Very lowTenure: FreeholdRestrictive Covenants: Yes. Buyer should liaise with their solicitors. CoverageMobile (based on calls indoors)O2, EE, Three, VodafoneBroadband (estimated speeds)Standard 17 mbpsSuperfast 80 mbpsUltrafast 10000 mbpsSatellite & Cable TV AvailabilityBT, Sky, VirginUtilities: Mains sewerage, gas, water and electric.Construction: StandardLocal Planning Applications: 3Planning Permission and Building Regulations: The property has undergone a program of updating and conversion. We have seen no evidence of planning permission or build regulation consents and buyers are urged to discuss these matter with their conveyancers.
Information for buyers
HMRC is a supervisory body for money laundering regulations, of which all estate agents need to be registered. As part of this, there are multiple requirements that agents must rigorously and consistently meet to ensure they stay compliant with the regulations and protect their clients. To do this, we use an identity verification service, approved by the Government as part of the Digital Identity and Attributes Trust Framework (DIATF). This method and the process we follow to ensure compliance for your transaction come with significant time, financial and legal implications hence a portion of this is passed on. We elected for this verification process due to the speed, certainty, and accuracy it delivers. This helps us to protect all our client's interests by using the most advanced verification process to help prevent the impacts of money laundering alongside our internal manual policies and procedures while staying compliant with HMRC.
The administrative charge for this process is £40 plus VAT for a sole purchaser, £65 plus VAT for two purchasers and £75 plus VAT three or more purchasers.
IMPORTANT NOTE TO POTENTIAL PURCHASERS:
We endeavour to make our particulars accurate and reliable, however, they do not constitute or form part of an offer or any contract and none is to be relied upon as statements of representation or fact. The services, systems and appliances listed in this specification have not been tested by us and no guarantee as to their operating ability or efficiency is given. All photographs and measurements have been taken as a guide only and are not precise. Floor plans where included are not to scale and accuracy is not guaranteed. If you require clarification or further information on any points, please contact us, especially if you are travelling some distance to view. Fixtures and fittings other than those mentioned are to be agreed with the seller.
Westbourne Street, Stockton-on-Tees, Durham, TS18
Additional Information
-
Property refSTO250063
-
TenureFreehold
-
Local authorityStockton Borough Council
Similar properties for sale by Reeds Rains Stockton on Tees
Moving through the property and up to the first floor, the landing provides access to the well-appointed bedrooms and family bathroom.
Bedroom 1 is a generously sized double room, offering ample space for furniture and a comfortable living environment.
The bathroom has been beautifully refurbished to include a crisp white suite, featuring a panelled bath with a separate shower cubicle, along with a sink and WC. The space is finished with attractive and practical tiling, creating a modern and stylish environment.
The pin shows the exact address of the property
Energy Efficiency Rating
Very energy efficient - lower running costs
Not energy efficient - higher running costs
Current
N/APotential
N/ACO2 Rating
Very energy efficient - lower running costs
Not energy efficient - higher running costs
