This calculator provides a guide to the amount of residential stamp duty you may pay and does not guarantee this will be the actual cost. This calculation is based on the Stamp Duty Land Tax Rates for residential properties purchased from 23rd September 2022 and second homes from 31st October 2024. For more information on Stamp Duty Land Tax, click here.
1 bedroom Flat for sale, Church Street, Manchester, M4
Features and Description
- 1 bedroom apartment on the first floor
- Spacious living room
- Well presented throughout
- Prime Northern Quarter location
- Separate fitted kitchen
- Viewing essential
- EWS1 form available (B1 rating)
- Close to an array of bars, shops and restaurants
- Leasehold
- EPC Rating C
A superb 1 bedroom apartment occupying a prime location in the heart of the Northern Quarter. The property comprises a long entrance hall, living room, separate kitchen, double bedroom and bathroom. A fabulous property in an unrivalled central location with no onward chain. EWS1 form available (B1 rating). EPC Rating C.
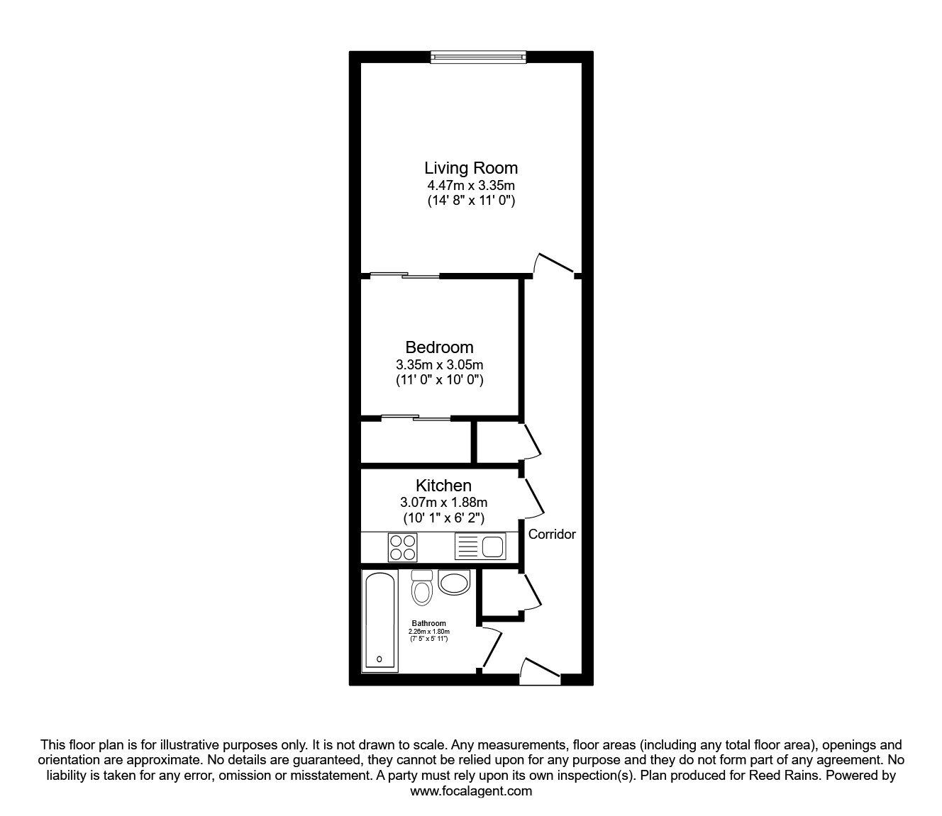
FIRST FLOOR
Secure communal entrance. The apartment can be reached via lift or stairs.
Entrance Hall
Two storage cupboards (one housing water heater).
Living Area
14'8" x 11'0" (4.47m x 3.36m)
With large window overlooking Church Street, wooden-style flooring and electric heater.
Kitchen
10'1" x 6'2" (3.07m x 1.89m)
Range of fitted base and wall units, integral electric oven and hob with extractor hood, sink with mixer tap, integral dishwasher.
Bedroom
3.36m (max) x 3.06m
Carpeted floor, sliding door to the living area and door to hallway, wardrobe/storage recess.
Bathroom
7'5" x 5'11" (2.26m x 1.80m)
Panelled bath with shower over, wash basin, WC, tiled splashbacks, patterned flooring, heated towel rail.
Leasehold / Council Tax
Lease term: 125 years (less 7 days) from 8th September 2006.Service charge: £2932.90 for period 01/04/25-31/03/26.Ground rent: £200 per annum.Please verify lease details with your solicitor.Council tax band B (Manchester City Council).
Agent's Note
To be able to purchase a property in the United Kingdom all agents have a legal requirement to conduct Identity checks on all customers involved in the transaction to fulfil their obligations under Anti Money Laundering regulations. We outsource this check to a third party and a charge will apply. Ask the branch for further details.
IMPORTANT NOTE TO POTENTIAL PURCHASERS:
We endeavour to make our particulars accurate and reliable, however, they do not constitute or form part of an offer or any contract and none is to be relied upon as statements of representation or fact. The services, systems and appliances listed in this specification have not been tested by us and no guarantee as to their operating ability or efficiency is given. All photographs and measurements have been taken as a guide only and are not precise. Floor plans where included are not to scale and accuracy is not guaranteed. If you require clarification or further information on any points, please contact us, especially if you are travelling some distance to view. Fixtures and fittings other than those mentioned are to be agreed with the seller.
Church Street, Manchester, M4
Additional Information
-
Property refMCC240046
-
EPCD
-
TenureLeasehold
-
Lease length105 years
-
Council TaxB
-
Local authorityManchester City Council
-
Ground Rent£200
-
Ground Rent ReviewContact the branch
-
Service Charge£2,932
Similar properties for sale by Reeds Rains Manchester
The pin shows the exact address of the property
Energy Efficiency Rating
Very energy efficient - lower running costs
Not energy efficient - higher running costs
Current
63Potential
75CO2 Rating
Very energy efficient - lower running costs
Not energy efficient - higher running costs
