This calculator provides a guide to the amount of residential stamp duty you may pay and does not guarantee this will be the actual cost. This calculation is based on the Stamp Duty Land Tax Rates for residential properties purchased from 23rd September 2022 and second homes from 31st October 2024. For more information on Stamp Duty Land Tax, click here.
2 bedroom Flat for sale, Conway Street, Liverpool, Merseyside, L5
Features and Description
- No Onward Chain
- Modern Finish Throughout
- Fitted Wardrobes
- Integrated Kitchen
No Onward Chain - Sought-After Location - Cash Buyers Welcome
Fresh to the market is this formerly owner occupied, large two bedroom, fifth floor apartment in The View complex, situated just off Great Homer Street in L5. It has great transport links into the city centre of Liverpool whilst also being very close to both of the City's football stadiums.
The apartment briefly comprises; entrance hall leading to the main bedroom on the right, second bedroom with a bespoke, fitted wardrobe unit. The main bathroom is the first room on the left with the kitchen and open plan living space, which leads to the balcony.
The apartment is being offered with vacant possession and also comes with an allocated parking space in the secure gated car park. Additionally, there is a lift and stairwell, providing access to all floors of the development.
Council Tax band - B
EPC Grade - C
EXTERNAL / COMMUNAL
Secure fob and code access to development, again with building access with stairs and lift to all floors.
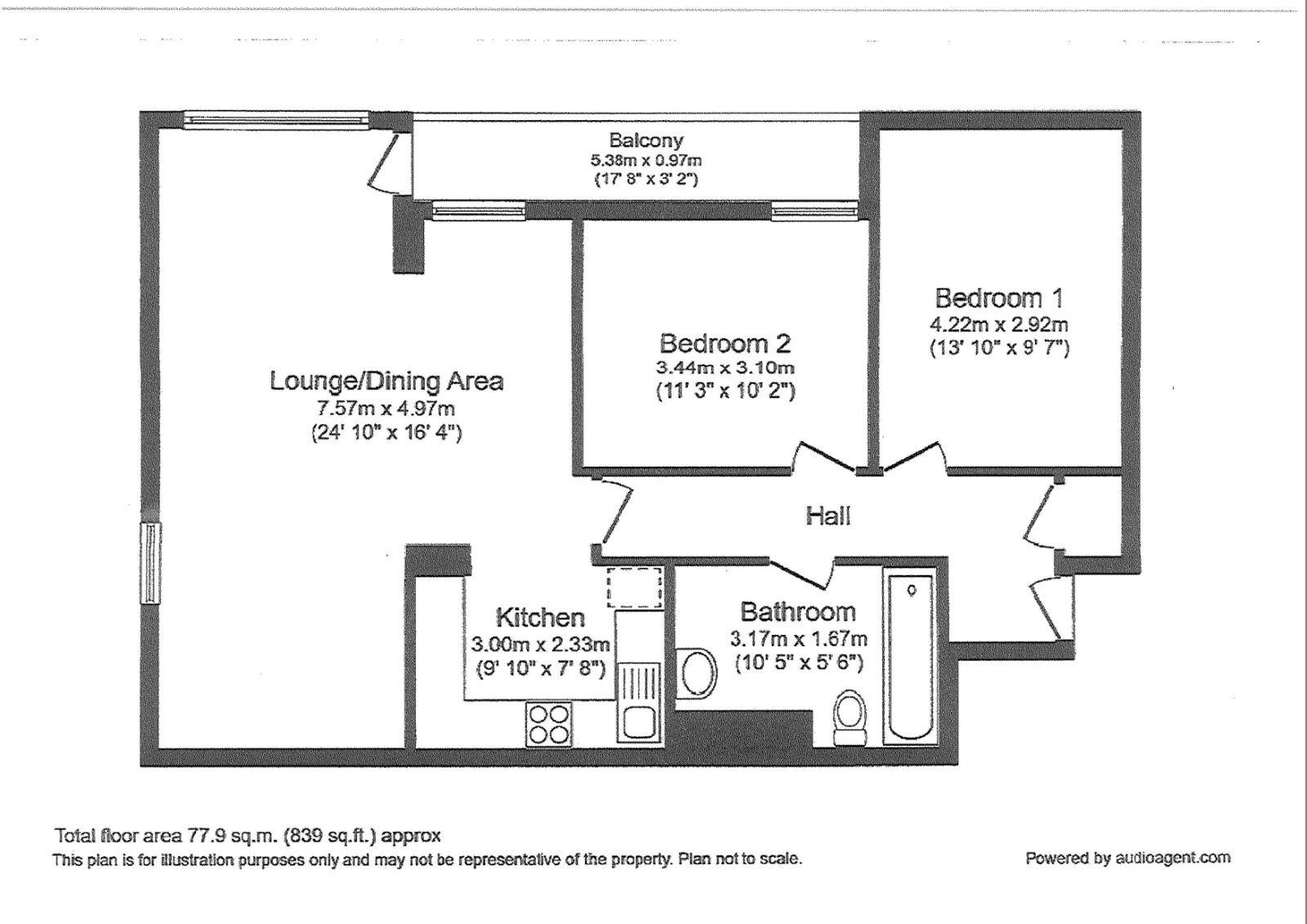
Hall
Entrance to the property, leads to both bedrooms, bathroom and living space with storage cupboard next to the front door.
Lounge / Dining Area
7.57m x 4.97m (approx)
Expansive living and dining space with access to open-plan kitchen and private balcony.
Kitchen
3m x 2.33m (approx)
Fitted modern kitchen with a number of integrated appliances and breakfast bar.
Bedroom 1
4.22m x 2.92m (approx)
Main bedroom with ample space for king size bed and free standing wardrobes.
Bedroom 2
3.44m x 3.1m (approx)
Great sized secondary double bedroom with fitted wardrobes.
Bathroom
3.17m x 1.87m (approx)
Large three piece bathroom suite with bath and shower facilities, toilet and wash basin.
General Info
Lease: 999 years from 23 July 2004 (977) years remaining approx)Service charges: £3,900 (£1,950 paid bi annually)Ground rent: Vendor advised as included in S/C
IMPORTANT NOTE TO POTENTIAL PURCHASERS:
We endeavour to make our particulars accurate and reliable, however, they do not constitute or form part of an offer or any contract and none is to be relied upon as statements of representation or fact. The services, systems and appliances listed in this specification have not been tested by us and no guarantee as to their operating ability or efficiency is given. All photographs and measurements have been taken as a guide only and are not precise. Floor plans where included are not to scale and accuracy is not guaranteed. If you require clarification or further information on any points, please contact us, especially if you are travelling some distance to view. Fixtures and fittings other than those mentioned are to be agreed with the seller.
Conway Street, Liverpool, Merseyside, L5
Additional Information
-
Property refLIV250760
-
EPCC
-
TenureLeasehold
-
Lease length977 years
-
Council TaxB
-
Ground RentContact the branch
-
Ground Rent ReviewContact the branch
-
Service Charge£3,900
Similar properties for sale by Reeds Rains Liverpool
The pin shows the exact address of the property
Energy Efficiency Rating
Very energy efficient - lower running costs
Not energy efficient - higher running costs
Current
69Potential
80CO2 Rating
Very energy efficient - lower running costs
Not energy efficient - higher running costs
