This calculator provides a guide to the amount of residential stamp duty you may pay and does not guarantee this will be the actual cost. This calculation is based on the Stamp Duty Land Tax Rates for residential properties purchased from 23rd September 2022 and second homes from 31st October 2024. For more information on Stamp Duty Land Tax, click here.
2 bedroom Flat for sale, Quins Croft, Leyland, Lancashire, PR25
Features and Description
- Spacious and well presented throughout
- 1st Floor apartment close to the town centre
- Entrance hallway, large lounge/diner
- Fitted kitchen, two bedrooms, en-suite to main
- Separate bathroom, allocated parking space
- No onward chain, view to appreciate
PUBLIC NOTICE. Reeds Rains are now in receipt of an offer for the sum of £95,000 for 19 Quins Croft, Leyland PR25 3UB. Anyone wishing to place an offer on the property should contact Reeds Rains 20 Hough Lane, Leyland PR25 2SD prior to exchange of contracts.
*WELL PRESENTED AND SPACIOUS 1ST FLOOR APARTMENT, LOCATED CLOSE TO THE TOWN CENTRE* This spacious apartment is offered for sale with no onward chain and viewing is highly recommended. Internally there is a welcoming hallway, large lounge/diner and modern fitted kitchen. There are two bedrooms, the main having access to an ensuite, there is also a separate three-piece bathroom. The property is double glazed and has electric heating. There is an allocated parking space for one car. It is within walking distance of Leyland town centre, schools and transport links including bus stops and the train station. Call now to arrange your viewing.
Communal Entrance
Secure entrance door with intercom system. Stairs leading up to the apartment level.
Entrance Hallway
Accessed by a hardwood door. Electric heater. Intercom system. Doors leading off to the lounge and kitchen area, two bedrooms and bathroom.
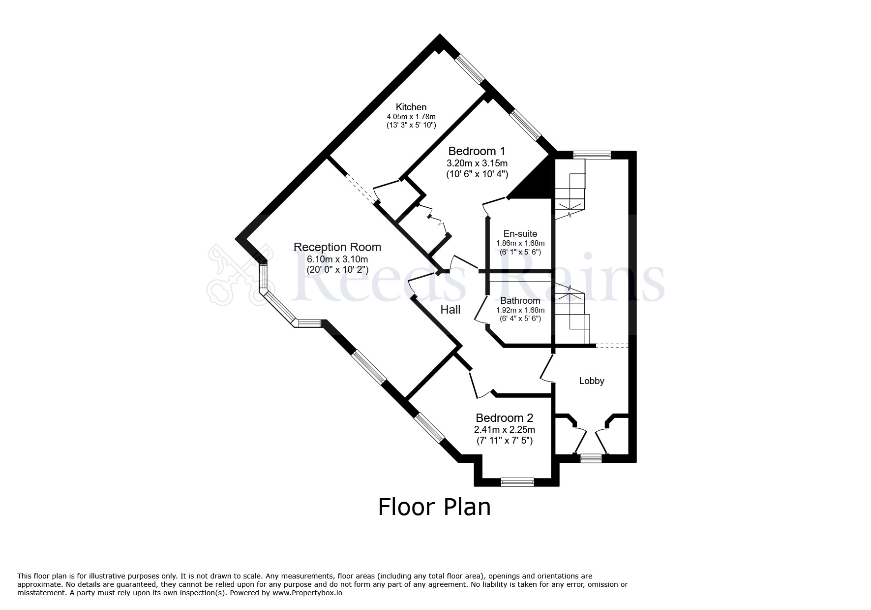
Lounge / Diner
6.1m Maximum x 3.40m
Two double glazed windows. Electric heater. TV point. Access to the kitchen.
Kitchen
13'3" x 5'10" (4.05m x 1.78m)
Double glazed window. Wall and base unit with worktops surfaces and stainless steel single drainer sink unit. Electric oven and electric hob with extractor hood over. Space for fridge freezer, plumbed for washing machine. Part tiled walls. Wall mounted electric heater. Airing cupboard.
Bedroom 1
10'6" x 10'4" (3.20m x 3.15m)
Double glazed window. Wall mounted electric heater. Built-in wardrobes. Door leading to the ensuite.
En-Suite
Three piece suite comprising hand basin, WC and shower cubicle. Heated towel rail. Extractor fan.
Bedroom 2
7'11" x 7'5" (2.41m x 2.25m)
Two double glazed windows. Electric heater.
Bathroom
6'4" x 5'6" (1.92m x 1.68m)
Three piece suite comprising hand basin, WC and panelled bath. Part tiled walls. Heated towel rail. Extractor fan.
Exterior
The property is surrounded by communal garden spaces and to the rear that is an allocated parking space and communal bin area.
Tenure
Lease Term: 250 years from 1 January 2004 Service Charge: £1829.08 Per annum - to be confirmedGround Rent: £125.00 per annumCouncil Tax Band: B
IMPORTANT NOTE TO POTENTIAL PURCHASERS:
We endeavour to make our particulars accurate and reliable, however, they do not constitute or form part of an offer or any contract and none is to be relied upon as statements of representation or fact. The services, systems and appliances listed in this specification have not been tested by us and no guarantee as to their operating ability or efficiency is given. All photographs and measurements have been taken as a guide only and are not precise. Floor plans where included are not to scale and accuracy is not guaranteed. If you require clarification or further information on any points, please contact us, especially if you are travelling some distance to view. Fixtures and fittings other than those mentioned are to be agreed with the seller.
Quins Croft, Leyland, Lancashire, PR25
Additional Information
-
Property refCHO240482
-
EPCC
-
TenureLeasehold
-
Council TaxB
-
Ground Rent£125
-
Ground Rent ReviewContact the branch
-
Service Charge£1,829
Similar properties for sale by Reeds Rains Leyland
Two double glazed windows. Electric heater. TV point. Access to the kitchen.
Double glazed window. Wall and base unit with worktops surfaces and stainless steel single drainer sink unit. Electric oven and electric hob with extractor hood over. Space for fridge freezer, plumbed for washing machine. Part tiled walls. Wall mounted electric heater. Airing cupboard.
Double glazed window. Wall mounted electric heater. Built-in wardrobes. Door leading to the ensuite.
Three piece suite comprising hand basin, WC and shower cubicle. Heated towel rail. Extractor fan.
Two double glazed windows. Electric heater.
Three piece suite comprising hand basin, WC and panelled bath. Part tiled walls. Heated towel rail. Extractor fan.
The pin shows the exact address of the property
Energy Efficiency Rating
Very energy efficient - lower running costs
Not energy efficient - higher running costs
Current
80Potential
85CO2 Rating
Very energy efficient - lower running costs
Not energy efficient - higher running costs
